Gunwharf Quays, Portsmouth Monthly Rental Of £1,400.00
Please enter your starting address in the form input below.
Please refresh the page if trying an alernate address.
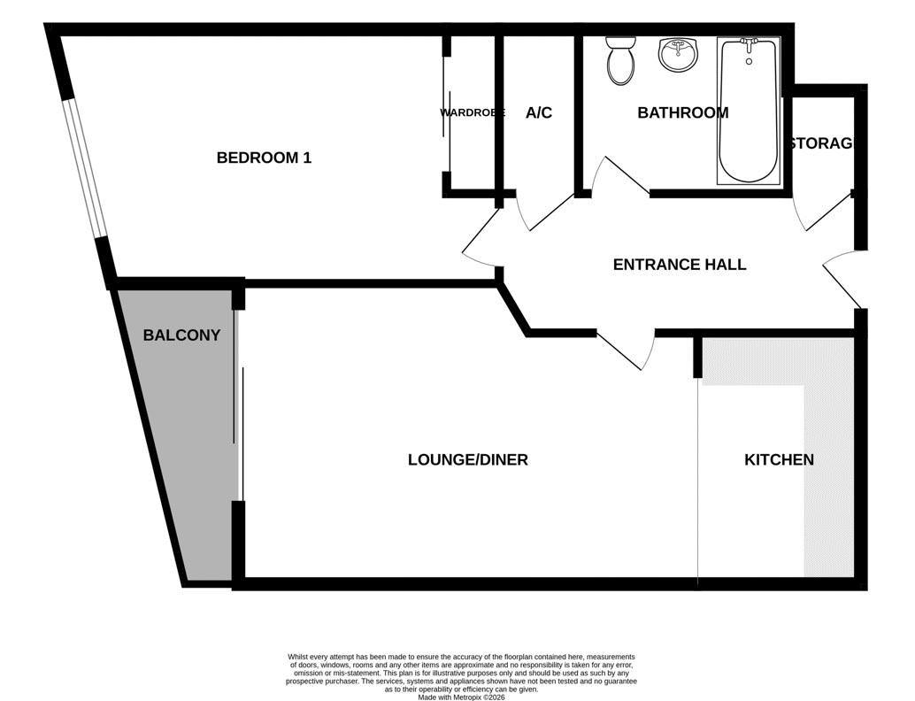
- ONE BEDROOM APARTMENT
- FURNISHED
- EPC RATING B
- 4TH FLOOR WITH LIFT ACCESS
- ALLOCATED PARKING SPACE
- BALCONY
- OPEN PLAN KITCHEN LOUNGE
- MODERN THROUGHOUT
- AVAILABLE MID APRIL
- EARLY VIEWING ADVISED
A beautifully presented one-bedroom apartment located in the highly sought-after Gunwharf Quays, available furnished from late April. This well-appointed property offers a bright open-plan kitchen and living area, a spacious double bedroom, and a modern fitted kitchen and bathroom. The apartment also benefits from a private balcony—perfect for relaxing—and allocated parking for added convenience. Properties of this quality in such a prime location are rarely available, so early viewing is highly recommended.
ENTRANCE HALL
LOUNGE AREA
11' 2'' x 14' 10'' (3.392m x 4.526m)
KITCHEN AREA
11' 4'' x 5' 6'' (3.460m x 1.667m)
BEDROOM
14' 1'' x 9' 3'' (4.284m x 2.828m)
BATHROOM
7' 5'' x 7' 6'' (2.262m x 2.274m)
ALLOCATED PARKING SPACE
Click to enlarge
| Name | Location | Type | Distance |
|---|---|---|---|
Request A Viewing
Portsmouth PO1 3ET



