Woodbury Avenue, Langstone Monthly Rental Of £2,200.00
Please enter your starting address in the form input below.
Please refresh the page if trying an alernate address.
- FIVE BEDROOM FAMILY HOME
- UNFURNISHED
- EPC RATING
- KITCHEN / BREAKFAST ROOM
- GARAGE AND DRIVEWAY PARKING
- POPULAR LANGSTONE LOCATION
- PRIVATE REAR GARDEN
- MULTIPLE RECEPTION ROOMS
- AVAILABLE NOW
- EARLY VIEWING ADVISED
WALKING DISTANCE OF LANGSTONE HARBOUR AND LOCAL AMENITIES. A five bedroom individual detached residents located in Langstone, near Havant and Hayling Island. This property which is AVAILABLE NOW benefits from double glazing, gas central heating system, driveway parking for multiple vehicles and garage, mature gardens, lounge with open fire, conservatory, kitchen/breakfast room, utility room, downstairs shower room/W.C, family/dining room, family four piece bathroom. Properties like this are rarely available and early viewing is advised.
Directions
SAT NAV: PO9 1RH. From the Havant motorway roundabout take the junction to Langstone and Hayling Island. Once on Langstone Road, turn left into Woodbury Avenue.
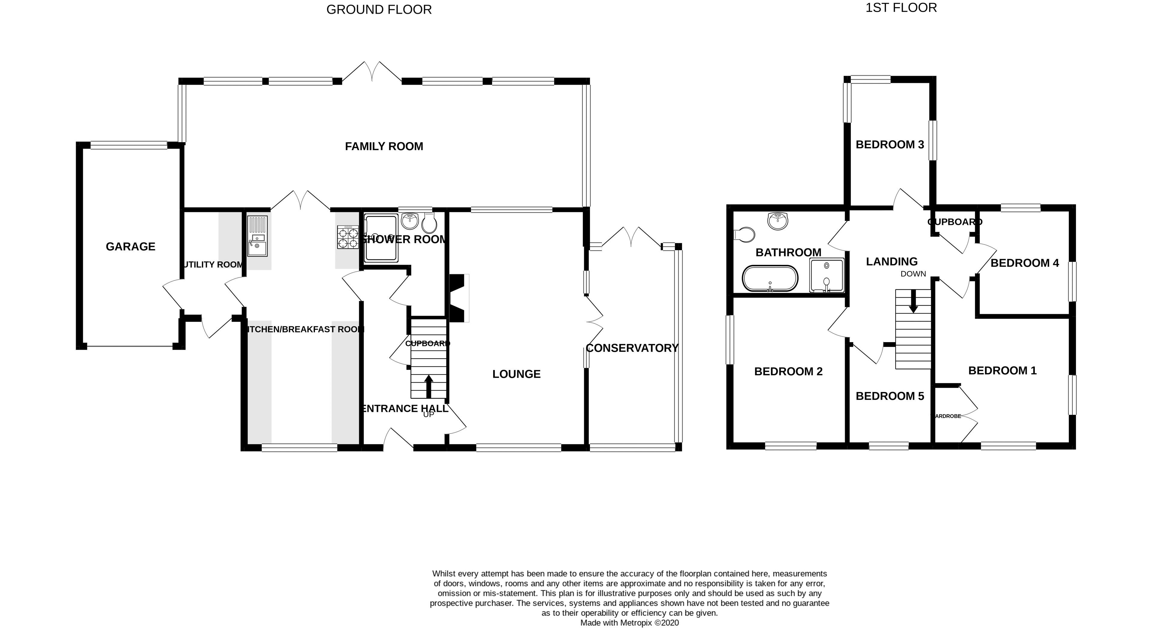
Entrance Hall
Lounge
21' 5'' x 12' 0'' (6.53m x 3.65m)
Conservatory
23' 5'' x 7' 10'' (7.13m x 2.38m)
Shower Room/W.C
Kitchen/Breakfast Room
21' 4'' x 10' 11'' (6.50m x 3.32m)
Utility Room
9' 7'' x 4' 9'' (2.93m x 1.46m)
Summer room
35' 1'' x 10' 10'' (10.69m x 3.29m)
First Floor Landing
Family Bathroom
11' 0'' x 7' 1'' (3.35m x 2.16m)
Bedroom 1
12' 8'' x 12' 0'' (3.86m x 3.67m)
Bedroom 2
13' 11'' x 9' 4'' (4.25m x 2.85m)
Bedroom 3
12' 0'' x 9' 3'' (3.67m x 2.81m)
Bedroom 4
8' 5'' x 7' 9'' (2.57m x 2.35m)
Bedroom 5
9' 4'' x 6' 11'' (2.85m x 2.10m)
Outside
Garage
18' 6'' x 8' 9'' (5.64m x 2.67m)
Click to enlarge
| Name | Location | Type | Distance |
|---|---|---|---|
Request A Viewing
Langstone PO9 1RH



