Darnel Road, Waterlooville Monthly Rental Of £1,700
Please enter your starting address in the form input below.
Please refresh the page if trying an alernate address.
- FOUR BEDROOM TOWN HOUSE
- UNFURNISHED
- EPC RATING
- GARAGE AND PARKING
- EN-SUITE
- FAMILY BATHROOM & DOWNSTAIRS W.C
- PRIVATE REAR GARDEN
- CONSERVTORY
- AVAILABLE LATE FEB
- EARLY VIEWING ADVISED
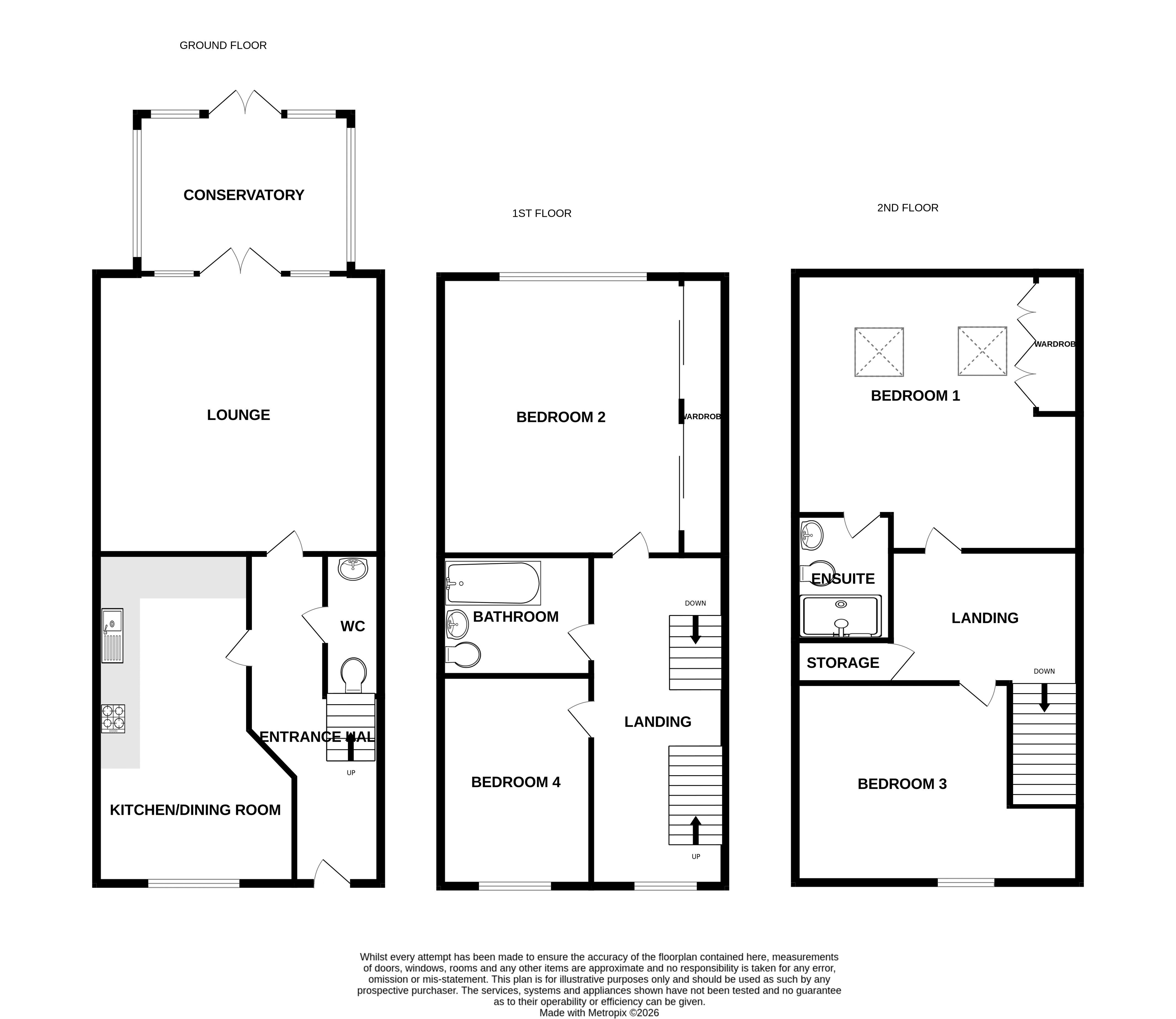
FOUR BEDROOM TOWN HOUSE TO RENT IN WATERLOOVILLE WITH EN-SUITE AND GARAGE. This modern home is offered unfurnished and is AVAILABLE LATE FEBRUARY. Benefits include three double bedrooms, kitchen breakfast room, private rear garden, double glazing and gas central heating. Properties like this are rarely available and early viewing is advised.
ENTRANCE HALL
KITCHEN BREAKFAST ROOM
17' 3'' x 7' 8'' (5.266m x 2.341m)
LOUNGE AREA
14' 4'' x 12' 11'' (4.367m x 3.944m)
CONSERVATORY
10' 7'' x 10' 1'' (3.214m x 3.065m)
DOWNSTAIRS W.C
STAIRS AND LANDING
BEDROOM TWO
12' 2'' x 11' 0'' (3.712m x 3.343m)
BEDROOM FOUR
4' 7'' x 11' 2'' (1.394m x 3.398m)
FAMILY BATHROOM
13' 10'' x 6' 10'' (4.228m x 2.093m)
STAIRS AND LANDING
BEDROOM ONE
15' 3'' x 13' 0'' (4.650m x 3.950m)
EN-SUITE
4' 3'' x 7' 6'' (1.289m x 2.290m)
BEDROOM THREE
9' 7'' x 13' 0'' (2.931m x 3.974m)
GARAGE AND PARKING
Click to enlarge
| Name | Location | Type | Distance |
|---|---|---|---|
Request A Viewing
Waterlooville PO7 7FQ



