Aylesbury Road, Portsmouth Monthly Rental Of £1,300.00
Please enter your starting address in the form input below.
Please refresh the page if trying an alernate address.
- TWO BEDROOM HOSUE
- UNFURNSIHED
- EPC RATING D
- PRIVATE REAR GARDEN
- EXTENDED KITCHEN BREAKFAST ROOM
- TWO DOUBLE BEDROOMS
- TWO RECEPTION ROOMS
- DOUBLE GLAZING & GAS CENTRAL HEATING SYSTEM
- AVAILABLE NOW
- EARLY VIEWING ADVISED
BEAUTIFULLY PRESENTED TWO-BEDROOM EXTENDED HOME IN PO2. NEWLY DECORATED AND NEWLY FITTED CARPETS. This beautifully presented and spacious two-bedroom extended home is offered unfurnished and is AVAILABLE NOW The property boasts two generous reception rooms, providing flexible living and dining space, along with an extended, well-appointed fitted kitchen. Upstairs, you’ll find two well-proportioned double bedrooms and a modern fitted bathroom. Additional benefits include double glazing, a gas central heating system, and a private rear garden — perfect for relaxing or entertaining. Homes of this quality and condition are rarely available on the market. Early viewing is highly recommended to avoid disappointment.
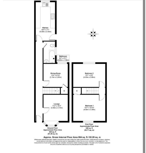
ENTRANCE HALL
LOUNGE AREA / RECEPTION ROOM
10' 3'' x 14' 1'' (3.136m x 4.288m)
DINING AREA RECEPTION ROOM 2
10' 7'' x 9' 11'' (3.221m x 3.025m)
KITCHEN BREAKFAST ROOM
16' 4'' x 9' 3'' (4.966m x 2.821m)
BATHROOM
9' 0'' x 4' 11'' (2.748m x 1.506m)
STAIRS AND LANDING
BEDROOM FRONT
10' 8'' x 13' 5'' (3.263m x 4.077m)
BEDROOM REAR
10' 2'' x 13' 5'' (3.100m x 4.077m)
REAR GARDEN
Click to enlarge
| Name | Location | Type | Distance |
|---|---|---|---|
Request A Viewing
Portsmouth PO2 7NN



