Pakenham Road, Waterlooville Monthly Rental Of £1,500.00
Please enter your starting address in the form input below.
Please refresh the page if trying an alernate address.
- TWO BEDROOM HOUSE
- UNFURNISHED
- EPC RATING B
- TWO DOUBLE BEDROOMS
- BUILT IN WARDROBES
- MODERN THROUGHOUT
- LOUNGE / DINER
- DRIVEWAY PARKING
- AVAILABLE MID APRIL
- EARLY VIEWING ADVISED
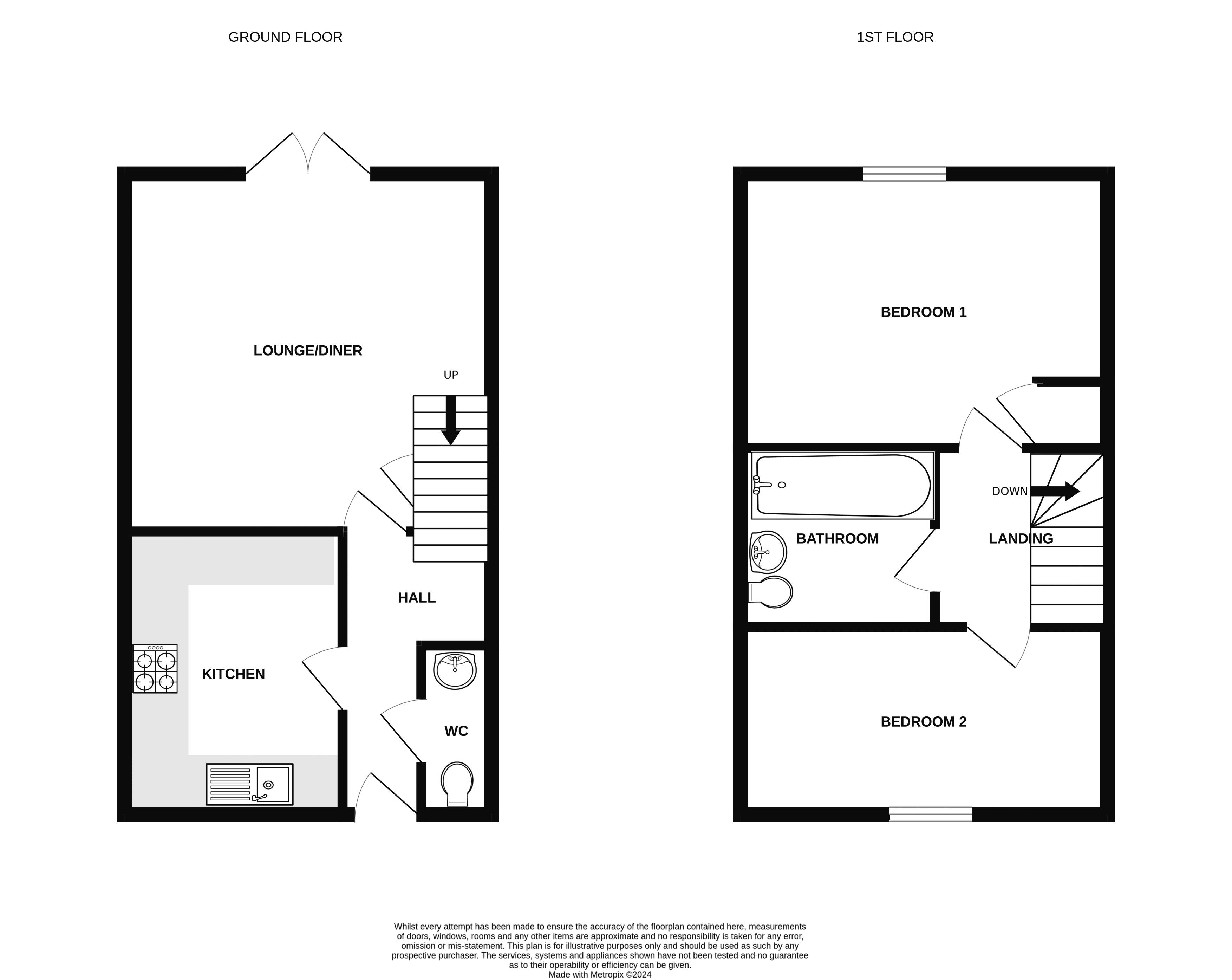
BEAUTIFUL TWO BEDROOM HOME TO RENT IN WATERLOOVILLE. This wonderful home is offered unfurnished and is AVAILABLE EARLY APRIL. Benefits include driveway parking, downstairs W.C, lounge / diner, two double bedrooms and a corner plot rear garden. Properties like this are rarely available and early viewing is advised.
ENTRANCE HALL
DOWNSTAIRS W.C
KITCHEN AREA
7' 2'' x 10' 4'' (2.187m x 3.146m)
LOUNGE AREA
15' 2'' x 13' 9'' (4.616m x 4.196m)
STAIRS AND LANDING
BEDROOM ONE
9' 3'' x 11' 7'' (2.822m x 3.533m)
BEDROOM TWO
8' 6'' x 10' 7'' (2.602m x 3.228m)
BATHROOM
5' 8'' x 6' 7'' (1.721m x 2.018m)
PRIVATE REAR GARDEN
DRIVEWAY PARKING
Click to enlarge
| Name | Location | Type | Distance |
|---|---|---|---|
Waterlooville PO7 3BY




