Partridge Close, Fareham £499,995
Please enter your starting address in the form input below.
Please refresh the page if trying an alernate address.
- Three bedroom detached house with loft room currently used as bedroom four
- Modern open plan living with kitchen/family room (with under floor heating)
- Walking distance of Cams Hill School
- Bedroom one with en-suite
- Southerly aspect rear garden
- Lounge with under floor heating
- Driveway parking with multiple vehicles
- Viewing is a must
- EPC C
MODERN OPEN PLAN LIVING AT EXTENDED MODERN HOME LOCATED IN QUIET CUL-DE-SAC LOCATION WITHIN WALKING DISTANCE OF CAMS HILL SCHOOL. A three bedroom detached house with a LOFT ROOM currently used as bedroom four, located in Cams Hill, Fareham. This property benefits from double glazing, gas central heating system, southerly aspect rear garden, driveway parking for multiple vehicles, utility room (formally garage), lounge, modern open plan kitchen/family room, bedroom one with en-suite, and family shower room/W.C, viewing of this impressive home is a must. EPC C
Directions
SAT NAV: PO16 8YF. From Fareham proceed along Cams Hill towards Portchester. At the traffic lights turn right into Shearwater Avenue. Partridge Close can be found on the left hand side.
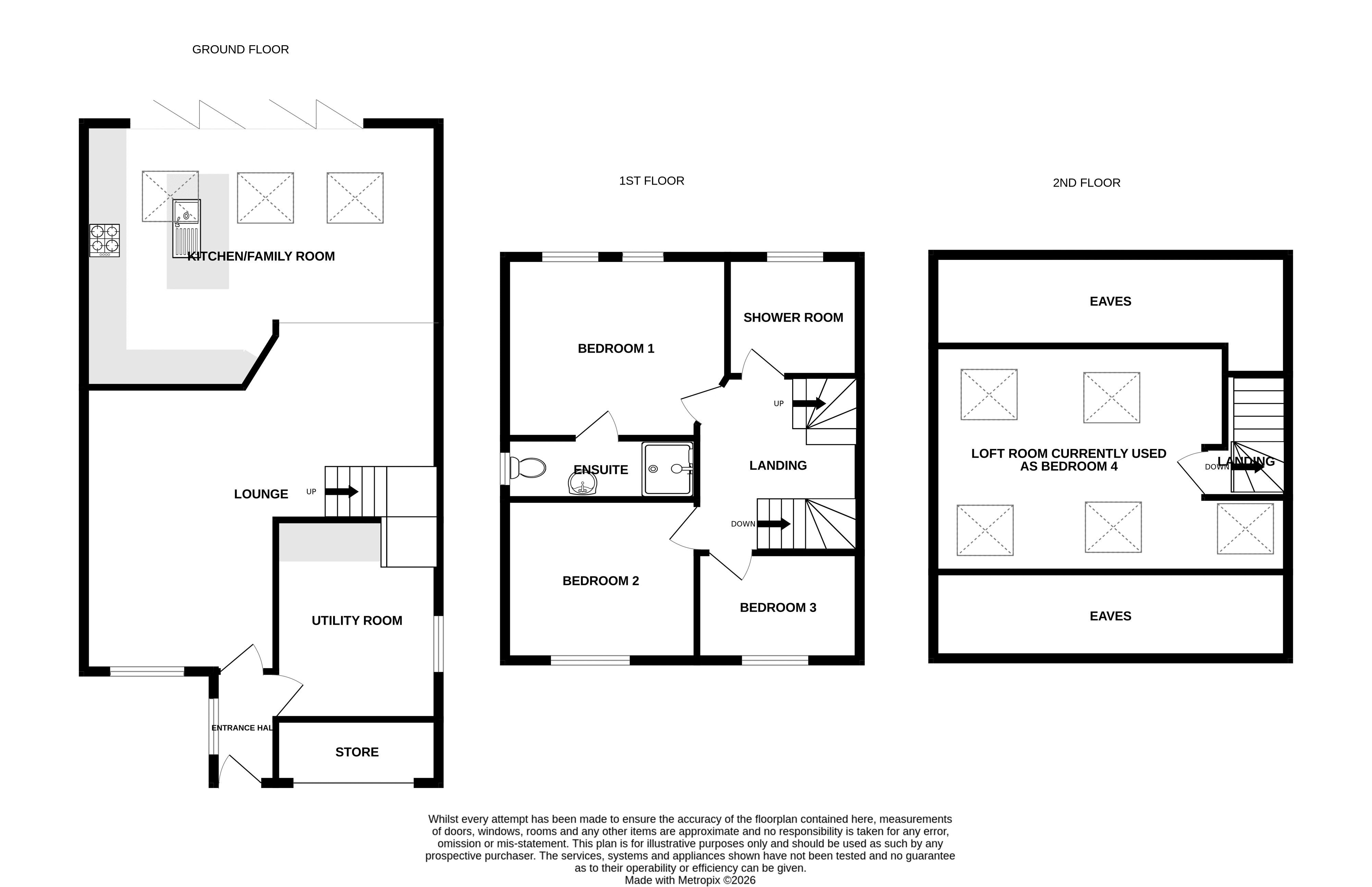
Entrance Hall
Front aspect double glazed door, side aspect double glazed window, smooth ceiling, inset lights, doors to:
Utility Room (Formally Part Of Garage)
9' 7'' x 7' 9'' (2.93m x 2.35m)
Side aspect double glazed window, laminate floor, space for washing machine and tumble dryer, wall mounted boiler, smooth ceiling, inset lights.
Lounge
14' 10'' x 10' 5'' (4.52m x 3.18m)
Front and side aspect double glazed windows with bespoke shutters, T.V point, underfloor heating, smooth ceiling, inset lights, laminate floor, stairs to first floor, open plan to:
Kitchen/Family Room
19' 7'' x 19' 1'' (5.97m x 5.81m)
Rear aspect double glazed bi-folding doors to garden, three rear aspect double glazed Velux windows, smooth ceiling, inset lights, underfloor heating, comprehensive range of fitted eye and base level units with soft close doors and Quartz worktops and upstands, induction hob and extractor hood, pull out larder, corner larder with automatic lighting, space for American style fridge/freezer, fitted double oven, and microwave, matching Island unit with Quartz worktop, breakfast bar end, integral dishwasher, and wine chiller.
First Floor Landing
Side aspect double glazed window with bespoke shutters, stairs to second floor, coved and smooth ceiling, inset lights, radiator, doors to:
Shower Room/W.C
Rear aspect double glazed window, laminate floor, shower cubicle, W.C, vanity wash hand basin, shaver point, heated towel rail, smooth ceiling, tiled splash backs, extractor inset lights.
Bedroom 1
12' 1'' x 9' 9'' (3.69m x 2.98m)
Rear aspect double glazed window with bespoke shutters, radiator, coved and smooth ceiling, door to:
En-Suite
Side aspect double glazed window, laminate floor, shower cubicle, vanity wash hand basin, heated towel rail, smooth ceiling, inset lights, W.C.
Bedroom 2
10' 2'' x 9' 4'' (3.09m x 2.85m)
Front aspect double glazed window with bespoke shutters, radiator, coved and smooth ceiling.
Bedroom 3
9' 7'' x 6' 10'' (2.92m x 2.08m)
Front aspect double glazed window with bespoke shutters, radiator, coved and smooth ceiling.
Second Floor Landing
Smooth ceiling, door to:
Loft Room (Currently Used As Bedroom 4)
14' 0'' x 13' 0'' (4.27m x 3.96m)
Three front and two rear aspect double glazed Velux windows, eaves storage, smooth ceiling, imset lights, radiator.
Outside
The front of the property has a driveway providing parking and giving access to the store (formally garage), and an area of further block paved parking. There is a front garden laid to lawn with scattered shrubs, and side pedestrian access to the rear garden. The rear garden is of a southerly aspect and is mainly laid to lawn with a patio area.
Anti-Money Laundering (AML)
Archbold & Edwards have a legal obligation to complete anti-money laundering checks. The AML check should be completed in the branch. Please call the office to book an AML check if you would like to make an offer on this property. Please note the AML check includes us taking a copy of two forms of Identification for each purchaser. A proof of address and proof of name document is required. Please note we cannot put forward an offer without the AML check being completed.
Mortgage Advisor
We have an in-house financial advisor who can offer the following services: - Mortgages and BTL - Protection - Pensions Advice - Investments Advice - Wealth Management To organise an appointment please contact Archbold & Edwards.
Conveyancing
We offer competitive conveyancing services, with local conveyancing companies. For more information or to organise a quote please call us on 02392 257999
Compliance Note
Please be aware all measurement and floor plans used in the details are approximate and for marketing purposes only. The services, system and appliances have not been tested and no guarantee as to their operability or efficiency can be given by Archbold & Edwards Ltd.
Tenure
Any information stated about the tenure and charges for a property have been provided by the seller of the property and is subject to change. All lease information provided will be confirmed by the sellers solicitor during any conveyance.
Click to enlarge
| Name | Location | Type | Distance |
|---|---|---|---|
Request A Viewing
Fareham PO16 8YF



