Lensyd Gardens, Lovedean £399,995
Please enter your starting address in the form input below.
Please refresh the page if trying an alernate address.
- Extended three bedroom semi detached house
- Popular Lovedean location
- Extended garage and driveway parking
- Double glazing and gas central heating system
- Mature rear garden
- Two reception rooms
- Kitchen and utility room
- Walking distance of local schools and amenities
- Viewing is a must
ENLARGED AND IMPROVED SEMI DETACHED HOUSE IN POPULAR LOVEDEAN VILLAGE LOCATION. A three bedroom extended semi detached house located in Lovedean, near Waterlooville and Horndean within walking distance of local schools and amenities. This property benefits from double glazing, gas central heating system, extended garage and driveway parking for multiple vehicles, mature landscaped gardens, lounge, dining room, cloakroom/W.C, kitchen, utility room, conservatory, first floor family bathroom, and viewing is a must for all serious buyers.
Directions
SAT NAV: PO8 9SJ. Proceed along London Road towards Cowplain, turn left into Lovedean Lane. Turn right into Yoells Lane, and Lensyd Gardens can be found on the right hand side.
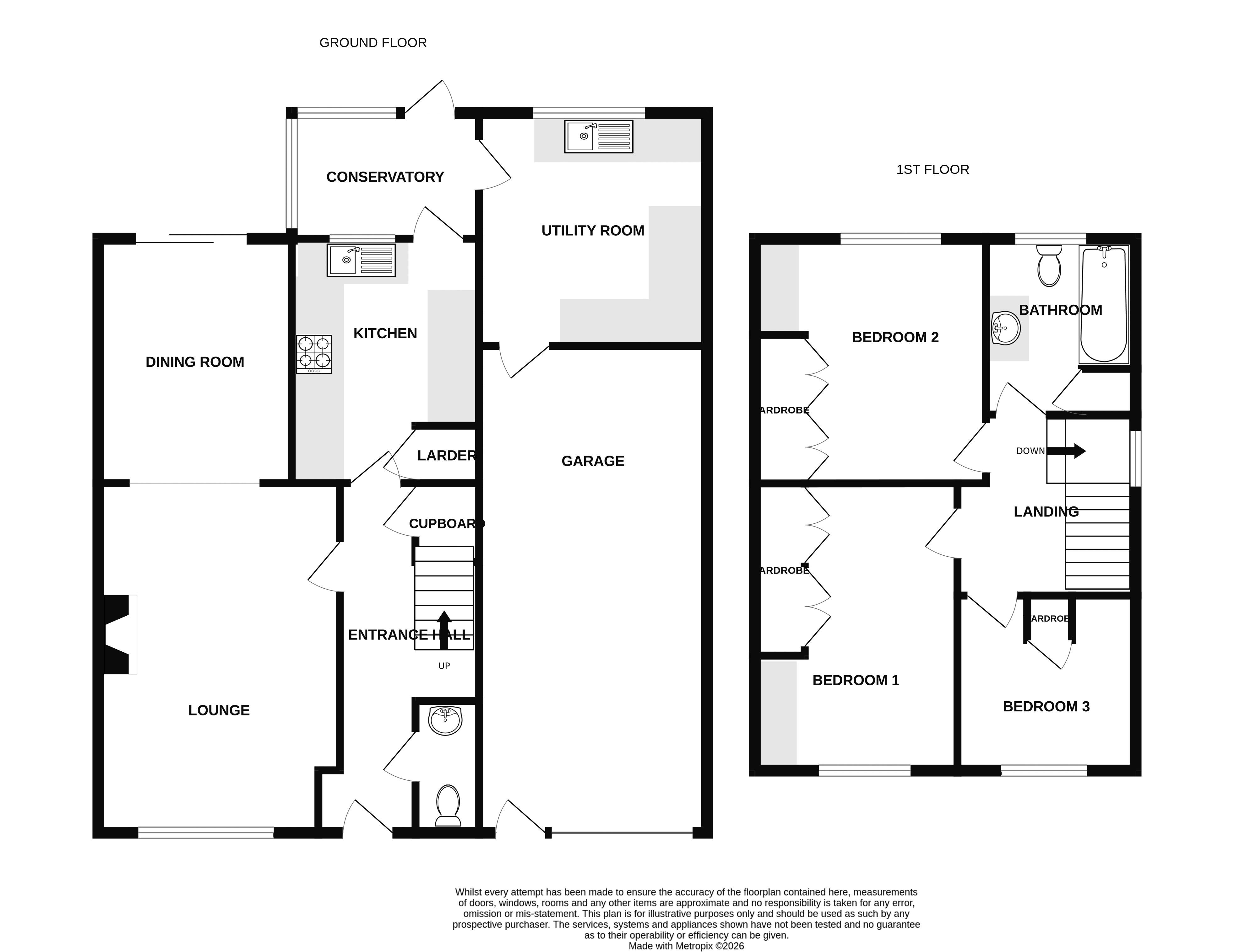
Entrance Hall
Front aspect double glazed door, stairs to first floor with storage cupboard under, radiator, coved and smooth ceiling, doors to:
Cloakroom/W.C
Front aspect double glazed window, W.C, wash hand basin, tiled splash back, radiator, coved and textured ceiling.
Lounge
17' 2'' x 11' 9'' (5.24m x 3.58m)
Front aspect double glazed window, radiator, T.V point, coved and smooth ceiling, electric feature fire with surround and hearth, open to:
Dining Room
12' 2'' x 8' 9'' (3.70m x 2.66m)
Rear aspect double glazed patio doors to garden, radiator, coved and smooth ceiling.
Kitchen
12' 2'' x 9' 5'' (3.71m x 2.87m)
Rear aspect double glazed window and door to conservatory, range of fitted eye and base level units with worktops over, tiled splash backs larder with automatic light, under lights, space for fridge/freezer, single sink with mixer tap, display unit, space for cooker with extractor hood over, coved and smooth ceiling.
Conservatory
9' 3'' x 6' 9'' (2.83m x 2.07m)
Rear and side aspect double glazed windows, rear aspect double glazed door to garden, tiling to floor, door to:
Utility Room
11' 10'' x 10' 7'' (3.61m x 3.22m)
Rear aspect double glazed window, courtesy door to garage, range of fitted eye and base level units with worktops over, tiled splash backs, radiator, space for washing machine, tumble dryer and fridge/freezer, display unit, coved and smooth ceiling, radiator.
First Floor Landing
Side aspect double glazed window, trap hatch to boarded loft space with pull down ladder, coved and smooth ceiling, doors to:
Bedroom 1
13' 3'' x 9' 10'' (4.03m x 2.99m) into wardrobes
Front aspect double glazed window, radiator, coved and textured ceiling, fitted range of wardrobes and storage.
Bedroom 2
11' 1'' x 12' 2'' (3.38m x 3.71m) into wardrobes
Rear aspect double glazed window, radiator, coved and textured ceiling, fitted range of wardrobes and storage.
Bedroom 3
8' 5'' x 8' 3'' (2.57m x 2.51m) into wardrobes
Front aspect double glazed window, radiator, fitted wardrobes coved and textured ceiling.
Family Bathroom
Rear aspect double glazed window, vanity wash hand basin with fitted mirror over, W.C, bath with Mira shower over, tiling to walls, coved and smooth ceiling, heated towel rail, cupboard housing Vaillant boiler.
Outside
The front garden is laid to lawn with a shrub and plant border. There is a driveway which provides parking for multiple vehicles and gives access to the attached garage. The rear garden is mainly laid to formal lawns again with shrub and plant borders, a patio area, outside tap. shed, greenhouse, and a hardstand for summer house.
Garage
23' 9'' x 11' 3'' (7.23m x 3.44m)
Up and over door, front aspect double glazed door, power, light, courtesy door to utility room.
Anti-Money Laundering (AML)
Archbold & Edwards have a legal obligation to complete anti-money laundering checks. The AML check should be completed in the branch. Please call the office to book an AML check if you would like to make an offer on this property. Please note the AML check includes us taking a copy of two forms of Identification for each purchaser. A proof of address and proof of name document is required. Please note we cannot put forward an offer without the AML check being completed.
Mortgage Advisor
We have an in-house financial advisor who can offer the following services: - Mortgages and BTL - Protection - Pensions Advice - Investments Advice - Wealth Management To organise an appointment please contact Archbold & Edwards.
Conveyancing
We offer competitive conveyancing services, with local conveyancing companies. For more information or to organise a quote please call us on 02392 257999
Compliance Note
Please be aware all measurement and floor plans used in the details are approximate and for marketing purposes only. The services, system and appliances have not been tested and no guarantee as to their operability or efficiency can be given by Archbold & Edwards Ltd.
Tenure
Any information stated about the tenure and charges for a property have been provided by the seller of the property and is subject to change. All lease information provided will be confirmed by the sellers solicitor during any conveyance.
Click to enlarge
| Name | Location | Type | Distance |
|---|---|---|---|
Request A Viewing
Lovedean PO8 9SJ



