Starina Gardens, Waterlooville £292,500
Please enter your starting address in the form input below.
Please refresh the page if trying an alernate address.
- Two bedroom end of terrace house
- Located in a Tempest cul-de-sac location
- Siding onto copse
- Double glazing and gas central heating system
- Garage and driveway plus two allocated parking spaces
- Lounge and kitchen/dining room
- An ideal first time or investment purchase
- Viewing is a must
TWO BEDROOM END TERRACE HOME WITH GARAGE IN POPULAR TEMPEST LOCATION SIDING ONTO COPSE, OFFERED WITH NO CHAIN AHEAD. A two bedroom end of terrace house located in the highly sought after Tempest location of Waterlooville. This property benefits from double glazing, gas central heating system, lounge, kitchen/dining room, first floro family bathroom, mature garden with bar, garage and driveway parking, two allocated parking spaces, and this would be an ideal first time or investment purchase. Viewing is a must.
Directions
SAT NAV: PO7 8QT. Proceed along Hulbert Road, at the roundabout take the first exit into Tempest Avenue. At the next roundabout take the second exit again into Tempest Avenue. Turn right into Coralin Grove, and continue into Harkness Drive. Starina Gardens can be found on the left hand side.
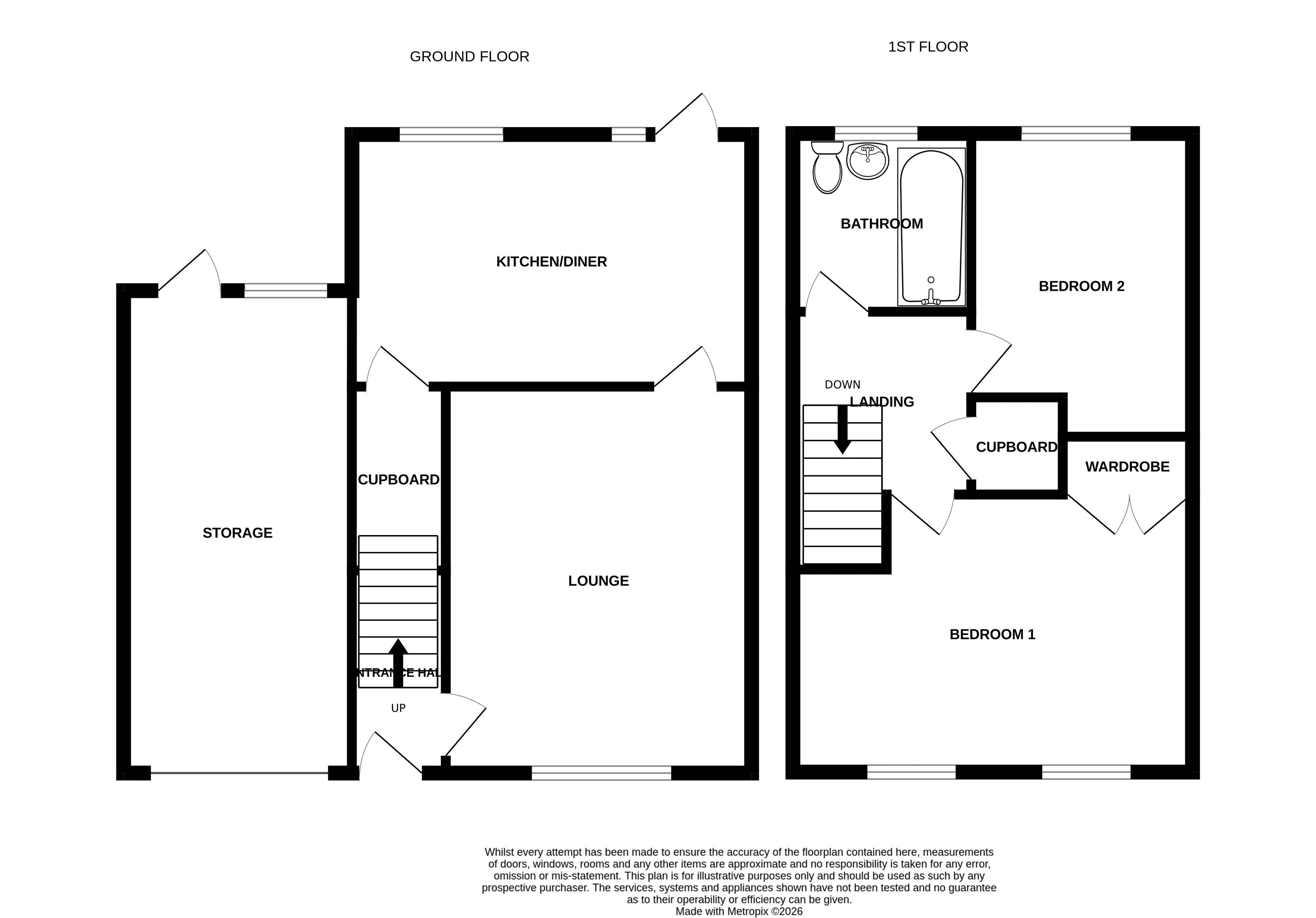
Entrance Hall
Front aspect double glazed door, stairs to first floor, laminate floor, coved and smooth ceiling, radiator, inset lights, door to:
Lounge
13' 3'' x 10' 2'' (4.03m x 3.09m)
Front aspect double glazed window, radiator, T.V point, laminate floor, coved and smooth ceiling, inset lights, door to:
Kitchen/Dining Room
13' 3'' x 9' 3'' (4.03m x 2.82m)
Two rear aspect double glazed windows, rear aspect double glazed door to garden, under stairs storage cupboard, range of fitted eye and base level units with worktops over, brick style tiled splash backs, space for washing machine, fridge/freezer, and dishwasher, fitted oven, hob, and extractor hood over, single sink unit, laminate floor,. radiator, coved and smooth ceiling, inset lights.
First Floor Landing
Side aspect double glazed window, trap hatch to loft space with pull down ladder, coved and smooth ceiling, doors to:
Bedroom 1
141' 4'' x 9' 6'' (43.07m x 2.89m) plus wardrobe
Two front aspect double glazed windows, radiator, coved and smooth ceiling, inset lights, fitted wardrobes.
Bedroom 2
11' 3'' x 6' 10'' (3.44m x 2.08m)
Rear aspect double glazed window, radiator, coved and smooth ceiling, inset lights.
Family Bathroom
Rear aspect double glazed window, W.C, wash hand basin, bath with shower screen and shower over, tiling to floor and walls, coved and smooth ceiling, inset lights.
Outside
The front of the property is hard landscaped with a driveway providing parking and also giving access to the attached garage. There is also two allocated parking spaces. The rear garden is mainly laid to lawn with a patio area, and bar.
Anti-Money Laundering (AML)
Archbold & Edwards have a legal obligation to complete anti-money laundering checks. The AML check should be completed in the branch. Please call the office to book an AML check if you would like to make an offer on this property. Please note the AML check includes us taking a copy of two forms of Identification for each purchaser. A proof of address and proof of name document is required. Please note we cannot put forward an offer without the AML check being completed.
Mortgage Advisor
We have an in-house financial advisor who can offer the following services: - Mortgages and BTL - Protection - Pensions Advice - Investments Advice - Wealth Management To organise an appointment please contact Archbold & Edwards.
Conveyancing
We offer competitive conveyancing services, with local conveyancing companies. For more information or to organise a quote please call us on 02392 257999
Compliance Note
Please be aware all measurement and floor plans used in the details are approximate and for marketing purposes only. The services, system and appliances have not been tested and no guarantee as to their operability or efficiency can be given by Archbold & Edwards Ltd.
Tenure
Any information stated about the tenure and charges for a property have been provided by the seller of the property and is subject to change. All lease information provided will be confirmed by the sellers solicitor during any conveyance.
Click to enlarge
| Name | Location | Type | Distance |
|---|---|---|---|
Request A Viewing
Waterlooville PO7 8QT



