Avocet Way, Horndean £480,000
Please enter your starting address in the form input below.
Please refresh the page if trying an alernate address.
- Four bedroom detached house
- Built by Charles Church
- Walking distance of Horndean schools and amenities
- Bedroom one with en-suite
- Garage and driveway parking
- Two reception rooms
- Modern fitted kitchen
- Viewing is a must
- EPC C
FOUR BEDROOM CHARLES CHURCH BUILT HOME LOCATED IN WALKING DISTANCE OF HORNDEAN SCHOOLS AND AMENITIES. A four bedroom detached house located in Horndean, near Waterlooville and Clanfield. This property benefits from double glazing, gas central heating system, garage and driveway parking, landscaped rear garden, loung, dining room, fitted kitchen, cloakroom/W.C. first floor family bathroom, bedroom one with en-suite, and viewing is a must for all serious buyers. EPC C
Directions
SAT NAV: PO8 9YE. Proceed along London Road towards Cowplain passing the shops on the hand side. Continue into Portsmouth Road, at the traffic lights turn left into Catherington Lane. At the roundabout take the first exit into Stonechat Road. Avocet Way can be found on the right habd side.
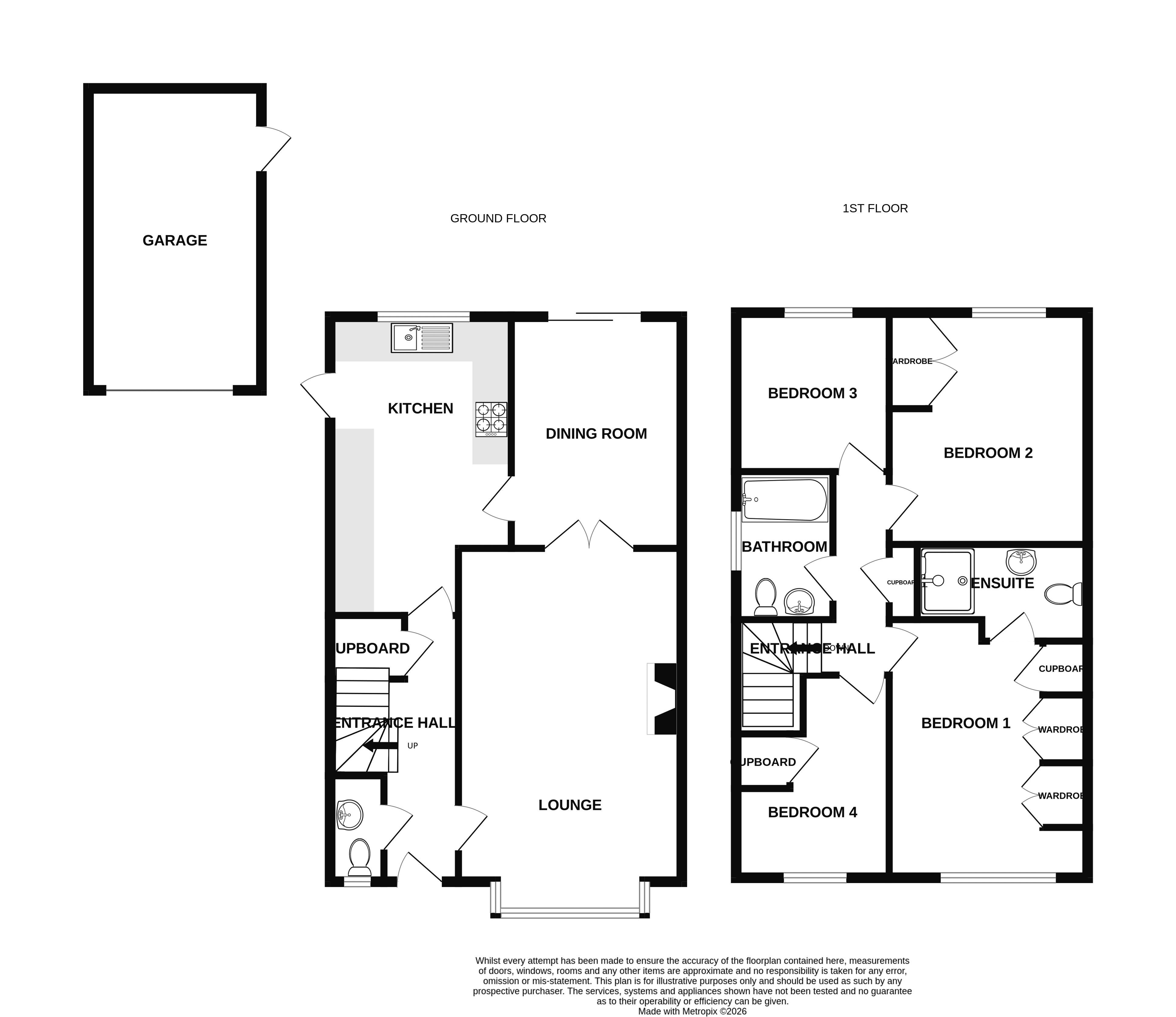
Entrance Hall
Front aspect double glazed door, stairs to first floor with storage cupboard under, coved and smooth ceiling, radiator, doors to:
Cloakroom/W.C
Front aspect double glazed window, W.C, wash hand basin, tiled splash backs, smooth ceiling, radiator.
Lounge
18' 8'' x 12' 4'' (5.69m x 3.75m)
Front aspect double glazed window, two radiators, T.V point, feature electric fire with surround and hearth, coved and smooth ceiling, double doors to:
Dining Room
10' 7'' x 9' 9'' (3.22m x 2.96m)
Rear aspect double glazed French doors to garden, radiator, coved and smooth ceiling, door to:
Kitchen
13' 4'' x 10' 0'' (4.06m x 3.05m)
Side aspect double glazed door to garden and garage, rear aspect double glazed window, range of fitted eye and base level units with worktops over, up stands, smooth ceiling, inset lights, double oven, hob, and extractor hood, pan drawers, single sink unit, pull out larder, space for second fridge, integral fridge/freezer, space for washing machine.
First Floor Landing
Coved and textured ceiling, airing cupboard, trap hatch to loft space, doors to:
Bedroom 1
15' 10'' x 10' 8'' (4.83m x 3.25m) into wardrobes
Front aspect double glazed window, radiator, coved and textured ceiling, range of fitted wardrobes, door to:
En-Suite
Side aspect double glazed window, W.C, vanity wash hand basin, tiled splash backs, shower cubicle, tiling to floor, heated towel rail, textured ceiling, extractor.
Bedroom 2
10' 10'' x 10' 8'' (3.31m x 3.24m) into wardrobes
Rear aspect double glazed window, radiator, coved and textured ceiling, fitted wardrobes.
Bedroom 3
8' 9'' x 6' 9'' (2.67m x 2.06m)
Rear aspect double glazed window, radiator, coved and textured ceiling.
Bedroom 4
9' 8'' x 8' 10'' (2.947m x 2.68m) max
Front aspect double glazed window, radiator, coved and textured ceiling, fitted cupboard.
Family Bathroom
Side aspect double glazed window, heated towel rail, vanity unit incorporating W.C and wash hand basin, bath with mixer tap and shower attachment, shaver point, textured ceiling, extractor.
Garage
19' 1'' x 8' 8'' (5.82m x 2.65m)
Up and over door, power and light. Side aspect courtesy door.
Outside
The front of the property is mainly hard landscaped with a side driveway providing parking and giving access to the detached garage. There is side pedestrian access to the rear garden. The rear garden is mainly laid to lawn with scattered shrubs and plants, and a patio.
Anti-Money Laundering (AML)
Archbold & Edwards have a legal obligation to complete anti-money laundering checks. The AML check should be completed in the branch. Please call the office to book an AML check if you would like to make an offer on this property. Please note the AML check includes us taking a copy of two forms of Identification for each purchaser. A proof of address and proof of name document is required. Please note we cannot put forward an offer without the AML check being completed.
Mortgage Advisor
We have an in-house financial advisor who can offer the following services: - Mortgages and BTL - Protection - Pensions Advice - Investments Advice - Wealth Management To organise an appointment please contact Archbold & Edwards.
Conveyancing
We offer competitive conveyancing services, with local conveyancing companies. For more information or to organise a quote please call us on 02392 257999
Compliance Note
Please be aware all measurement and floor plans used in the details are approximate and for marketing purposes only. The services, system and appliances have not been tested and no guarantee as to their operability or efficiency can be given by Archbold & Edwards Ltd.
Tenure
Any information stated about the tenure and charges for a property have been provided by the seller of the property and is subject to change. All lease information provided will be confirmed by the sellers solicitor during any conveyance.
Click to enlarge
| Name | Location | Type | Distance |
|---|---|---|---|
Request A Viewing
Horndean PO8 9YE



