Emsworth Road, North End £239,995
Please enter your starting address in the form input below.
Please refresh the page if trying an alernate address.
- Three bedroom terrace house
- Double glazing and gas central heating system
- An ideal first time or investment purchase
- Offered with no chain ahead
- Bay and firecourt
- First floor four piece family bathroom
- Two reception rooms
- Viewing is a must
THREE BEDROOM HOME OFFERED WITH NO CHAIN AHEAD. A three bedroom middle terrace house located in North End, Portsmouth. This property benefits from double glazing, gas central heating system, lounge, dining room, kitchen, first floor four piece family bathroom, bay and forecourt, rear garden, an ideal first time or investment purchase, and viewing is a must for all serious buyers.
Directions
SAT NAV: PO2 7HJ. From London Road proceed towards Fratton, continue into Kingston Road. Turn left into Powerscourt Road and then left into Emsworth Road.
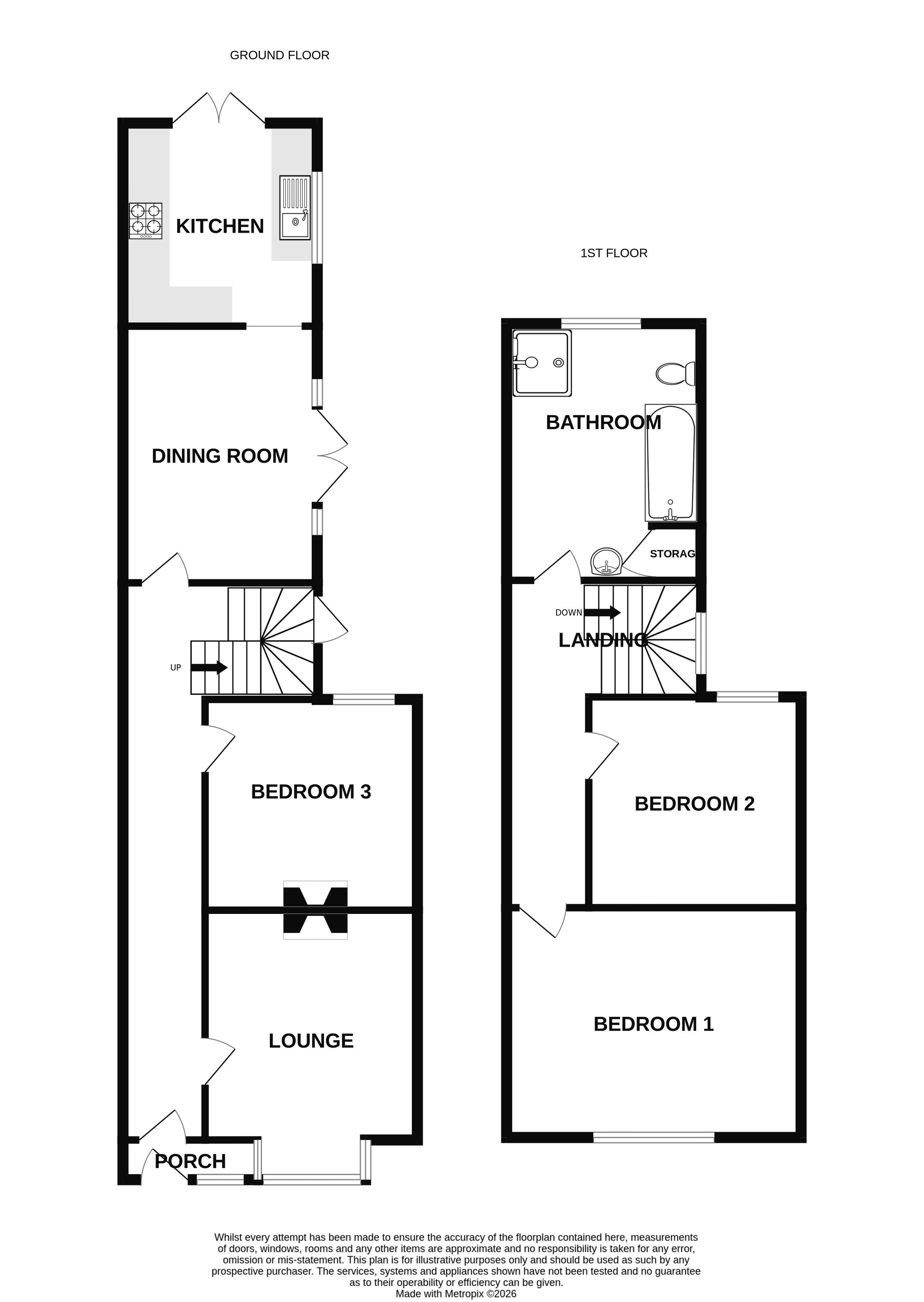
Entrance Porch
Front aspect double glazed window and door, textured ceiling, door to:
Entrance Hall
Engineered wood, stairs to first floor, side aspect double glazed door to garden, coved and smooth ceiling, inset lights, dado rail, radiator, doors to:
Lounge
13' 0'' x 10' 1'' (3.97m x 3.07m)
Front aspect double glazed bay window, T.V point, feature fireplace, coved and textured ceiling, ceiling rose, meter cupboard, radiator.
Bedroom 3
11' 0'' x 10' 0'' (3.35m x 3.06m)
Rear aspect double glazed window, fire surround, coved and smooth ceiling, ceiling rose, radiator.
Dining Room
12' 0'' x 8' 4'' (3.66m x 2.55m)
Side aspect double glazed picture windows and French doors to garden, engineered wood, feature fireplace, radiator, coved and smooth ceiling, open to:
Kitchen
8' 11'' x 8' 10'' (2.72m x 2.68m)
Side aspect double glazed window, rear aspect double glazed French doors to garden, tiling to floor, smooth ceiling, tiled splashbacks, range of fitted eye and base level units with worktops over, space for dishwasher and washing machine, space for cooker and fridge/freezer.
First Floor Landing
Side aspect double glazed window, textured ceiling, dado rail, doors to:
Bedroom 1
13' 2'' x 11' 0'' (4.01m x 3.35m)
Front aspect double glazed window, feature cast iron fireplace, fitted wardrobe, coved and smooth ceiling, radiator.
Bedroom 2
11' 1'' x 9' 11'' (3.37m x 3.03m)
Rear aspect double glazed window, radiator, coved and smooth ceiling, picture rail.
Family Bathroom
11' 6'' x 8' 6'' (3.51m x 2.59m)
Rear aspect double glazed window, laminate floor tiles, smooth ceiling, shower cubicle, wash hand basin, cupboard housing Vaillant boiler, tiled splashbacks, bath, radiator.
Outside
The front of the property has a forecourt. The rear garden is a covered patio area, scattered shrubs and plants, artificial lawn, and shed/store.
Anti-Money Laundering (AML)
Archbold & Edwards have a legal obligation to complete anti-money laundering checks. The AML check should be completed in the branch. Please call the office to book an AML check if you would like to make an offer on this property. Please note the AML check includes us taking a copy of two forms of Identification for each purchaser. A proof of address and proof of name document is required. Please note we cannot put forward an offer without the AML check being completed.
Mortgage Advisor
We have an in-house financial advisor who can offer the following services: - Mortgages and BTL - Protection - Pensions Advice - Investments Advice - Wealth Management To organise an appointment please contact Archbold & Edwards.
Conveyancing
We offer competitive conveyancing services, with local conveyancing companies. For more information or to organise a quote please call us on 02392 257999
Compliance Note
Please be aware all measurement and floor plans used in the details are approximate and for marketing purposes only. The services, system and appliances have not been tested and no guarantee as to their operability or efficiency can be given by Archbold & Edwards Ltd.
Tenure
Any information stated about the tenure and charges for a property have been provided by the seller of the property and is subject to change. All lease information provided will be confirmed by the sellers solicitor during any conveyance.
Click to enlarge
| Name | Location | Type | Distance |
|---|---|---|---|
Request A Viewing
North End PO2 7HJ



