Everglades Avenue, Cowplain £495,000
Please enter your starting address in the form input below.
Please refresh the page if trying an alernate address.
- Four bedroom detached House
- Offered with no chain ahead
- Lounge and dining room
- Kitchen/breakfast room and utility room
- Bedroom one with en-suite
- Cowplain cul-de-sac location
- Located in Cowplain
- Viewing is a must
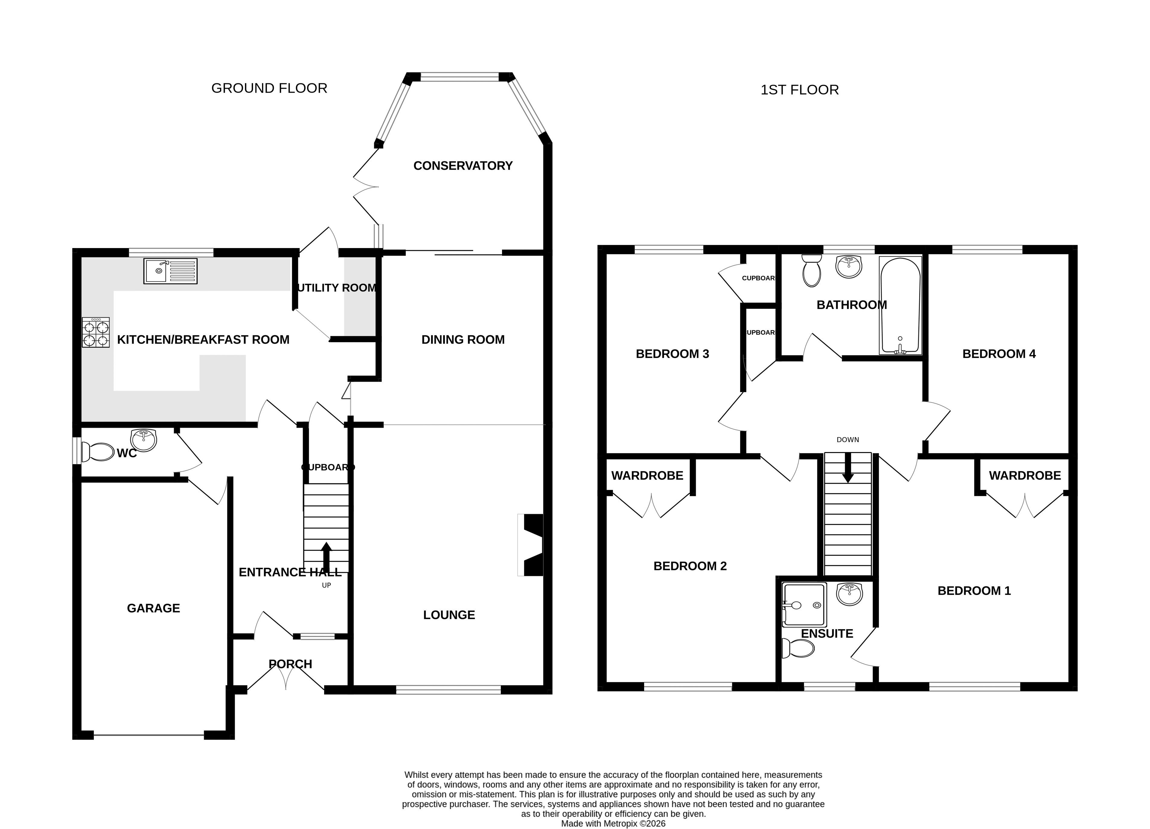
MODERN FOUR BEDROOM DETACHED HOUSE LOCATED IN COWPLAIN CUL-DE-SAC LOCATION WITH NO CHAIN AHEAD. A four bedroom detached house located in Cowplain, near Waterlooville. This property benefits from double glazing, gas central heating system, mature southerly aspect rear garden, lounge, dining room, kitchen/breakfast room, utility room, cloakroom/W.C, conservatory, first floor bathroom, bedroom with en-suite, garage and driveway parking for multiple vehicles, and viewing is a must for all serious buyers.
Directions
SAT NAV: PO8 8NA. Proceed along London Road towards Cowplain, passing the shops on the left hand side. Turn left into Longwood Avenue. Everglades Avenue can be found on the left hand side.
Entrance Porch
Front aspect double glazed picture window and door, tiling to floor, door to:
Entrance Hall
Laminate floor, stairs to first floor, coved and textured ceiling, courtesy door to garage, radiator, doors to:
Cloakroom/W.C
Side aspect double glazed window, W.C, wash hand basin, tiling to floor, extractor, coved and textured ceiling, radiator.
Lounge
14' 10'' x 11' 5'' (4.51m x 3.49m)
Front aspect double glazed window, T.V and telephone point, laminate floor, radiator, gas fire with surround and hearth, open to:
Dining Room
10' 1'' x 9' 4'' (3.08m x 2.85m)
Door to kitchen/breakfast room, radiator, laminate floor, coved and smooth ceiling, rear aspect double glazed patio doors to:
Conservatory
9' 9'' x 9' 1'' (2.98m x 2.78m)
Rear and side aspect double glazed picture windows, side aspect double glazed French doors to gardens, wall light, tiling to floor.
Kitchen/Breakfast Room
14' 7'' x 8' 8'' (4.44m x 2.65m) max
Rear aspect double glazed window, door from entrance hall, range of fitted eye and base level units with worktops over, breakfast bar, tiled splash backs, soft close doors, under lights, coved and smooth ceiling, tiling to floor, one and a half sink unit with mixer taps, integral dishwasher, fitted oven, hob, and extractor hood, fitted microwave,low level pull out larder, open to:
Utility Room
5' 8'' x 5' 5'' (1.72m x 1.64m)
Rear aspect double glazed door to garden, space for fridge/freezer and washing machine,, coved and smooth ceiling, worktops and tiled splash backs, radiator, fitted kitchen units.
First Floor Landing
Coved and textured ceiling, trap hatch to loft space, cupboard housing Worcester boiler, doors to:
Bedroom 1
11' 9'' x 11' 6'' (3.57m x 3.51m) into wardrobes
Front aspect double glazed window, radiator, coved and textured ceiling, fitted wardrobes, door to:
En-Suite
Front aspect double glazed window, tiled splash backs, vanity wash hand basin with mirror and lights over, W.C, shower cubicle, extractor, smooth ceiling, tiling to walls.
Bedroom 2
11' 8'' x 11' 1'' (3.56m x 3.38m) max into wardrobes
Front aspect double glazed window, radiator, coved and textured ceiling, fitted wardrobes.
Bedroom 3
8' 11'' x 8' 6'' (2.71m x 2.60m)
Rear aspect double glazed window, radiator, coved and textured ceiling.
Bedroom 4
74' 6'' x 7' 9'' (22.70m x 2.35m)
Rear aspect double glazed window, radiator, coved and textured ceiling, fitted cupboard.
Family Bathroom
Rear aspect double glazed window, vanity unit incorporating W.C and wash hand basin, bath with shower screen and shower over, tiled splashbacks, shaver point and light, coved and textured ceiling, extractor, heated towel rail.
Outside
The front of the property has a driveway which is providing parking for multiple vehicles and gives access to the integral garage. There is also an area of lawn./ The rear garden is again mainly laid to formal lawn with a patio area, greenhouse, shrub and plant borders.
Garage
17' 3'' x 7' 11'' (5.27m x 2.41m)
Up and over door, power, and light.
Anti-Money Laundering (AML)
Archbold & Edwards have a legal obligation to complete anti-money laundering checks. The AML check should be completed in the branch. Please call the office to book an AML check if you would like to make an offer on this property. Please note the AML check includes us taking a copy of two forms of Identification for each purchaser. A proof of address and proof of name document is required. Please note we cannot put forward an offer without the AML check being completed.
Mortgage Advisor
We have an in-house financial advisor who can offer the following services: - Mortgages and BTL - Protection - Pensions Advice - Investments Advice - Wealth Management To organise an appointment please contact Archbold & Edwards.
Conveyancing
We offer competitive conveyancing services, with local conveyancing companies. For more information or to organise a quote please call us on 02392 257999
Compliance Note
Please be aware all measurement and floor plans used in the details are approximate and for marketing purposes only. The services, system and appliances have not been tested and no guarantee as to their operability or efficiency can be given by Archbold & Edwards Ltd.
Tenure
Any information stated about the tenure and charges for a property have been provided by the seller of the property and is subject to change. All lease information provided will be confirmed by the sellers solicitor during any conveyance.
Click to enlarge
| Name | Location | Type | Distance |
|---|---|---|---|
Request A Viewing
Cowplain PO8 8NA



