Havant Farm Close, Havant £349,995
Please enter your starting address in the form input below.
Please refresh the page if trying an alernate address.
- Three bedroom middle terrace house
- Offered with no chain ahead
- Located within walking distance of Havant Train Station
- Double glazing and gas central heating system
- Garage and driveway parking
- Cul-de-sac
- Lounge/dining room and kitchen/breakfast room
- Viewing is a must
- EPC D
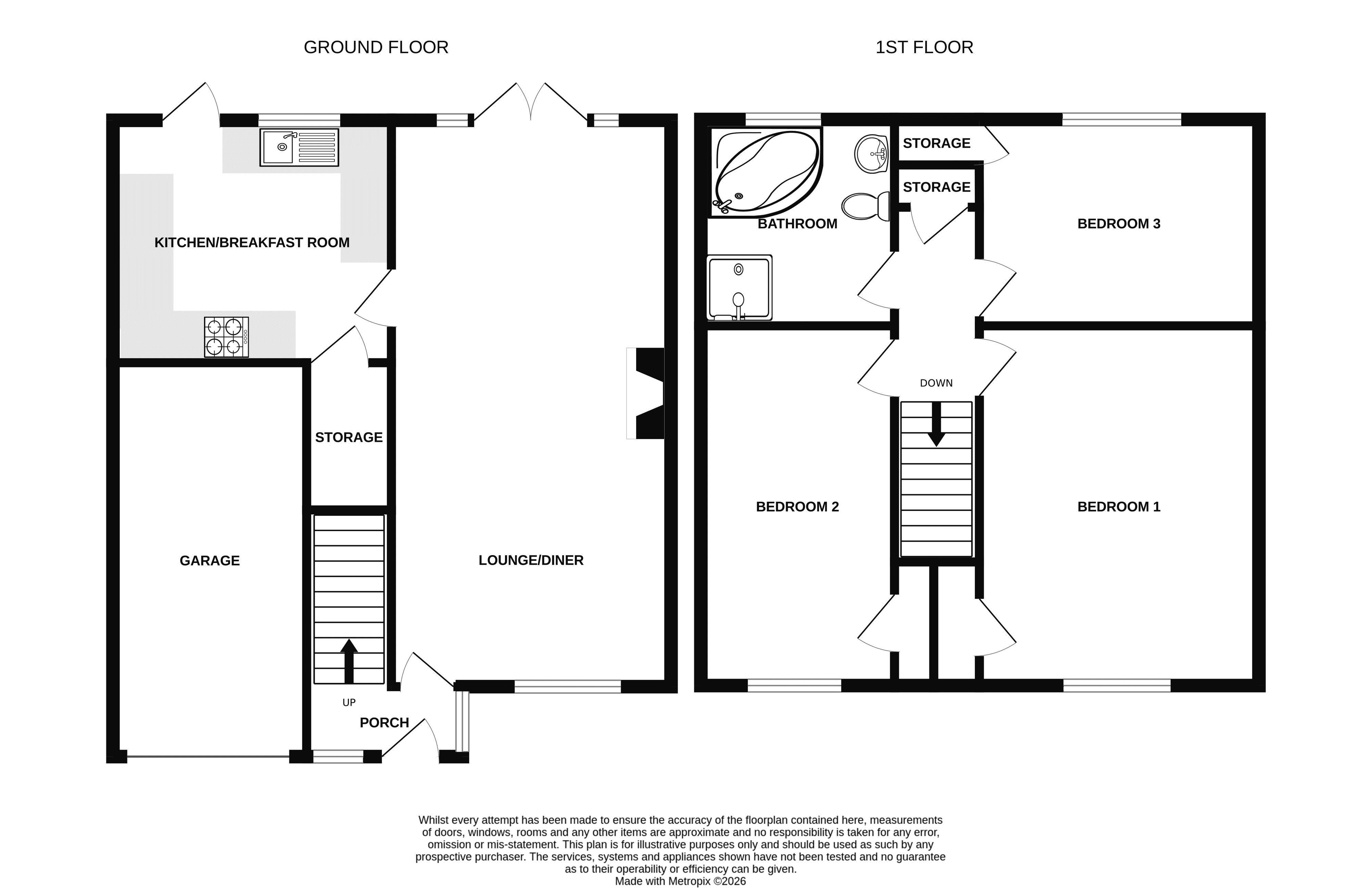
THREE BEDROOM HOME IN HAVANT CUL-DE-SAC LOCATION WITHIN WALKING DISTANCE OF HAVANT TRAIN STATION OFFERED WITH NO CHAIN AHEAD. A three bedroom middle terrace house located in Havant. This property benefits from double glazing, gas central heating system, garage with electric door and driveway parking, lounge/dining room, kitchen/breakfast room, three bedrooms, family four piece bathroom, rear garden, and viewing is a must for all serious buyers. EPC D
Directions
SAT NAV: PO9 2DH. From Havant proceed along New Road, at the roundabout take the third exit into Elmleigh Road. Turn left into Leigh Road, then left again into Russell Road. Continue into Havant Farm Road.
Entrance Porch
Front and side aspect double glazed windows, front aspect double glazed door, stairs to first floor, radiator, coved and textured ceiling, door to:
Lounge/Dining Room
20' 6'' x 10' 2'' (6.25m x 3.11m)
Front aspect double glazed window, rear aspect double glazed picture windows and French doors to garden, T.V point, radiator, coved and textured ceiling, gas fire with surround and hearth, door to:
Kitchen/Breakfast Room
11' 5'' x 8' 4'' (3.48m x 2.55m)
Rear aspect double glazed window and door to garden, range of fitted eye and base level units with worktops over, breakfast bar, under stairs storage cupboard, one and a half sink unit with mixer tap, under lights, coved and textured ceiling, radiator, display unit, fitted double oven, hob, and extractor hood, integral fridge, space for washing machine.
First Floor Landing
Textured ceiling, trap hatch to loft space, linen cupboard, doors to:
Bedroom 1
12' 5'' x 10' 4'' (3.78m x 3.14m)
Front aspect double glazed window, radiator, coved and textured ceiling, fitted wardrobe.
Bedroom 2
12' 5'' x 8' 3'' (3.78m x 2.51m)
Front aspect double glazed window, radiator, coved and textured ceiling, fitted wardrobe.
Bedroom 3
10' 3'' x 7' 7'' (3.13m x 2.32m)
Rear aspect double glazed window, radiator, coved and textured ceiling, cupboard housing boiler, fitted wardrobes.
Family Bathroom
Rear aspect double glazed window, corner bath, W.C, wash hand basin, shower cubicle, tiled splash backs, coved and textured ceiling, radiator.
Outside
The front of the property has a driveway which is block paved and provides parking for multiple vehicles. The rear garden is mainly laid to lawn with a brick store/shed, patio area, and rear pedestrian access.
Garage
16' 10'' x 8' 1'' (5.12m x 2.46m)
Electric up and over door, power, and light.
Anti-Money Laundering (AML)
Archbold & Edwards have a legal obligation to complete anti-money laundering checks. The AML check should be completed in the branch. Please call the office to book an AML check if you would like to make an offer on this property. Please note the AML check includes us taking a copy of two forms of Identification for each purchaser. A proof of address and proof of name document is required. Please note we cannot put forward an offer without the AML check being completed.
Tenure
Any information stated about the tenure and charges for a property have been provided by the seller of the property and is subject to change. All lease information provided will be confirmed by the sellers solicitor during any conveyance.
Mortgage Advisor
We have an in-house financial advisor who can offer the following services: - Mortgages and BTL - Protection - Pensions Advice - Investments Advice - Wealth Management To organise an appointment please contact Archbold & Edwards.
Conveyancing
We offer competitive conveyancing services, with local conveyancing companies. For more information or to organise a quote please call us on 02392 257999
Compliance Note
Please be aware all measurement and floor plans used in the details are approximate and for marketing purposes only. The services, system and appliances have not been tested and no guarantee as to their operability or efficiency can be given by Archbold & Edwards Ltd.
Click to enlarge
| Name | Location | Type | Distance |
|---|---|---|---|
Request A Viewing
Havant PO9 2DH



