Hawkley Close, Havant £335,000
Please enter your starting address in the form input below.
Please refresh the page if trying an alernate address.
- Three bedroom extended terrace house
- One bedroom annexe with living room, kitchenette, bedroom and shower room/W.C
- Double glazing and gas heating system
- Lounge and modern open plan kitchen/family room
- Utility room with W.C
- Cul-de-sac location
- Landscaped rear garden
- Viewing is a must
- EPC D
WOW WOW WOW MORE THAN MEETS THE EYE AT THIS EXTENDED THREE BEDROOM HOME WITH A ONE BEDROOM ANNEXE. A three bedroom extended three bedroom middle terrace house with a one bedroom annexe located in a Leigh Park cul-de-sac location, near Havant. This property benefits from double glazing, gas heating system, landscaped rear garden, lounge, modern open plan kitchen/family room, utility/W.C, first floor family bathroom, and a one bedroom annexe with living room, kitchenette, bedroom and shower room/W.C. Viewing is a must for all serious buyers. EPC D
Directions
SAT NAV: PO9 5EL. From Purbrook Way proceed towards Havant. At the roundabout take the second continuing into Purbrook Way. At the next roundabout take the first exit into Middle Park Way., turn left into Silkstead Avenue, and left again into Hawkley Close.
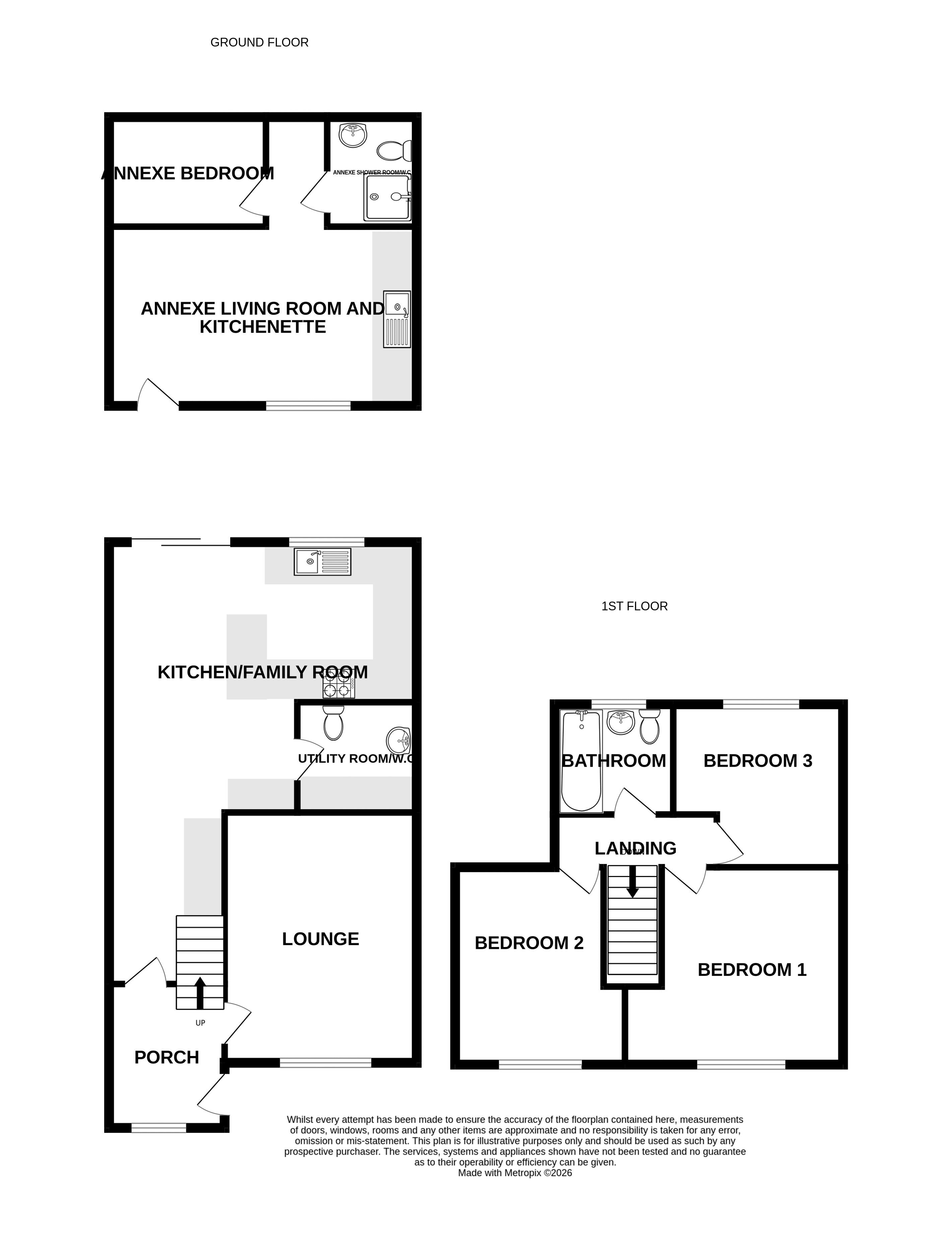
Entrance Hall
Side aspect double glazed window and door, smooth ceiling, stairs to first floor dado rail, radiator, doors to:
Lounge
13' 10'' x 10' 2'' (4.21m x 3.11m)
Front aspect double glazed window, gas fire with surround and hearth, radiator, coved and smooth ceiling, ceiling rose, T.V point.
Kitchen/Family Room
24' 11'' x 17' 3'' (7.60m x 5.27m)
Rear aspect double glazed window and patio doors to garden, comprehensive range of fitted eye and base level units with worktops over, soft close doors,tiled splash backs, one and a half sink unit, integral dishwasher and fridge, larder unit, under lights, smooth ceiling, fitted oven, hob and extractor hood, door to:
Utility Room/W.C
7' 2'' x 6' 11'' (2.18m x 2.10m)
W.C, wash hand basin, half tiling to walls, space for washing machine and tumble dryer with work top over, fitted eye level units, coved and textured ceiling.
First Floor Landing
Coved and textured ceiling, trap hatch to loft space, dado rail, doors to:
Bedroom 1
12' 10'' x 10' 4'' (3.92m x 3.16m)
Front aspect double glazed window, fitted wardrobes with mirrored doors, coved and smooth ceiling, inset lights.
Bedroom 2
12' 10'' x 7' 11'' (3.92m x 2.41m)
Front aspect double glazed window, radiator, coved and textured ceiling, inset lights.
Bedroom 3
9' 9'' x 8' 3'' (2.97m x 2.51m)
Rear aspect double glazed window, radiator, coved and smooth ceiling, inset lights.
Family Bathroom
Rear aspect double glazed window, tiling to floor, bath with shower screen and shower over, telephone style mixer tap with shower attachment, W.C, wash hand basin, tiling top walls, coved and textured ceiling.
Outside
The front of the property has a forecourt. The rear garden is mainly laid to patio with the detached annexe.
Annexe Living Room And Kitchenette
21' 11'' x 13' 9'' (6.68m x 4.19m)
Front aspect double glazed window, front aspect UPVC door, coved and smooth ceiling. Kitchenette: Range of fitted eye and base level units with worktops over, space for cooker and fridge, single sink unit. Doors to:
Annexe Bedroom
2.36
Coved and textured ceiling, trap hatch to loft space.
Annexe Shower Room/W.C
W.C, wash hand basin, shower cubicle, smooth ceiling.
Anti-Money Laundering (AML)
Archbold & Edwards have a legal obligation to complete anti-money laundering checks. The AML check should be completed in the branch. Please call the office to book an AML check if you would like to make an offer on this property. Please note the AML check includes us taking a copy of two forms of Identification for each purchaser. A proof of address and proof of name document is required. Please note we cannot put forward an offer without the AML check being completed.
Mortgage Advisor
We have an in-house financial advisor who can offer the following services: - Mortgages and BTL - Protection - Pensions Advice - Investments Advice - Wealth Management To organise an appointment please contact Archbold & Edwards.
Conveyancing
We offer competitive conveyancing services, with local conveyancing companies. For more information or to organise a quote please call us on 02392 257999
Compliance Note
Please be aware all measurement and floor plans used in the details are approximate and for marketing purposes only. The services, system and appliances have not been tested and no guarantee as to their operability or efficiency can be given by Archbold & Edwards Ltd.
Tenure
Any information stated about the tenure and charges for a property have been provided by the seller of the property and is subject to change. All lease information provided will be confirmed by the sellers solicitor during any conveyance.
Click to enlarge
| Name | Location | Type | Distance |
|---|---|---|---|
Havant PO9 5EL




