Lombardy Rise, Waterlooville £199,995
Please enter your starting address in the form input below.
Please refresh the page if trying an alernate address.
- One bedroom back to back house
- Offered with no chain ahead
- Double glazing and gas central heating system
- Allocated parking
- Garden
- An ideal first time or investment purchase
- Waterlooville cul-de-sac location
- Viewing is a must
- EPC C
ONE BEDROOM HOUSE OFFERED WITH NO CHAIN AHEAD WHICH WOULD BE AN IDEAL INVESTMENT OR FIRST TIME PURCHASE. A one bedroom back to back home located in a Waterlooville cul-de-sac location. This property benefits from double glazing, gas central heating system, allocated parking, garden, lounge/dining room, kitchen, first floor bathroom, double bedroom, double glazing, gas central heating system, and viewing is a must for all serious buyers. EPC C
DIrections
SAT NAV: PO7 8EB. Proceed along Stakes Hill Road, at the roundabout take the first exit into Frendstaple Road. Turn right into Lombardy Rise.
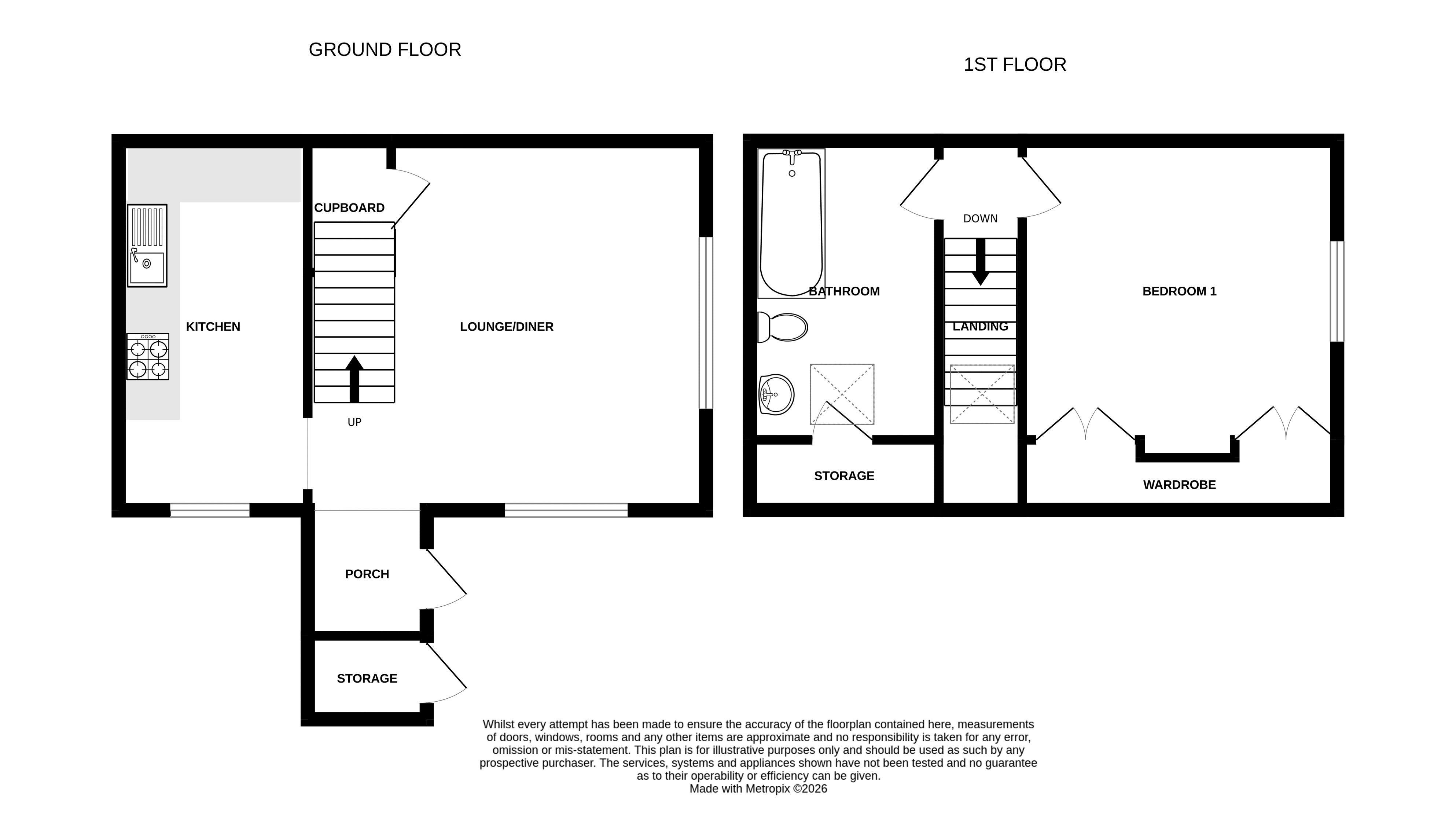
Entrance Porch
Front aspect double glazed picture window and door, rear aspect double glazed window, smooth ceiling, laminate floor, open to:
Lounge/Dining Room
15' 7'' x 12' 10'' (4.74m x 3.92m)
Front aspect double glazed windows, side aspect double glazed bow window, T.V and telephone point, T.V point, coved and textured ceiling, stairs to first floor with storage cupboard under, open to:
Kitchen
15' 6'' x 5' 7'' (4.72m x 1.69m)
Side aspect double glazed window, radiator, wall mounted Glow-worm boiler, range of fitted kitchen units and worktops, coved and textured ceiling, single sink unit, space for cooker, washing machine and fridge/freezer.
First Floor Landing
Side aspect double glazed Velux window, trap hatch to loft space, textured ceiling, doors to:
Bedroom 1
11' 10'' x 9' 3'' (3.60m x 2.81m)
Front aspect double glazed window, radiator, coved and textured ceiling, fitted wardrobes.
Bathroom
Side aspect double glazed Velux window, radiator, eaves storage, W.C, wash hand basin, bath with shower screen and shower over, tiled splash backs, textured ceiling.
Outside
The property has an allocated parking space, and a garden laid to lawn with a courtyard area. There is also a brick attached store.
Anti-Money Laundering (AML)
Archbold & Edwards have a legal obligation to complete anti-money laundering checks. The AML check should be completed in the branch. Please call the office to book an AML check if you would like to make an offer on this property. Please note the AML check includes us taking a copy of two forms of Identification for each purchaser. A proof of address and proof of name document is required. Please note we cannot put forward an offer without the AML check being completed.
Mortgage Advisor
We have an in-house financial advisor who can offer the following services: - Mortgages and BTL - Protection - Pensions Advice - Investments Advice - Wealth Management To organise an appointment please contact Archbold & Edwards.
Conveyancing
We offer competitive conveyancing services, with local conveyancing companies. For more information or to organise a quote please call us on 02392 257999
Compliance Note
Please be aware all measurement and floor plans used in the details are approximate and for marketing purposes only. The services, system and appliances have not been tested and no guarantee as to their operability or efficiency can be given by Archbold & Edwards Ltd.
Tenure
Any information stated about the tenure and charges for a property have been provided by the seller of the property and is subject to change. All lease information provided will be confirmed by the sellers solicitor during any conveyance.
Click to enlarge
| Name | Location | Type | Distance |
|---|---|---|---|
Request A Viewing
Waterlooville PO7 8EB



