Dresden Drive, Cowplain £365,000
Please enter your starting address in the form input below.
Please refresh the page if trying an alernate address.
- Extended three bedroom semi house
- Double glazing and gas central heating system
- Garage and driveway parking
- Open plan lounge and separate dining room
- Family bathroom and cloakroom/W.C
- Mature rear gardens
- Viewing is a must
- EPC D
EXTENDED ACCOMMODATION AT THIS FAMILY SIZED SEMI DETACHED HOUSE IN COWPLAIN. A three bedroom semi detached house situated in Cowplain, near Waterlooville. This property benefits from double glazing, gas central heating system, garage and driveway parking, cloakroom/W.C, fitted kitchen, open plan lounge and dining room, conservatory, family bathroom, mature rear gardens, and viewing of this property is highly recommended. EPC D
Directions
SAT NAV: PO8 8RN. Proceed along Hambledon Road towards Denmead. At the roundabout take the third exit into Milton Road. Turn left into Hart Plain Avenue, and the left again into Dresden Drive.
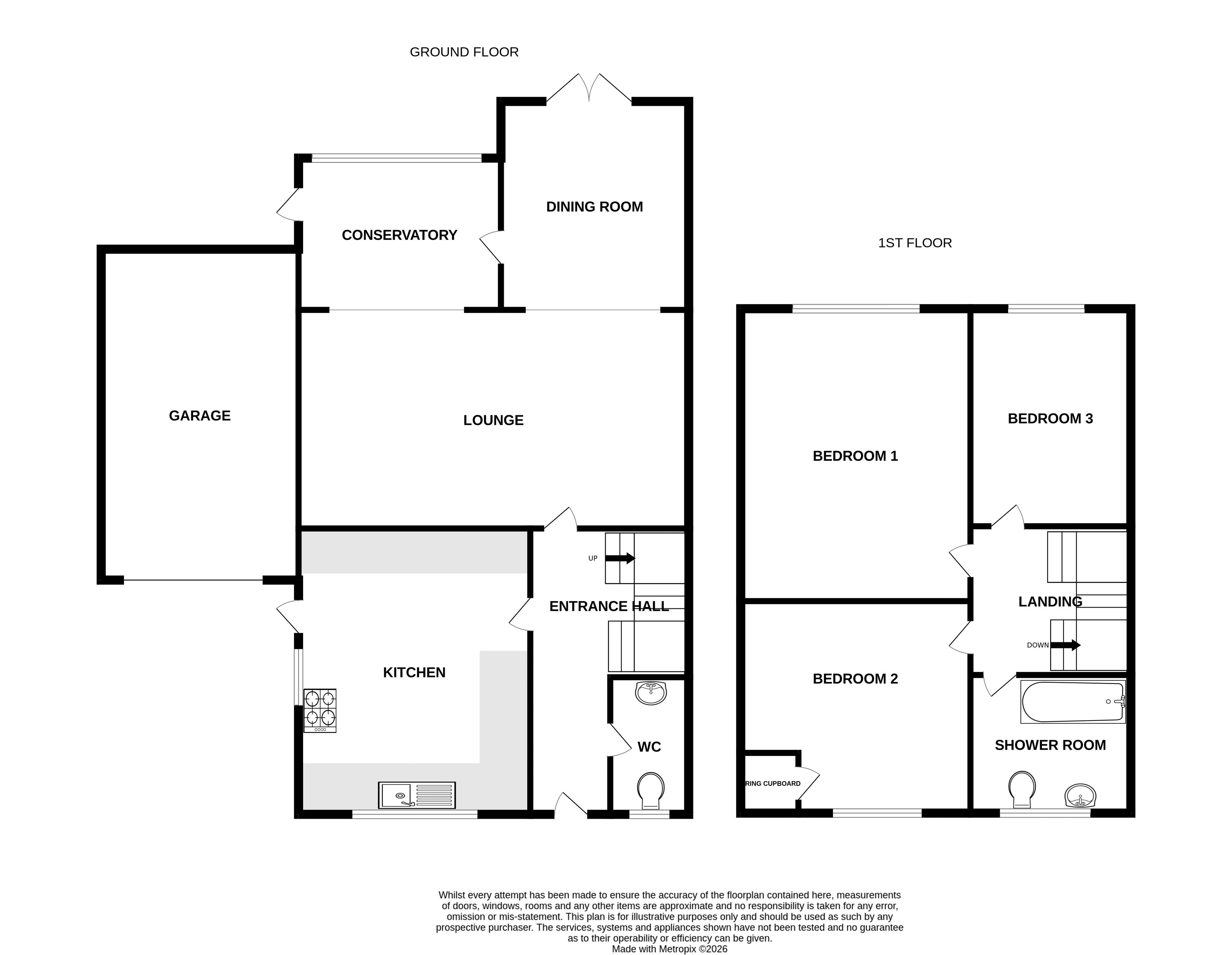
Entrance Hall
Front aspect double glazed door, coved and smooth ceiling, Karndean flooring, meter cupboard, stairs to first floor with storage under, doors to:
Cloakroom/W.C
Front aspect double glazed window, vanity unit incorporating W.C and wash hand basin, tiled splash backs, smooth ceiling, radiator, Karndean flooring.
Kitchen
11' 11'' x 10' 6'' (3.63m x 3.19m)
Front and side aspect double glazed window, side aspect double glazed door to side driveway, comprehensive range of eye and base level units with wood block worktops over, coved and smooth ceiling, inset lights, up stands, fitted five ring gas hob with extractor hood over and splash back, fitted oven and microwave oven, space for fridge/freezer, space for dishwasher and washing machine, inset one and a half sink unit with mixer taps.
Lounge
19' 7'' x 11' 0'' (5.98m x 3.35m)
Radiator, T.V point, coved and smooth ceiling, Karndean, open to:
Dining Room
10' 4'' x 8' 10'' (3.15m x 2.70m)
Rear aspect double glazed French doors to gardens, coved and smooth ceiling, radiator, Karndean floor, door to:
Conservatory
9' 7'' x 7' 11'' (2.91m x 2.42m)
Rear aspect double glazed window, side aspect double glazed door to gardens, Karndean flooring.
First Floor Landing
Coved and smooth ceiling, trap hatch to loft space, doors to:
Bedroom 1
14' 0'' x 10' 7'' (4.27m x 3.23m)
Rear aspect double glazed window, radiator, coved and smooth ceiling.
Bedroom 2
10' 6'' x 9' 0'' (3.20m x 2.74m)
Front aspect double glazed window, radiator, airing cupboard, coved and textured ceiling.
Bedroom 3
10' 11'' x 8' 9'' (3.34m x 2.67m)
Rear aspect double glazed window, radiator, coved and textured ceiling.
Family Bathroom
Front aspect double glazed window, vanity unit incorporating W.C and wash hand basin, p-shaped bath with screen and shower over, heated towel rail, smooth plastered ceiling, inset lights, tiling to walls, extractor, fitted mirror with vanity lighting.
Outside
The front garden is mainly laid to lawn with path to the front door. There is a driveway providing parking and giving access to the attached garage. The rear garden is mainly laid to lawn with a patio area, and shed.
Anti-Money Laundering (AML)
Archbold & Edwards have a legal obligation to complete anti-money laundering checks. The AML check should be completed in the branch. Please call the office to book an AML check if you would like to make an offer on this property. Please note the AML check includes us taking a copy of two forms of Identification for each purchaser. A proof of address and proof of name document is required. Please note we cannot put forward an offer without the AML check being completed.
Mortgage Advisor
We have an in-house financial advisor who can offer the following services: - Mortgages and BTL - Protection - Pensions Advice - Investments Advice - Wealth Management To organise an appointment please contact Archbold & Edwards.
Conveyancing
We offer competitive conveyancing services, with local conveyancing companies. For more information or to organise a quote please call us on 02392 257999
Compliance Note
Please be aware all measurement and floor plans used in the details are approximate and for marketing purposes only. The services, system and appliances have not been tested and no guarantee as to their operability or efficiency can be given by Archbold & Edwards Ltd.
Tenure
Any information stated about the tenure and charges for a property have been provided by the seller of the property and is subject to change. All lease information provided will be confirmed by the sellers solicitor during any conveyance.
Click to enlarge
| Name | Location | Type | Distance |
|---|---|---|---|
Cowplain PO8 8RN




