Spruce Avenue, Waterlooville £200,000
Please enter your starting address in the form input below.
Please refresh the page if trying an alernate address.
- One bedroom house
- Double glazing and gas central heating system
- Allocated parking
- Private garden
- Lounge/dining room and conservatory
- An ideal first time or investment purchase
- Offered with no chain ahead
- Viewing is a must
- EPC C
AN IDEAL FIRST TIME OR INVESTMENT PURCHASE OFFERED WITH NO CHAIN AHEAD. A one bedroom FREEHOLD back to back house located in Waterlooville close to motorway links and local amenities. This property benefits from double glazing, gas central heating system, private garden, allocated parking, lounge/dining room, conservatory, kitchen, modern fitted family bathroom, and viewing is a must for all serious buyers. EPC C
Directions
SAT NAV: PO7 8HA. Proceed along Stakes Hill Road, at the roundabout take the first exit into Frendstaple Road. Spruce Avenue can be found on the right hand side.
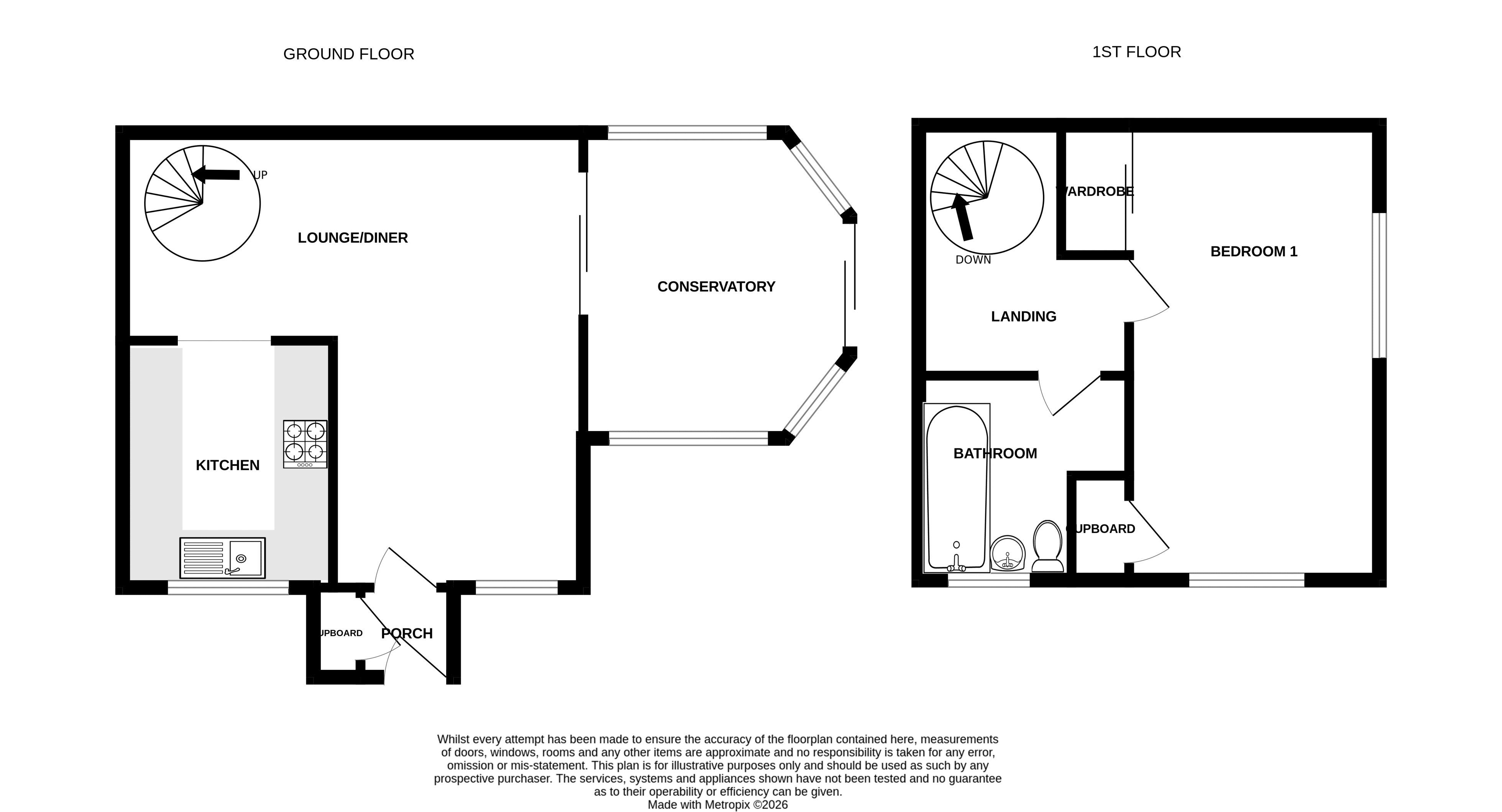
Entrance Porch
Front aspect double glazed door, side aspect double glazed window, double glazed door to:
Lounge/Dining Room
16' 4'' x 13' 2'' (4.97m x 4.01m)
Front double glazed window, side aspect double glazed patio door to conservatory, radiator, spiral staircase, T.V and telephone point, coved and smooth ceiling, open to:
Kitchen
6' 7'' x 5' 7'' (2.01m x 1.71m)
Front aspect double glazed window, tiling to floor, range of fitted eye and base level kitchen units and worktops over, splash backs, single sink unit, space for washing machine, oven, hob, and extractor hood, coved and smooth ceiling.
Conservatory
9' 9'' x 9' 3'' (2.98m x 2.83m)
Side and rear aspect double glazed windows, rear aspect double glazed patio doors to gardens, radiator, tiling to floor.
First Floor Landing
Textured ceiling, radiator, doors to:
Bedroom 1
Front and side aspect double glazed windows, radiator, wardrobe, airing cupboard, trap hatch to loft space, telephone point, radiator, coved and textured ceiling.
Family Bathroom
Front aspect double glazed window, W.C, wash hand basin, bath with shower screen and shower over, tiled splash backs, extractor, heated towel rail, smooth ceiling, tiling to floor.
Outside
The property has an allocated parking space. There is a rear garden which is enclosed by hedging, shed, and patio area.
Anti-Money Laundering (AML)
Archbold & Edwards have a legal obligation to complete anti-money laundering checks. The AML check should be completed in the branch. Please call the office to book an AML check if you would like to make an offer on this property. Please note the AML check includes us taking a copy of two forms of Identification for each purchaser. A proof of address and proof of name document is required. Please note we cannot put forward an offer without the AML check being completed.
Mortgage Advisor
We have an in-house financial advisor who can offer the following services: - Mortgages and BTL - Protection - Pensions Advice - Investments Advice - Wealth Management To organise an appointment please contact Archbold & Edwards.
Conveyancing
We offer competitive conveyancing services, with local conveyancing companies. For more information or to organise a quote please call us on 02392 257999
Compliance Note
Please be aware all measurement and floor plans used in the details are approximate and for marketing purposes only. The services, system and appliances have not been tested and no guarantee as to their operability or efficiency can be given by Archbold & Edwards Ltd.
Tenure
Any information stated about the tenure and charges for a property have been provided by the seller of the property and is subject to change. All lease information provided will be confirmed by the sellers solicitor during any conveyance.
Click to enlarge
| Name | Location | Type | Distance |
|---|---|---|---|
Waterlooville PO7 8HA




