Ludlow Road, Itchen £270,000
Please enter your starting address in the form input below.
Please refresh the page if trying an alernate address.
- Three bedroom older style home
- Two reception rooms
- Off road parking for multiple vehicles
- Double glazing and electric heating system
- Recommended Itchen location
- Close to schools and amenities
- Mature garden
- Recently refurbished
- Viewing is a must
- EPC E
THREE BEDROOM OLDER STYLE HOME WHICH HAS BEEN RECENTLY REFURBISHED AND IS WITHIN WALKING DISTANCE OF LOCAL SCHOOLS AND AMENITIES. A three bedroom older style terrace house located in Itchen, Southampton. This property benefits from double glazing, electric heating system, off road parking for multiple vehicles, lounge, family/dining room, kitchen, shower room and separate W.C, three bedrooms, and mature rear garden. Viewing is a must for all serious buyers. EPC E
Directions
SAT NAV: SO19 2EL. From Bursledon Rd/A3024 head towards Gavan Street, turn right onto Orpen Road, then turn right onto Butts Road. Turn left to stay on Butts Road, turn right onto S E Rd, continue onto Sholing Road, turn left onto Ludlow Road.
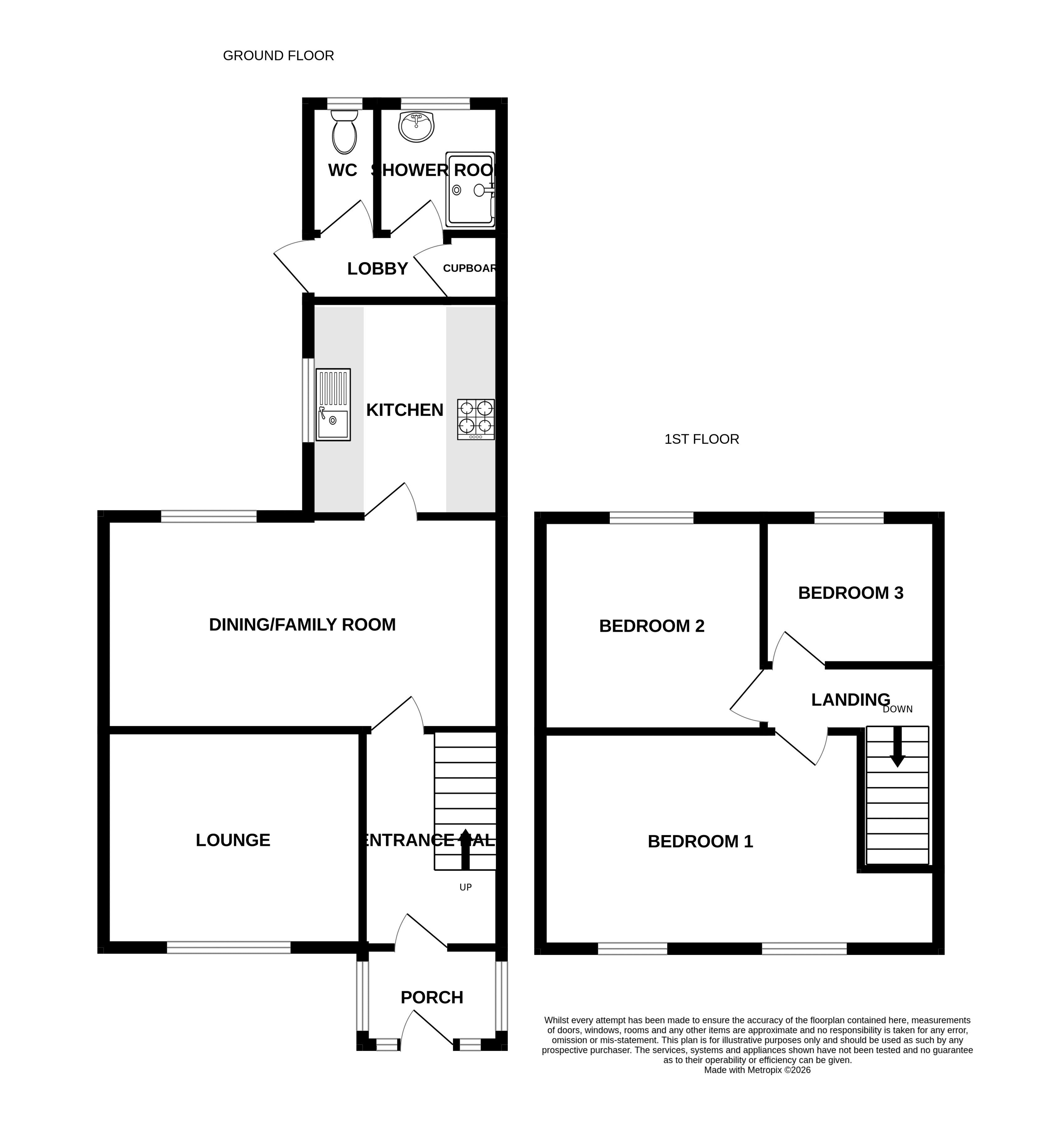
Entrance Porch
Front and side aspect double glazed windows, front aspect double glazed window, tiling ot floor, door to:
Entrance Hall
Front aspect door, stairs to first floor, electric heater, smooth ceiling, doors to:
Lounge
10' 9'' x 9' 11'' (3.28m x 3.02m)
Front aspect double glazed window, electric heater, feature floating fireplace, smooth ceiling.
Dining Room
16' 5'' x 10' 11'' (5.00m x 3.32m)
Rear aspect double glazed window, electric heater, smooth ceiling, door to:
Kitchen
8' 8'' x 8' 4'' (2.64m x 2.53m)
Side aspect double glazed window, smooth ceiling, range of fitted eye and base level units with worktops over, space for washing machine and fridge, larder unit, oven, hob, and extractor hood over, brick style tiled splash backs, single sink unit with mixer tap, door to:
Rear Lobby
Side aspect double glazed door to garden, linen cupboard, smooth ceiling, doors to:
Shower Room/W.C
Rear aspect double glazed window, wash hand basin, shower cubicle, tiled splash backs, heated towel rail, smooth ceiling.
Separate W.C
Rear aspect double glazed window, W.C, smooth ceiling, heated towel rail.
First Floor Landing
Smooth ceiling, doors to:
Bedroom 1
13' 3'' x 9' 10'' (4.05m x 3.00m)
Two Front aspect double glazed windows, electric heater, smooth ceiling, hanging rails.
Bedroom 2
10' 11'' x 8' 1'' (3.33m x 2.46m)
Rear aspect double glazed window, electric heater, smooth ceiling.
Bedroom 3
7' 10'' x 7' 10'' (2.40m x 2.40m)
Rear aspect double glazed window, electric heater, smooth ceiling.
Outside
The front of the property have a forecourt. The rear garden is mainly laid to lawn with stoned patio area, scattered shrubs dn plants. There is a rear driveway which provides parking for multiple vehicles and also rear pedestrian access to the garden.
Anti-Money Laundering (AML)
Archbold & Edwards have a legal obligation to complete anti-money laundering checks. The AML check should be completed in the branch. Please call the office to book an AML check if you would like to make an offer on this property. Please note the AML check includes us taking a copy of two forms of Identification for each purchaser. A proof of address and proof of name document is required. Please note we cannot put forward an offer without the AML check being completed.
Mortgage Advisor
We have an in-house financial advisor who can offer the following services: - Mortgages and BTL - Protection - Pensions Advice - Investments Advice - Wealth Management To organise an appointment please contact Archbold & Edwards.
Conveyancing
We offer competitive conveyancing services, with local conveyancing companies. For more information or to organise a quote please call us on 02392 257999
Compliance Note
Please be aware all measurement and floor plans used in the details are approximate and for marketing purposes only. The services, system and appliances have not been tested and no guarantee as to their operability or efficiency can be given by Archbold & Edwards Ltd.
Tenure
Any information stated about the tenure and charges for a property have been provided by the seller of the property and is subject to change. All lease information provided will be confirmed by the sellers solicitor during any conveyance.
Click to enlarge
| Name | Location | Type | Distance |
|---|---|---|---|
Request A Viewing
Itchen SO19 2EL



