Brixworth Close, Paulsgrove £299,995
Please enter your starting address in the form input below.
Please refresh the page if trying an alernate address.
- Extended brick built semi detached house
- Modern open plan dining room, kitchen, and snug
- Separate utility room
- Double glazing and gas central heating system
- Driveway parking
- Rear garden
- First floor four piece family bathroom
- Viewing is a must
- EPC C
EXTENDED BRICK BUILT SEMI DETACHED HOUSE WITH DRIVEWAY PARKING. An extended three bedroom semi detached house located in Paulsgrove, Portsmouth. This property benefits from double glazing, gas central heating system, driveway parking, rear garden, lounge, modern open plan kitchen/dining room with snug, utility room, cloakroom/W.C, first floor four piece family bathroom, and viewing is a must for all serious buyers. EPC C
Directions
SAT NAV: PO6 4EP. From Cosham proceed along Southampton Road towards Portchester. Turn right into Allaway Avenue, and continue past the shops on the left hand side. Turn right into Woofferton Road, then left into Deerhurst Crescent. Brixworth Close can be found on the left hand side.
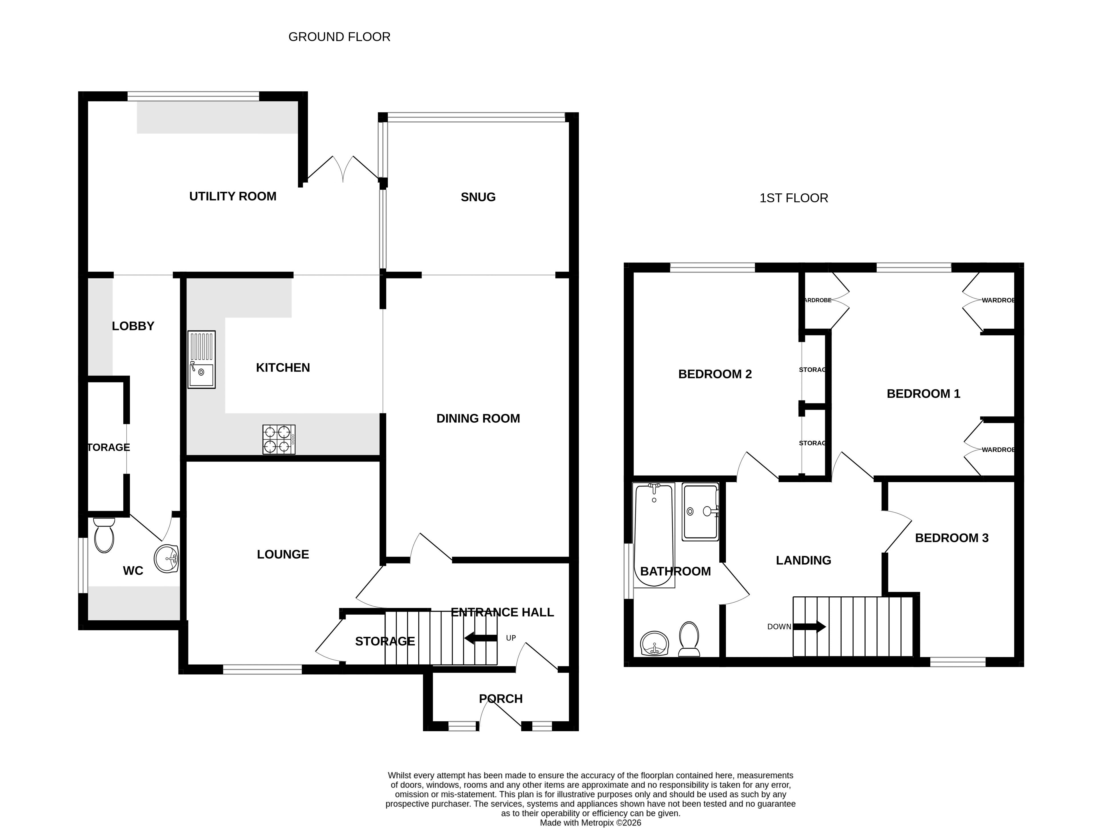
Lounge
12' 2'' x 11' 1'' (3.71m x 3.37m)
Front aspect double glazed window, feature radiator, under stairs cupboard, T.V point, coved and smooth ceiling.
Entrance Porch
Front aspect double glazed window and door, double glazed door to:
Entrance Hall
Front aspect double glazed window and door, stairs to first floor, radiator, smooth ceiling, laminate floor, doors to:
Dining Room
13' 11'' x 10' 8'' (4.25m x 3.25m)
Tiling to floor, coved and smooth ceiling, inset lights, feature radiator, inset fireplace, open plan to:
Snug
11' 4'' x 7' 7'' (3.45m x 2.32m)
Rear and side aspect double glazed windows, tiling to floor, smooth ceiling.
Kitchen
11' 11'' x 8' 3'' (3.64m x 2.52m)
Tiling to floor, smooth ceiling, inset lights, range of fitted eye and base level units with wood block worktops over, splash backs, space for range style cooker, larder unit, ceramic sink unit with mixer tap, integral dishwasher, under lights, extractor hood, plate rack, open to:
Utility Room
14' 1'' x 7' 3'' (4.28m x 2.20m)
Rear and side aspect double glazed window, rear aspect double glazed French doors to garden, feature radiator, tiling to floor, coved and smooth ceiling, fitted kitchen unit with wood block worktops over, space for freezer, open to:
Side Lobby
Space for American style fridge/freezer, storage cupboard, door to:
Cloakroom/Utility Area
Side aspect double glazed windows, W.C, wash hand basin, heated towel rail, space for washing machine and tumble dryer, WOrcester wall mounted boiler.
First Floor Landing
Front aspect double glazed window, trap hatch to loft space, smooth ceiling, doors to:
Bedroom 1
12' 0'' x 9' 5'' (3.65m x 2.86m)
Rear aspect double glazed window, radiator, two fitted wardrobes, fitted cupboard, smooth ceiling.
Bedroom 2
12' 0'' x 9' 5'' (3.67m x 2.87m)
Two rear aspect double glazed window, textured ceiling, two wardrobes, radiator.
Bedroom 3
9' 5'' x 8' 9'' (2.86m x 2.67m)
Front aspect double glazed window, smooth ceiling, radiator.
Family Bathroom
Side aspect double glazed window, vanity wash hand basin, W.C, shower cubicle, bath, tiling to walls, sensor mirror, smooth ceiling.
Outside
The front of the property has a driveway providing parking. The property also benefits room a rear garden.
Anti-Money Laundering (AML)
Archbold & Edwards have a legal obligation to complete anti-money laundering checks. The AML check should be completed in the branch. Please call the office to book an AML check if you would like to make an offer on this property. Please note the AML check includes us taking a copy of two forms of Identification for each purchaser. A proof of address and proof of name document is required. Please note we cannot put forward an offer without the AML check being completed.
Mortgage Advisor
We have an in-house financial advisor who can offer the following services: - Mortgages and BTL - Protection - Pensions Advice - Investments Advice - Wealth Management To organise an appointment please contact Archbold & Edwards.
Conveyancing
We offer competitive conveyancing services, with local conveyancing companies. For more information or to organise a quote please call us on 02392 257999
Compliance Note
Please be aware all measurement and floor plans used in the details are approximate and for marketing purposes only. The services, system and appliances have not been tested and no guarantee as to their operability or efficiency can be given by Archbold & Edwards Ltd.
Tenure
Any information stated about the tenure and charges for a property have been provided by the seller of the property and is subject to change. All lease information provided will be confirmed by the sellers solicitor during any conveyance.
Click to enlarge
| Name | Location | Type | Distance |
|---|---|---|---|
Paulsgrove PO6 4EP




