Anne Crescent, Waterlooville Offers Over £280,000
Please enter your starting address in the form input below.
Please refresh the page if trying an alernate address.
- Three bedroom semi detached house
- Offered with no chain ahead
- Double glazing
- Mature garden
- Two reception rooms
- First floor W.C and bathroom
- Lounge and kitchen/breakfast room
- Rarely available Waterlooville location
- IN NEED OF UPDATING
- EPC D
THREE BEDROOM FAMILY HOME OFFERED WITH NO CHAIN AHEAD IN NEED OF UPDATING. A three bedroom family style semi detached house located in a rarely available Waterlooville location within walking distance of local schools and amenities. This property benefits from double glazing, mature gardens, lounge, dining room, kitchen/breakfast room, first floor family bathroom and separate W.C, viewing is a must for all serious buyers. EPC D
Directions
SAT NAV: PO7 7NA. From Waterlooville proceed along Stakes HIll Road, turn right into Elizabeth Road, then right again into Anne Crescent.
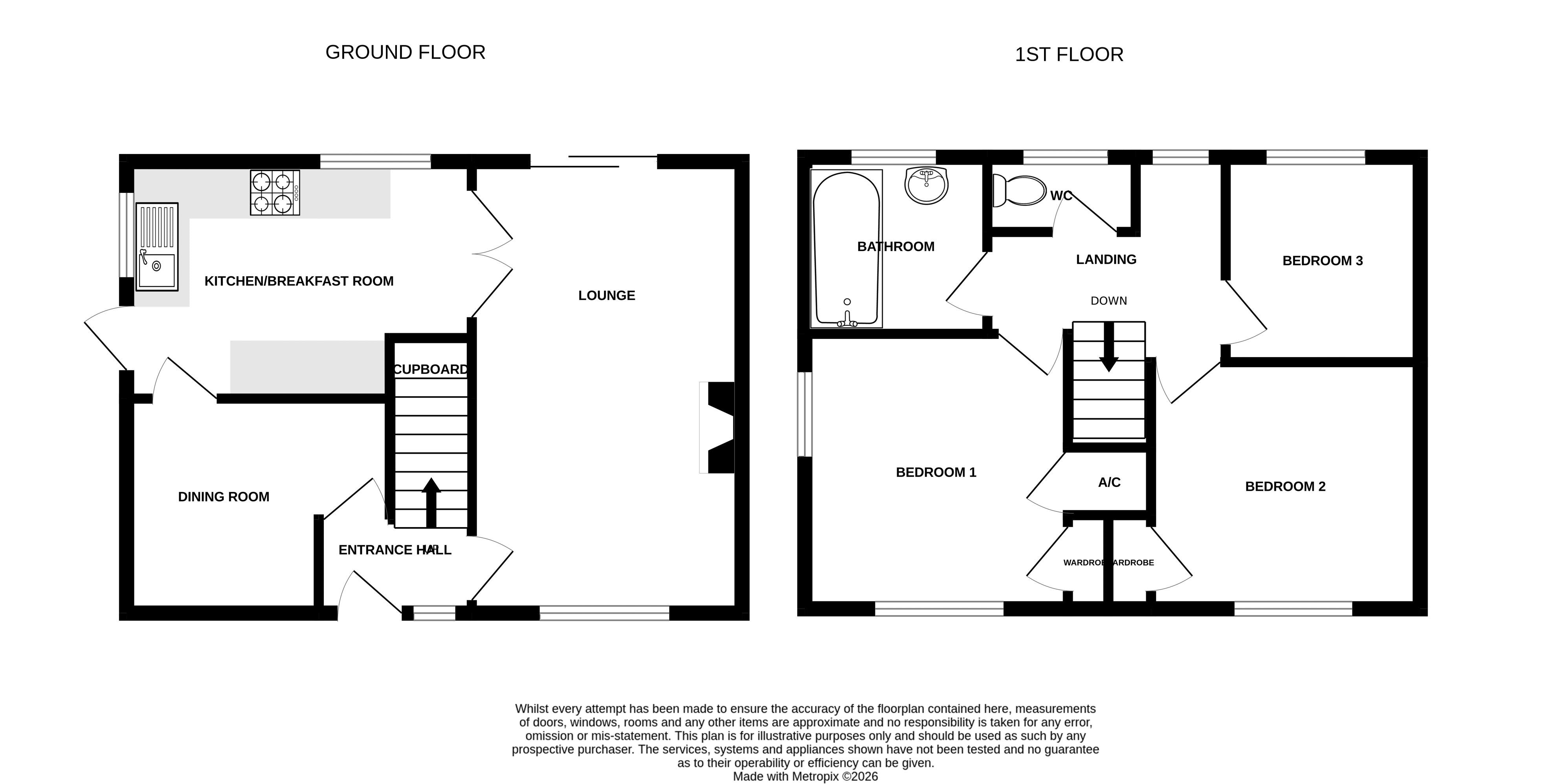
Entrance Hall
Front aspect double glazed window and door, radiator (not tested), stairs to first floor, texture ceiling, doors to:
Lounge
19' 8'' x 11' 9'' (6.00m x 3.57m)
Front aspect double glazed window, rear aspect double glazed patio doors to garden, double doors to kitchen/breakfast room, T.V point, coved and textured ceiling, wall lights, gas fire with surround and hearth.
Dining Room
11' 8'' x 8' 8'' (3.56m x 2.63m)
Front and side aspect double glazed windows, textured ceiling, open to:
Kitchen/Breakfast Room
14' 11'' x 9' 2'' (4.54m x 2.80m)
Side and rear aspect double glazed window, side aspect double glazed door to garden, under stairs cupboard, range of fitted eye and base level units with worktops over, tiled splash backs, fitted oven, hob, and extractor hood over, single sink unit, space for washing machine and fridge, radiator (not tested).
First Floor Landing
Rear aspect double glazed window, textured ceiling, trap hatch to loft space, doors to:
Bedroom 1
12' 0'' x 11' 10'' (3.66m x 3.60m)
Front and side aspect double glazed window, radiator (not working), two wardrobes.
Bedroom 2
11' 9'' x 9' 7'' (3.57m x 2.91m)
Front aspect double glazed window, radiator (not working), fitted wardrobe, textured ceiling.
Bedroom 3
8' 9'' x 8' 2'' (2.67m x 2.48m)
Rear aspect double glazed window, smooth ceiling.
Family Bathroom
Rear aspect double glazed window, wash hand basin, bath with shower screen and shower over, tiled splash backs, smooth ceiling.
W.C
Rear aspect double glazed window, smooth ceiling, W.C.
Outside
The front garden is laid to lawn with a path to the front door. There is side pedestrian access to the rear garden. The rear garden is again mainly laid to lawn with a patio and scattered shrubs.
Anti-Money Laundering (AML)
Archbold & Edwards have a legal obligation to complete anti-money laundering checks. The AML check should be completed in the branch. Please call the office to book an AML check if you would like to make an offer on this property. Please note the AML check includes us taking a copy of two forms of Identification for each purchaser. A proof of address and proof of name document is required. Please note we cannot put forward an offer without the AML check being completed.
Mortgage Advisor
We have an in-house financial advisor who can offer the following services: - Mortgages and BTL - Protection - Pensions Advice - Investments Advice - Wealth Management To organise an appointment please contact Archbold & Edwards.
Conveyancing
We offer competitive conveyancing services, with local conveyancing companies. For more information or to organise a quote please call us on 02392 257999
Compliance Note
Please be aware all measurement and floor plans used in the details are approximate and for marketing purposes only. The services, system and appliances have not been tested and no guarantee as to their operability or efficiency can be given by Archbold & Edwards Ltd.
Tenure
Any information stated about the tenure and charges for a property have been provided by the seller of the property and is subject to change. All lease information provided will be confirmed by the sellers solicitor during any conveyance.
Click to enlarge
| Name | Location | Type | Distance |
|---|---|---|---|
Waterlooville PO7 7NA




