Salet Way, Waterlooville £510,000
Please enter your starting address in the form input below.
Please refresh the page if trying an alernate address.
- Four/five bedroom detached house
- Popular Tempest Avenue location
- En suite shower room
- Open plan kitchen/dining room
- Ground floor cloakroom
- Gas central heating
- Off road parking leading to garage
- Conservatory
- Owned solar panels
- EPC B
A FOUR/FIVE BEDROOM DETACHED HOUSE WITH EN SUITE TO MASTER LOCATED IN A QUIET CUL DE SAC LOCATION. A four/ five bedroom detached house with open plan kitchen/dining room and en suite shower room to master. The property also benefits from a double glazed conservatory, ground floor cloakroom, utility room, driveway for multiple cars leading to integral garage. There is also an enclosed rear garden with patio area. The property also has the benefit of OWNED SOLAR PANELS. EPC - B
Directions
SAT NAV: PO7 8QS. Proceed along Hulbert Road, at the roundabout take the first exit into Tempest Avenue. Continue over the next roundabout again into Tempest Avenue. Turn right into Coralin Grove, and continue into Harkness Drive. Salet Way can be found on the right hand side.
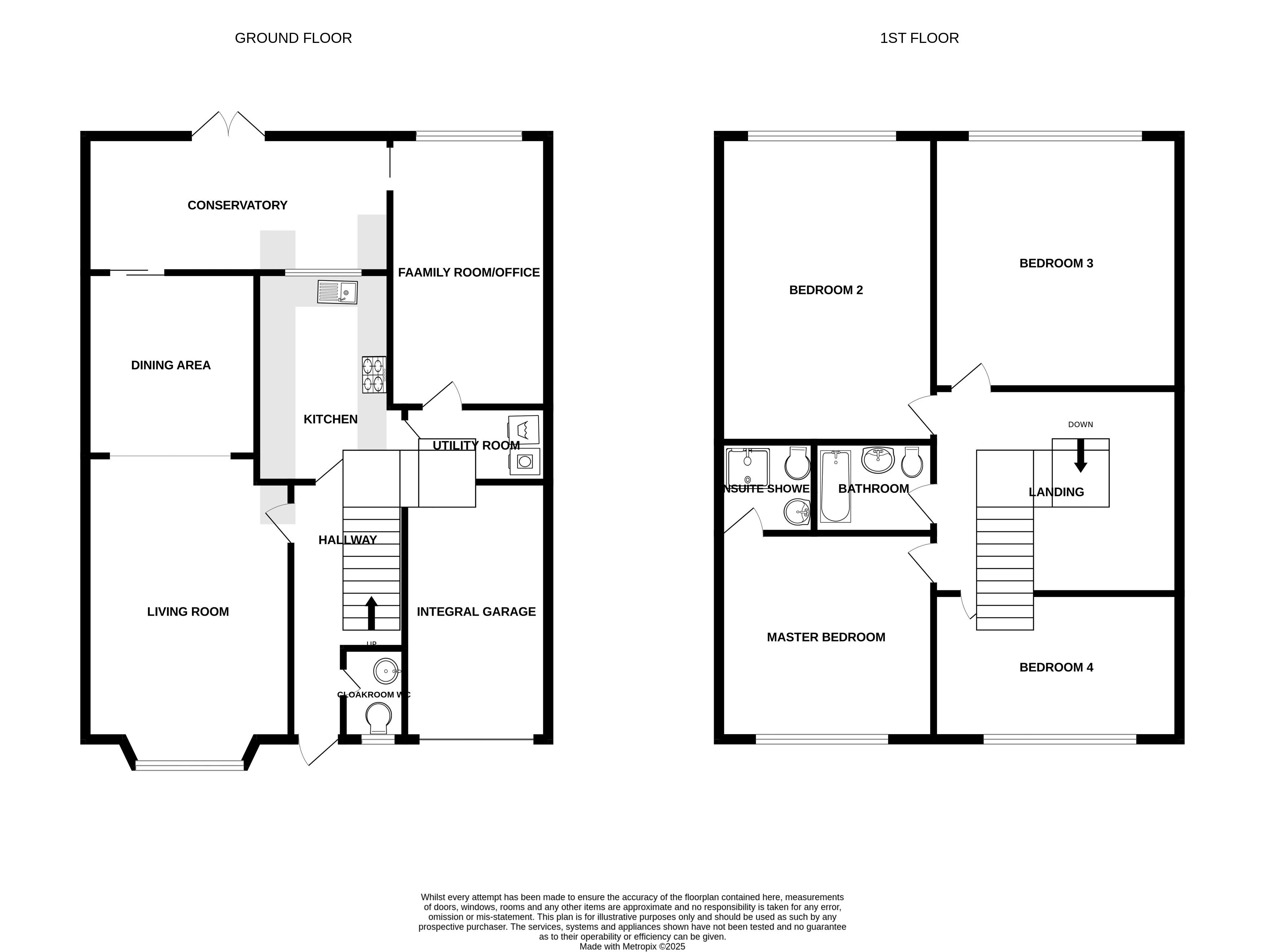
Entrance Hall
Double glazed front door, understairs storage unit, tall radiator, stairs to first floor, door to living room.
Cloakroom
Suite comprising vanity wash hand basin, low level WC, heated towel rail, double glazed front aspect window.
Lounge
17' 10'' x 11' 10'' (5.43m x 3.61m)
Front aspect double glazed bay window, gas fire with surround, tall radiator, opening to dining area.
Dining area
10' 0'' x 8' 8'' (3.06m x 2.64m)
Double glazed doors to conservatory, radiator, opening to kitchen area.
Kitchen
12' 0'' x 10' 1'' (3.66m x 3.08m)
Fitted with a range of wall and floor units, work surfaces, single drainer stainless steel sink unit, integrated fridge/freezer, integrated dishwasher, five ring gas hob with over under, extractor, part tiled walls, double glazed rear aspect window.
Conservatory
17' 9'' x 7' 8'' (5.42m x 2.34m)
Double glazed rear aspect window, double glazed french doors to rear garden, double glazed roof, radiator, double glazed doors leading to bedroom 5/reception room.
Bedroom 5/Reception room
15' 4'' x 8' 0'' (4.68m x 2.45m)
Vaulted ceiling with Velux style window, double glazed rear aspect window, radiator door to utility room.
Utility room
Plumbing for washing machine, door to integral garage.
Integral garage
18' 4'' x 8' 3'' (5.59m x 2.51m)
Up and over door, power and light, door to utility room.
First Floor Landing
Access to loft space, built in linen cupboard.
Bedroom 1
11' 5'' x 10' 4'' (3.47m x 3.16m)
Front aspect double glazed window, radiator. Door to en-suite shower room.
En-suite
Suite comprising shower cubicle, vanity wash hand basin, chrome heated towel rail, tiled walls and flooring, side aspect double glazed window.
Bedroom 2
10' 4'' x 9' 4'' (3.15m x 2.85m)
Rear aspect double glazed window, built in wardrobe cupboard, radiator.
Bedroom 3
7' 3'' x 7' 5'' (2.21m x 2.27m)
Rear aspect double glazed window, built in wardrobe cupboard, radiator.
Bedroom 4
7' 6'' x 7' 1'' (2.28m x 2.17m) (into the back of the wardrobe)
Front aspect double glazed window, range of fitted wardrobe cupboards with hanging space and shelving, radiator.
Family Bathroom
Suite comprising panelled bath with shower over, low level WC, vanity wash hand basin, chrome heated towel rail, tiled walls and flooring.
Outside
The property can be found located at the end a small private driveway. The driveway provided parking for multiple cars leading to integral garage. Side pedestrian access leading to enclosed rear garden with lawn, patio area, shed.
Anti-Money Laundering (AML)
Archbold & Edwards have a legal obligation to complete anti-money laundering checks. The AML check should be completed in the branch. Please call the office to book an AML check if you would like to make an offer on this property. Please note the AML check includes us taking a copy of two forms of Identification for each purchaser. A proof of address and proof of name document is required. Please note we cannot put forward an offer without the AML check being completed.
Mortgage Advisor
We have an in-house financial advisor who can offer the following services: - Mortgages and BTL - Protection - Pensions Advice - Investments Advice - Wealth Management To organise an appointment please contact Archbold & Edwards.
Compliance Note
Please be aware all measurement and floor plans used in the details are approximate and for marketing purposes only. The services, system and appliances have not been tested and no guarantee as to their operability or efficiency can be given by Archbold & Edwards Ltd.
Tenure
Any information stated about the tenure and charges for a property have been provided by the seller of the property and is subject to change. All lease information provided will be confirmed by the sellers solicitor during any conveyance.
Click to enlarge
| Name | Location | Type | Distance |
|---|---|---|---|
Request A Viewing
Waterlooville PO7 8QS



