East Lodge Park, Farlington £349,995
Please enter your starting address in the form input below.
Please refresh the page if trying an alernate address.
- Four bedroom semi detached house
- Double glazing and gas central heating system
- Garage and driveway parking
- Offered with no chain ahead
- Requested Farlington location
- Lounge/dining room and conservatory
- Cloakroom/W.C, ground floor utility/shower room and bathroom
- Viewing is a must
- EPC D
FOUR BEDROOM SEMI DETACHED HOUSE IN NEED OF UPDATING OFFERED WITH NO CHAIN AHEAD. A four bedroom semi detached house located in Farlington, near Havant and Drayton. This property benefits from double glazing, gas central heating system, garage and driveway parking, lounge/dining room, kitchen/breakfast room, cloakroom/W.C, utility room and shower room, conservatory, first floor family bathroom, mature garden, and viewing is a must for all serious buyers. EPC D
Direction
SAT NAV PO6 1AQ: From Cosham proceed along Havant Road towards Farlington. East Lodge Park can be found on the right hand side.
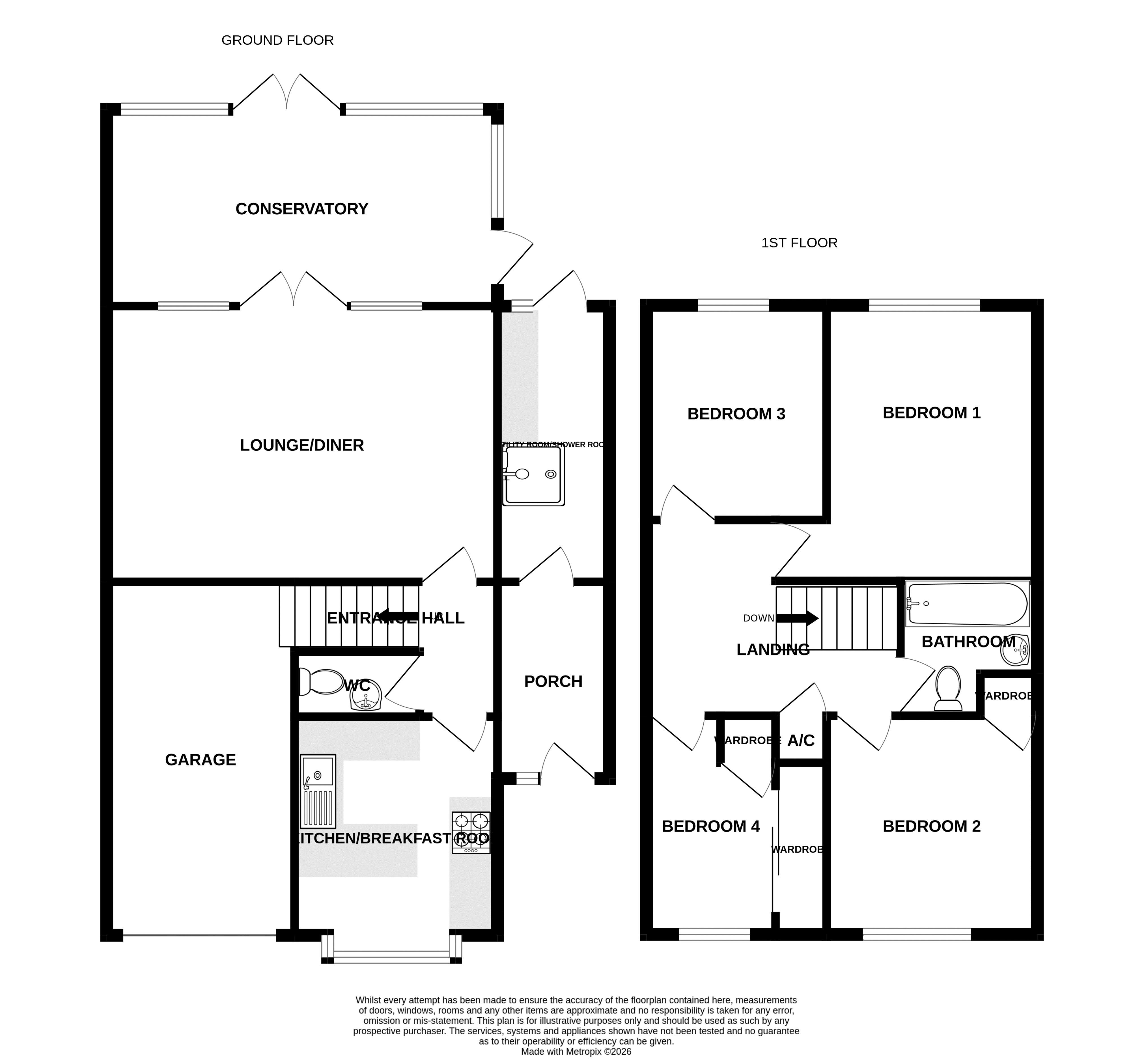
Entrance Porch
Front aspect double glazed door and picture window, doors to:
Entrance Hall
Stairs to first floor landing, coved and textured ceiling, doors to:
Shower Room/Utility Room
12' 5'' x 3' 10'' (3.78m x 1.17m)
Rear aspect double glazed picture window and door to garden, tiling to floor, shower cubicle, space for washing machine and tumble dryer.
Cloakroom/W.C
W.C, wash hand basin, tiled splash backs, coved and textured ceiling.
Kitchen
15' 1'' x 9' 3'' (4.59m x 2.82m) into bay
Front aspect double glazed bay window, range of fitted eye and base level units with worktops over, radiator, coved and textured ceiling, larder cupboard, under lights, space for fridge/freezer, fitted double oven, hob, and extractor hood, one and a half sink unit with mixer tap, tiled splash backs.
Lounge/Dining Room
18' 2'' x 13' 1'' (5.53m x 4.00m)
Rear aspect double glazed French doors and picture window, coved and textured ceiling, wall lights, two radiators, gas fire with surround and hearth.
Conservatory
16' 11'' x 5' 9'' (5.16m x 1.75m)
Side and rear aspect double glazed windows, rear aspect double glazed French doors to garden, side aspect double glazed door to garden.
First Floor Landing
Coved and textured ceiling, trap hatch to loft space, airing cupboard, doors to:
Bedroom 1
14' 0'' x 10' 4'' (4.26m x 3.15m)
Rear aspect double glazed window, coved and textured ceiling, radiator.
Bedroom 2
10' 4'' x 9' 11'' (3.14m x 3.02m)
Front aspect double glazed window, coved and textured ceiling, radiator.
Bedroom 3
11' 0'' x 7' 5'' (3.35m x 2.26m)
Rear aspect double glazed window, coved and textured ceiling, radiator.
Bedroom 4
9' 9'' x 7' 10'' (2.96m x 2.40m) into wardrobes
Front aspect double glazed box bay window, coved and textured ceiling, radiator, wardrobes.
Family Bathroom
Side aspect double glazed window, W.C, wash hand basin, shaver point, bath with mixer tap and shower attachment, radiator, coved and textured ceiling.
Outside
The front of the property has a driveway providing parking for multiple vehicles and giving access to the integral garage. The rear garden is laid to artificial lawn with scattered shrubs and plants, patio, and greenhouse.
Anti-Money Laundering (AML)
Archbold & Edwards have a legal obligation to complete anti-money laundering checks. The AML check should be completed in the branch. Please call the office to book an AML check if you would like to make an offer on this property. Please note the AML check includes us taking a copy of two forms of Identification for each purchaser. A proof of address and proof of name document is required. Please note we cannot put forward an offer without the AML check being completed.
Mortgage Advisor
We have an in-house financial advisor who can offer the following services: - Mortgages and BTL - Protection - Pensions Advice - Investments Advice - Wealth Management To organise an appointment please contact Archbold & Edwards.
Conveyancing
We offer competitive conveyancing services, with local conveyancing companies. For more information or to organise a quote please call us on 02392 257999
Compliance Note
Please be aware all measurement and floor plans used in the details are approximate and for marketing purposes only. The services, system and appliances have not been tested and no guarantee as to their operability or efficiency can be given by Archbold & Edwards Ltd.
Tenure
Any information stated about the tenure and charges for a property have been provided by the seller of the property and is subject to change. All lease information provided will be confirmed by the sellers solicitor during any conveyance.
Click to enlarge
| Name | Location | Type | Distance |
|---|---|---|---|
Request A Viewing
Farlington PO6 1AQ



