Hillside Avenue, Widley £425,000
Please enter your starting address in the form input below.
Please refresh the page if trying an alernate address.
- Three bedroom semi detached house with lfit room currently used as bedroom four
- Modern open plan living
- Driveway parking for multiple vehicles
- Double glazing and gas central heating system
- Popular Widley location
- Lounge, kitchen/breakfast room, and dining/family room
- Southerly aspect rear garden
- Viewing is a must
- EPC D
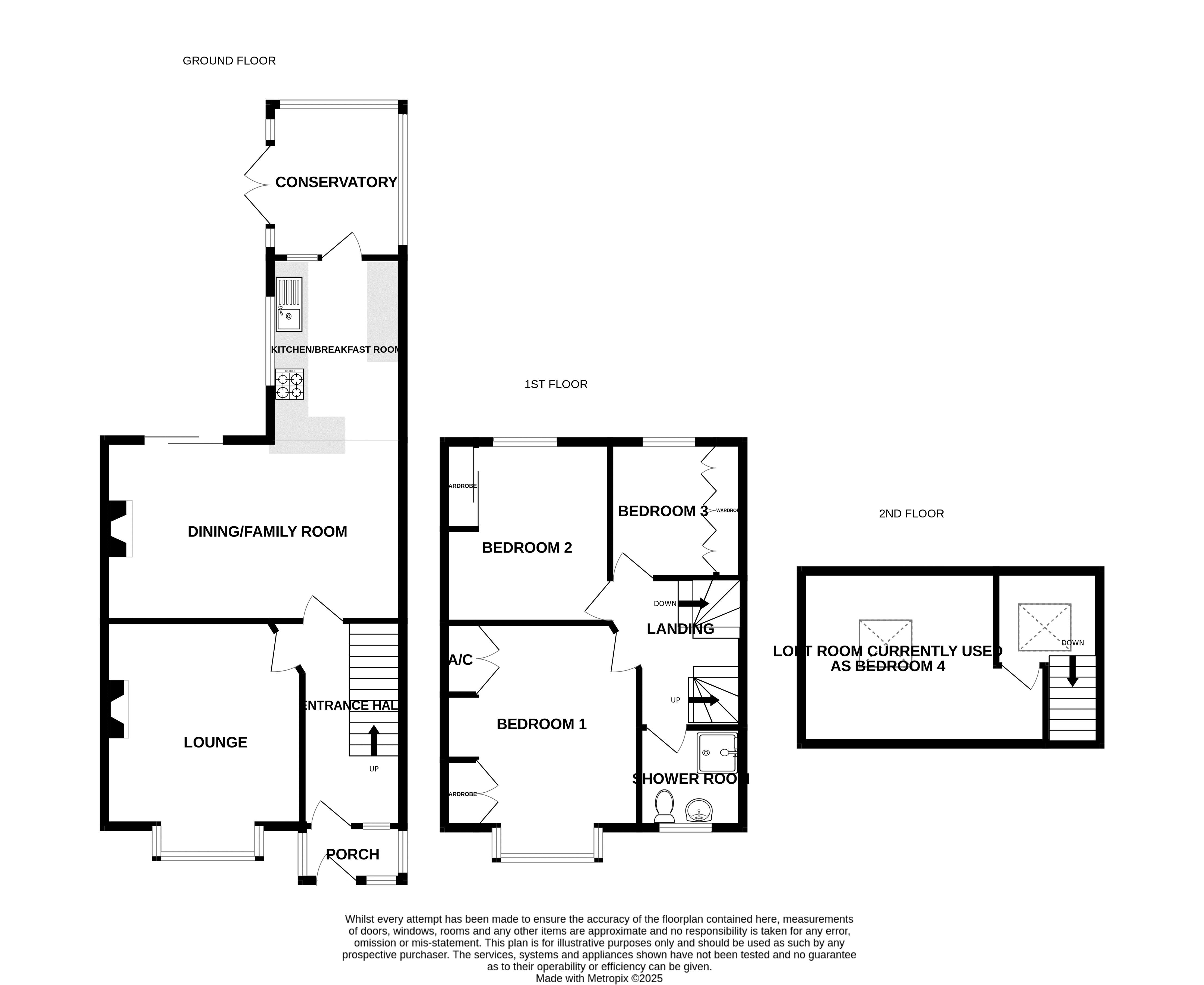
EXTENDED SEMI DETACHED HOUSE LOCATED IN POPULAR WIDLEY LOCATION. A three bedroom semi detached house with a loft room currently used as bedroom four, located in Widley near Waterlooville and Purbrook. This impressive home benefits from double glazing, gas central heating system, driveway parking for multiple vehicles, mature southerly aspect rear garden, lounge, dining/family room, kitchen/breakfast room, conservatory, first floor family shower room/W.C with under floor heating, and viewing is a must for all serious buyers. EPC D
DIrections
SAT NAV: PO7 5BB. Proceed along London Road towards Purbrook, at the roundabout take the second exit again into London Road. Hillside Avenue, can be found on the right hand side.
Entranced Porch
Front and side aspect double glazed window, radiator, smooth ceiling, tiling to floor, double glazed door to:
Entrance Hall
Front aspect double glazed window and door, stairs to first floor with storage cupboard under, coved and smooth ceiling, radiator, laminate floor, doors to:
Lounge
13' 11'' x 12' 6'' (4.24m x 3.81m)
Front aspect double glazed bay window, T.V Point, coved and smooth ceiling, radiator, wood burner with surround and hearth, laminate floor.
Dining/Family Room
18' 7'' x 12' 3'' (5.66m x 3.73m)
Rear aspect double glazed patio doors to garden, laminate floor, feature gas fire with surround and hearth, coved and smooth ceiling, radiator, open plan to:
Kitchen/Breakfast Room
11' 0'' x 8' 10'' (3.36m x 2.68m)
Rear and side aspect double glazed window, rear aspect double glazed door to conservatory, USB charging point, tiling to floor, coved and smooth ceiling, inset lights, range of fitted eye and base level units with worktops over, up stands,, AEG integral dishwasher, AEG induction hob with extractor hood over and splash, integral fridge/freezer, single sink with mixer tap, AEG double oven and warming draw.
Conservatory
11' 3'' x 9' 2'' (3.42m x 2.79m)
Rear and side aspect double glazed windows, side aspect double glazed French doors to gardens, laminate floor tiles, space for washing machine, radiator.
First Floor Landing
Coved and smooth ceiling, stairs to second floor, doors to:
Shower Room/W.C
Front aspect double glazed window, smooth ceiling, inset lights, vanity wash hand basin, mirror with shaver point, shower cubicle, W.C, heated towel rail, tiling to floor and walls, under floor heating.
Bedroom 2
12' 3'' x 10' 6'' (3.73m x 3.21m)
Rear aspect double glazed window, radiator, smooth ceiling, fitted wardrobe.
Bedroom 3
9' 2'' x 7' 6'' (2.80m x 2.28m)
Rear aspect double glazed window, radiator, fitted range of wardrobes, coved and smooth ceiling.
Bedroom 1
14' 9'' x 11' 5'' (4.49m x 3.48m)
Front aspect double glazed window, radiator, fitted wardrobe, airing cupboard with Vaillant boiler, radiator, coved and smooth ceiling.
Second Floor Landing
Rear aspect double glazed Velux window, eaves storage, door to:
Loft Room (Currently Used As Bedroom 4)
14' 1'' x 11' 6'' (4.29m x 3.50m)
Rear aspect double glazed Velux window, eaves storage, smooth ceiling.
Outside
The front of the property has a driveway providing parking for multiple vehicles and a side shared driveway providing access to the rear garden. The rear garden is of a southerly aspect and has a patio area, outside tap, scattered shrubs and trees, and a shed/store.
Anti-Money Laundering (AML)
Archbold & Edwards have a legal obligation to complete anti-money laundering checks. The AML check should be completed in the branch. Please call the office to book an AML check if you would like to make an offer on this property. Please note the AML check includes us taking a copy of two forms of Identification for each purchaser. A proof of address and proof of name document is required. Please note we cannot put forward an offer without the AML check being completed.
Mortgage Advisor
We have an in-house financial advisor who can offer the following services: - Mortgages and BTL - Protection - Pensions Advice - Investments Advice - Wealth Management To organise an appointment please contact Archbold & Edwards.
Conveyancing
We offer competitive conveyancing services, with local conveyancing companies. For more information or to organise a quote please call us on 02392 257999
Compliance Note
Please be aware all measurement and floor plans used in the details are approximate and for marketing purposes only. The services, system and appliances have not been tested and no guarantee as to their operability or efficiency can be given by Archbold & Edwards Ltd.
Tenure
Any information stated about the tenure and charges for a property have been provided by the seller of the property and is subject to change. All lease information provided will be confirmed by the sellers solicitor during any conveyance.
Click to enlarge
| Name | Location | Type | Distance |
|---|---|---|---|
Request A Viewing
Widley PO7 5BB



