Kennedy Close, Purbrook £300,000
Please enter your starting address in the form input below.
Please refresh the page if trying an alernate address.
- Three bedroom terrace house
- Double glazing and gas central heating system
- Garage and driveway parking
- Requested Purbrook location
- Lounge/dining room
- Conservatory with utility end
- Viewing is a must
- EPC D
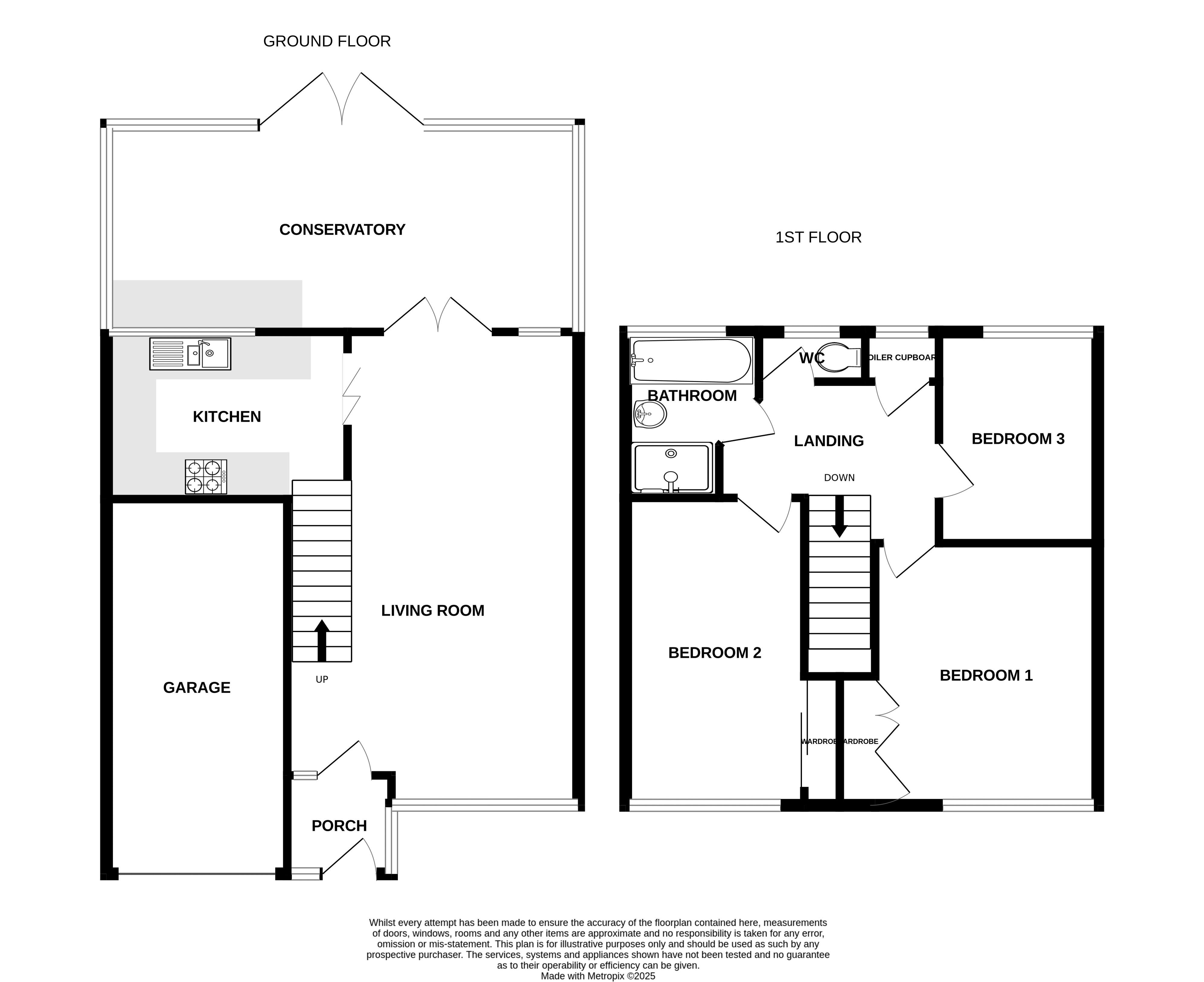
THREE BEDROOM TERRACE HOUSE IN PURBROOK CUL-DE-SAC LOCATION. A three bedroom middle terrace house located in Purbrook, near WIdley and Waterlooville. This property benefits from double glazing, gas central heating system, garage and driveway parking, rear garden, lounge/dining room, kitchen, conservatory with utility end, first floor bathroom with separate shower cubicle, separate W.C, and viewing is a must for all serious buyers. EPC D
Directions
SAT NAV: PO7 5NY. Proceed along London Road towards Purbrook, at the roundabout take the first exit into Ladybridge Road. Continue into Stakes Road and then turn left into Jacqueline Avenue. Turn right into Kennedy Close.
Entrance Porch
Front and side aspect double glazed windows, front aspect double glazed door, textured ceiling, door to:
Lounge/Dining Room
21' 7'' x 13' 7'' (6.57m x 4.15m)
Front aspect double glazed window, rear aspect double glazed window and French doors to conservatory, stairs to first floor, T.V point, textured ceiling, gas fire with surround and hearth, two radiators, door to:
Kitchen
11' 2'' x 7' 10'' (3.40m x 2.38m)
Rear aspect double glazed window, range of fitted eye and base level units with worktops over, tiled splashbacks, one and a half sink unit with mixer tap, under stairs storage, space for dishwasher, fitted oven, hob, and extractor hood over.
Conservatory
21' 4'' x 9' 8'' (6.50m x 2.95m)
Rear and side aspect double glazed windows, radiator, space for washing machine and tumble dryer with work tops over.
First Floor Landing
Textured ceiling, airing cupboard, trap hatch to loft space, doors to:
Bedroom 1
12' 4'' x 10' 4'' (3.75m x 3.15m)
Front aspect double glazed window, radiator, coved and textured ceiling.
Bedroom 2
12' 8'' x 8' 0'' (3.85m x 2.44m)
Front aspect double glazed window, radiator, fitted wardrobes, textured ceiling.
Bedroom 3
9' 4'' x 7' 5'' (2.84m x 2.25m)
Rear aspect double glazed window, radiator, laminate floor, coved and textured ceiling.
Family Bathroom
Rear aspect double glazed windows, shower cubicle, vanity wash hand basin, bath with telephone style mixer tap and shower attachment, heated towel rail, tiling to walls, extractor, textured ceiling.
W.C
Rear aspect double glazed window, W.C, Worcester boiler, textured ceiling, tiling to walls.
Outside
The front of the property had a driveway giving access to the integral garage. The rear garden is laid to decking with two sheds.
Anti-Money Laundering (AML)
Archbold & Edwards have a legal obligation to complete anti-money laundering checks. The AML check should be completed in the branch. Please call the office to book an AML check if you would like to make an offer on this property. Please note the AML check includes us taking a copy of two forms of Identification for each purchaser. A proof of address and proof of name document is required. Please note we cannot put forward an offer without the AML check being completed.
Mortgage Advisor
We have an in-house financial advisor who can offer the following services: - Mortgages and BTL - Protection - Pensions Advice - Investments Advice - Wealth Management To organise an appointment please contact Archbold & Edwards.
Conveyancing
We offer competitive conveyancing services, with local conveyancing companies. For more information or to organise a quote please call us on 02392 257999
Compliance Note
Please be aware all measurement and floor plans used in the details are approximate and for marketing purposes only. The services, system and appliances have not been tested and no guarantee as to their operability or efficiency can be given by Archbold & Edwards Ltd.
Tenure
Any information stated about the tenure and charges for a property have been provided by the seller of the property and is subject to change. All lease information provided will be confirmed by the sellers solicitor during any conveyance.
Click to enlarge
| Name | Location | Type | Distance |
|---|---|---|---|
Request A Viewing
Purbrook PO7 5NY



