Cyprus Road, Portsmouth £220,000
Please enter your starting address in the form input below.
Please refresh the page if trying an alernate address.
- Three bedroom middle terrace house
- Offered with no chain ahead
- Double glazing and gas central heating system
- Lounge/dining room
- An ideal first time or investment purchase
- Ground floor bathroom
- Rear Garden
- Viewing is a must
- EPC C
AN IDEAL OR INVESTMENT PURCHASE OFFERED WITH NO CHAIN AHEAD. A three bedroom middle terrace house located in Portsmouth. This property benefits from double glazing, gas central heatign system, lounge/dining room, kitchen, bathroom, three bedrooms, and rear garden. Viewing is a must for all serious buyers. EPC C
Directions
SAT NAV: PO2 7QA. From Kingston Road proceed towards Fratton. Turn left into New Road, then left again into Lynn Road. Cyprus Road can be found on the left hand side.
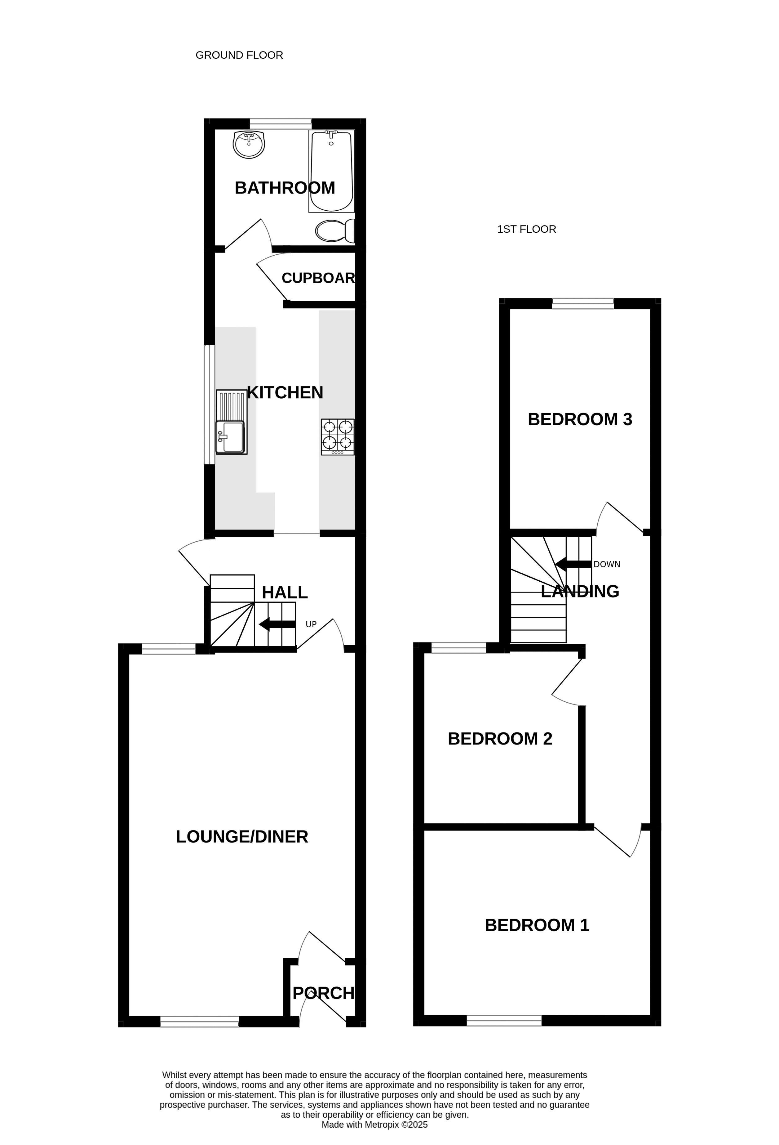
Entrance Hall
Front aspect double glazed door and window, door to:
Lounge/Dining Room
22' 8'' x 12' 1'' (6.90m x 3.68m)
Front and rear aspect double glazed windows, two radiators, telephone point and T.V point, wall lights, coved and smooth ceiling, door to:
Inner Hall
Stairs to first floor, double glazed door to garden, door to:
Kitchen
10' 3'' x 7' 5'' (3.12m x 2.26m)
Side aspect double glazed window, fitted range of eye and base level units with worktops over, sink and drainer with mixer tap, tiled splash backs, fitted oven, gas hob with extractor hood over, space for washing machine, integral fridge/freezer, boiler, coved and smooth ceiling, open to storage cupboard and bathroom,
Family Bathroom
Rear and side aspect double glazed window, radiator, bath with mixer taps with shower over, wash hand basin, extractor fan, W.C, tiled splash backs, smooth ceiling.
First Floor Landing
Side aspect double glazed window, doors to:
Bedroom 1
12' 1'' x 11' 2'' (3.68m x 3.40m)
Front aspect double glazed window, radiator, telephone and T.V point, coved and smooth ceiling.
Bedroom 2
11' 7'' x 9' 2'' (3.53m x 2.79m)
Rear aspect double glazed window, radiator, coved and smooth ceiling, trap hatch to loft hatch.
Bedroom 3
10' 11'' x 7' 4'' (3.32m x 2.23m)
Rear aspect double glazed window, coved and smooth ceiling, radiator.
Outside
The rear garden is laid to decking.
Anti-Money Laundering (AML)
Archbold & Edwards have a legal obligation to complete anti-money laundering checks. The AML check should be completed in the branch. Please call the office to book an AML check if you would like to make an offer on this property. Please note the AML check includes us taking a copy of two forms of Identification for each purchaser. A proof of address and proof of name document is required. Please note we cannot put forward an offer without the AML check being completed.
Mortgage Advisor
We have an in-house financial advisor who can offer the following services: - Mortgages and BTL - Protection - Pensions Advice - Investments Advice - Wealth Management To organise an appointment please contact Archbold & Edwards.
Conveyancing
We offer competitive conveyancing services, with local conveyancing companies. For more information or to organise a quote please call us on 02392 257999
Compliance Note
Please be aware all measurement and floor plans used in the details are approximate and for marketing purposes only. The services, system and appliances have not been tested and no guarantee as to their operability or efficiency can be given by Archbold & Edwards Ltd.
Tenure
Any information stated about the tenure and charges for a property have been provided by the seller of the property and is subject to change. All lease information provided will be confirmed by the sellers solicitor during any conveyance.
Click to enlarge
| Name | Location | Type | Distance |
|---|---|---|---|
Portsmouth PO2 7QA




