Summerhill Road, Waterlooville £245,000
Please enter your starting address in the form input below.
Please refresh the page if trying an alernate address.
- Building plot
- Permission for four bedroom detached house
- SIP build
- Non-estate location
- Modern open plan living
- Call for more details
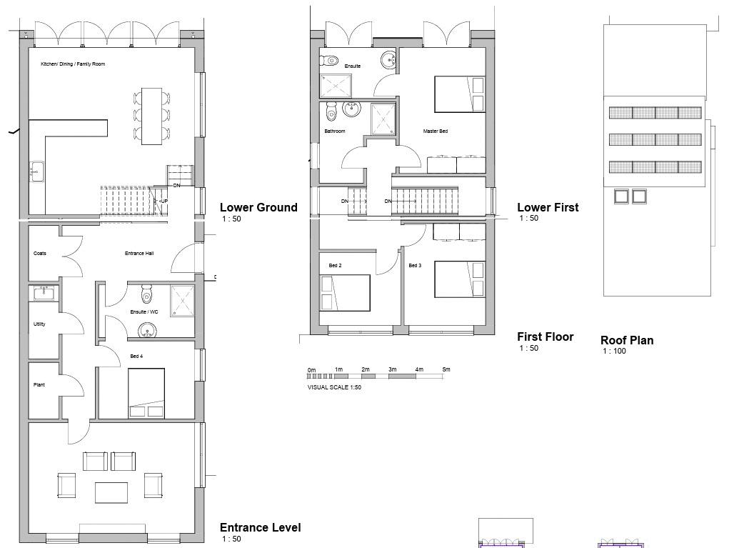
BUILDING PLOT IN POPULAR WATERLOOVILL NON-ESTATE LOCATION FOR A SIP BUILD PROPERTY. Planning permission granted for a four bedroom detached home with two bathrooms located in Waterlooville. This would be an ideal project for anyone looking to build something a little special. Offering flexible modern open plan living on a split level residential unit. Call for more details.
Directions
SAT NAV: PO8 8XE. Proceed along London Road towards Cowplain, passing the shops on the left hand side. After the traffic lights turn left into Summerhill Road.
Planning Portal
https://planningpublicaccess.havant.gov.uk/online-applications/applicationDetails.do?activeTab=documents&keyVal=DCAPR_259254
Anti-Money Laundering (AML)
Archbold & Edwards have a legal obligation to complete anti-money laundering checks. The AML check should be completed in the branch. Please call the office to book an AML check if you would like to make an offer on this property. Please note the AML check includes us taking a copy of two forms of Identification for each purchaser. A proof of address and proof of name document is required. Please note we cannot put forward an offer without the AML check being completed.
Mortgage Advisor
We have an in-house financial advisor who can offer the following services: - Mortgages and BTL - Protection - Pensions Advice - Investments Advice - Wealth Management To organise an appointment please contact Archbold & Edwards.
Conveyancing
We offer competitive conveyancing services, with local conveyancing companies. For more information or to organise a quote please call us on 02392 257999
Compliance Note
Please be aware all measurement and floor plans used in the details are approximate and for marketing purposes only. The services, system and appliances have not been tested and no guarantee as to their operability or efficiency can be given by Archbold & Edwards Ltd.
Tenure
Any information stated about the tenure and charges for a property have been provided by the seller of the property and is subject to change. All lease information provided will be confirmed by the sellers solicitor during any conveyance.
Click to enlarge
| Name | Location | Type | Distance |
|---|---|---|---|
Request A Viewing
Waterlooville PO8 8XE



