Havant Road, Emsworth £650,000
Please enter your starting address in the form input below.
Please refresh the page if trying an alernate address.
- Detached bungalow located in Emsworth
- Offered with no chain ahead
- In need of update
- Extra large garden
- Driveway parking for multiple vehicles
- Three bedrooms, two reception rooms, two bathroom
- Double glazing and glazing and gas central heating system
- Viewing is a must
- EPC D
DETACHED BUNGALOW OFFERED WITH NO CHAIN AHEAD IN NEED OF UPDATING WITH EXTRA LARGE GARDEN. A three bedroom detached bungalow located in a non estate location of Emsworth, Near Chichester and Havant. This property benefits from double glazing, gas central heating system, driveway parking for multiple vehicles, large mature gardens, lounge and dining room, kitchen/family room, family bathroom, first floor shower room/W.C, and viewing is a must for all serious buyers. EPC D
Directions
SAT NAV: PO10 7LE. From Emsworth center proceed along Havant Road towards Havant. The property can be found on the right hand side.
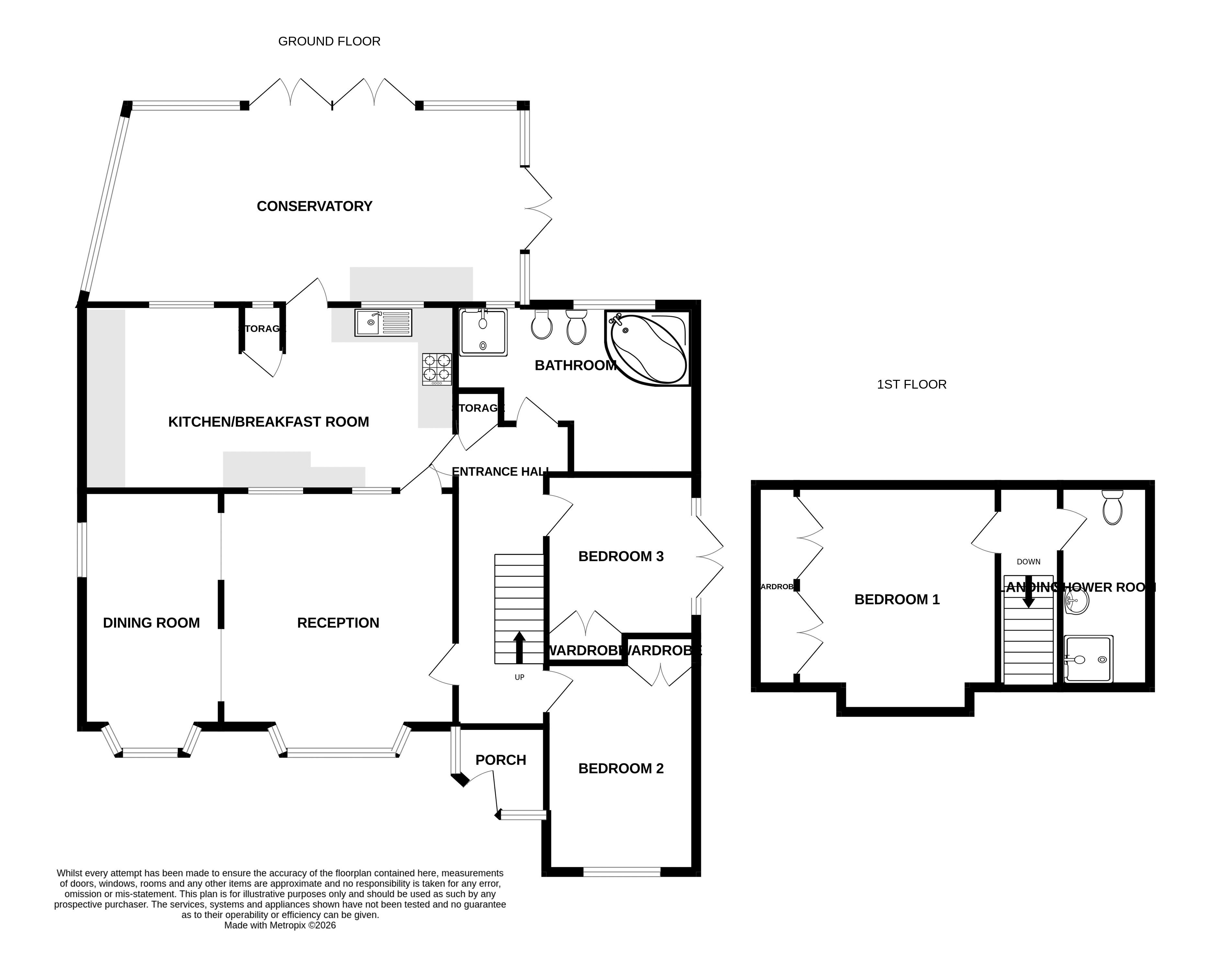
Entrance Porch
Front aspect double glazed door and picture windows, door to:
Entrance Hall
Stairs to first floor, dado rail, radiator, textured ceiling, airing cupboard, doors to:
Bedroom 2
11' 1'' x 10' 11'' (3.37m x 3.33m)
Front aspect double glazed window, radiator, textured ceiling, fitted wardrobes.
Lounge
17' 6'' x 12' 11'' (5.33m x 3.93m) into bay
Front aspect double glazed bay window, radiator, gas fire with surround and hearth, textured ceiling, door to kitchen/breakfast room, open to:
Dining Room
17' 3'' x 9' 9'' (5.26m x 2.98m) into bay
Front aspect double glazed bay window, side aspect double glazed window, trap hatch to loft space, radiator, smooth ceiling.
Bedroom 3
11' 1'' x 11' 0'' (3.37m x 3.36m)
Side aspect double glazed picture windows and French doors to side driveway, fitted wardrobe, radiator, textured ceiling.
Family Bathroom
17' 10'' x 10' 10'' (5.43m x 3.31m)
Two rear aspect double glazed window, W.C, bidet, shower cubicle, corner bath with telephone style mixer tap and shower attachment, coved and smooth ceiling, tiling to floors and walls, radiator, extractor.
Kitchen/Breakfast Room
22' 1'' x 11' 11'' (6.72m x 3.63m)
Rear aspect double glazed windows and door to conservatory, range of fitted eye and base level units with worktops over, tiled splash backs, space for range style cooker, tiling to floor, tiled splash backs, integral fridge/freezer, cupboard housing boiler, one anda half sink unit with mixer tap.
Conservatory
28' 9'' x 10' 2'' (8.77m x 3.09m)
Rear and side aspect double glazed windows, side and rear aspect double glazed French doors to garden, space for washing machine and tumble dryer with worktops over, wall lights, heated towel rail, Butler style sink with mixer tap.
First Floor Landing
Doors to eaves, coved and textured ceiling, doors to:
Shower Room/W.C
Shower cubicle, W.C, wash hand basin, tiling to walls, extractor, inset lights.
Bedroom 1
16' 0'' x 13' 4'' (4.88m x 4.06m) into wardrobes
Front aspect double glazed window, radiator, fitted wardrobes eaves access, wall lights.
Outside
The front of the property has a driveway which provides parking for multiple vehicles. There is side pedestrian access to the rear garden, The rear garden has a patio, scattered trees shrubs and plants, various greenhouse's, summer house, and greenhouse.
Anti-Money Laundering (AML)
Archbold & Edwards have a legal obligation to complete anti-money laundering checks. The AML check should be completed in the branch. Please call the office to book an AML check if you would like to make an offer on this property. Please note the AML check includes us taking a copy of two forms of Identification for each purchaser. A proof of address and proof of name document is required. Please note we cannot put forward an offer without the AML check being completed.
Mortgage Advisor
We have an in-house financial advisor who can offer the following services: - Mortgages and BTL - Protection - Pensions Advice - Investments Advice - Wealth Management To organise an appointment please contact Archbold & Edwards.
Conveyancing
We offer competitive conveyancing services, with local conveyancing companies. For more information or to organise a quote please call us on 02392 257999
Compliance Note
Please be aware all measurement and floor plans used in the details are approximate and for marketing purposes only. The services, system and appliances have not been tested and no guarantee as to their operability or efficiency can be given by Archbold & Edwards Ltd.
Tenure
Any information stated about the tenure and charges for a property have been provided by the seller of the property and is subject to change. All lease information provided will be confirmed by the sellers solicitor during any conveyance.
Click to enlarge
| Name | Location | Type | Distance |
|---|---|---|---|
Request A Viewing
Emsworth PO10 7LE



