Chaplains Avenue, Cowplain £499,995
Please enter your starting address in the form input below.
Please refresh the page if trying an alernate address.
- Four bedroom detached house
- Offering flexible accommodation
- Double glazing and gas central heating system
- Driveway parking for multiple vehicles
- large southerly aspect rear garden
- Four reception rooms
- Requested Cowplain location
- En-suite to bedroom one
- Viewing is a must
- EPC D
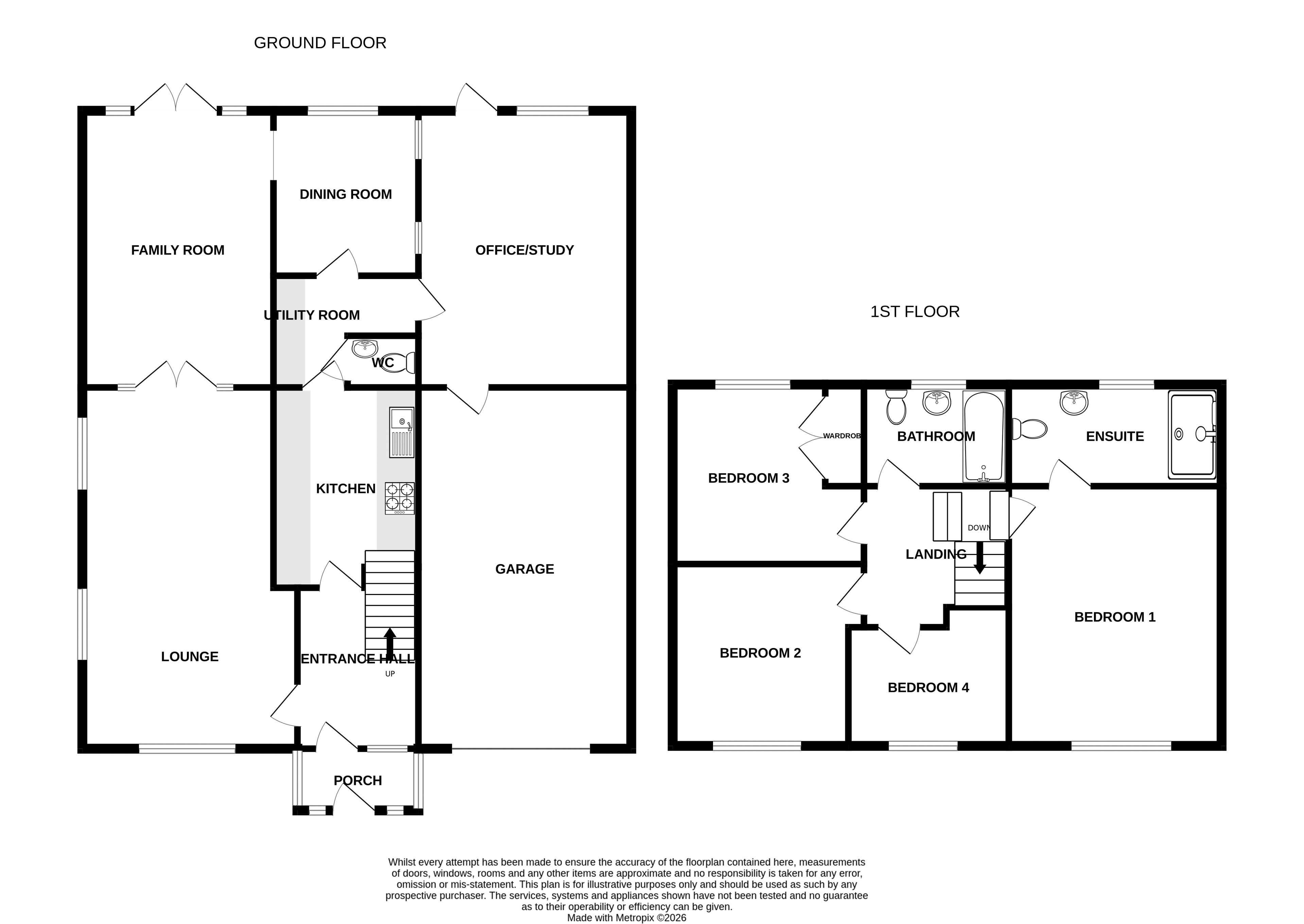
FOUR BEDROOMS......FOUR RECEPTIONS ROOMS......EN-SUITE......LARGE SOUTHERLY ASPECT GARDEN. A four bedroom detached house offering flexible accommodation located in Cowplain, near Waterlooville and Denmead. This property benefits from double glazing, gas central heating system, 7.8m x 3.6m garage, large rear garden, lounge, family room, dining room, kitchen, utility room, office/study, cloakroom/W.C, family bathroom, bedroom one with en-suite, driveway parking for multiple vehicles, and viewing is a must for all serious buyers. EPC D
Directions
SAT NAV: PO8 8QH. Proceed along Hambledon Road towards Denmead, at the roundabout take the third exit into Milton Road. Turn left into Hart Plain Avenue, and then left again into Chaplains Avenue.
Entrance Porch
Front aspect double glazed window and door, side aspect double glazed window, tiling to floor, smooth ceiling, doors to:
Entrance Hall
Front aspect double glazed picture window and door, stairs to first floor, radiator, texture ceiling, laminate floor, doors to:
Lounge
22' 0'' x 12' 4'' (6.70m x 3.77m)
Front aspect double glazed window, two side aspect double glazed windows, T.V point, two radiators, feature open fireplace with surround and hearth, rear aspect double glazed window and French doors to family room.
Kitchen
12' 2'' x 9' 4'' (3.70m x 2.85m)
Range of fitted eye and base level units with worktops over, tiled splash backs, textured ceiling, fitted oven, hob, and extractor hood, one and a half sink unit with mixer tap, space for dishwasher, door to:
Utility Room
5' 10'' x 5' 2'' (1.78m x 1.58m) minimum
Space for American style fridge/freezer, fitted kitchen units and work tops, space for washing machine, doors to:
Cloakroom/W.C
W.C, wash hand basin, tiled splash backs, textured ceiling.
Office/Study
14' 0'' x 11' 10'' (4.27m x 3.61m)
Rear aspect double glazed window and door to garden, two side aspect double glazed windows, courtesy door to garage, laminate floor, radiator, textured ceiling.
Dining Room
11' 0'' x 9' 10'' (3.35m x 3.00m)
Rear aspect double glazed window, radiator, USB charging point, textured ceiling, open to:
Family Room
18' 2'' x 9' 0'' (5.53m x 2.75m)
Rear aspect double glazed window and French doors to garden, radiator, smooth ceiling.
First Floor Landing
Trap hatch to loft space, textured ceiling, doors to:
Bedroom 1
15' 10'' x 12' 5'' (4.83m x 3.78m)
Front aspect double glazed window, radiator, textured ceiling, door to:
En-Suite
Rear aspect double glazed window, wash hand basin, W.C, shower cubicle, heated towel rail, textured ceiling, extractor, tiled splash backs.
Bedroom 2
11' 9'' x 10' 10'' (3.58m x 3.30m)
Front aspect double glazed window, radiator, textured ceiling.
Bedroom 3
13' 7'' x 10' 0'' (4.15m x 3.06m)
Rear aspect double glazed window, radiator, textured ceiling, fitted wardrobes.
Bedroom 4
8' 4'' x 8' 4'' (2.55m x 2.53m)
Front aspect double glazed window, radiator, textured ceiling.
Family Bathroom
Rear aspect double glazed window, radiator, W.C, wash hand basin, bath with shower over, tiled splash backs, textured ceiling.
Outside
The front of the property has an area of driveway parking for multiple vehicles and also provides access to the integral garage. The rear garden is of a southerly aspect and is mainly laid to lawn with a patio and outside tap.
Garage
25' 7'' x 11' 11'' (7.80m x 3.64m)
Electric roller door, power, light, wall mounted boiler.
Anti-Money Laundering (AML)
Archbold & Edwards have a legal obligation to complete anti-money laundering checks. The AML check should be completed in the branch. Please call the office to book an AML check if you would like to make an offer on this property. Please note the AML check includes us taking a copy of two forms of Identification for each purchaser. A proof of address and proof of name document is required. Please note we cannot put forward an offer without the AML check being completed.
Mortgage Advisor
We have an in-house financial advisor who can offer the following services: - Mortgages and BTL - Protection - Pensions Advice - Investments Advice - Wealth Management To organise an appointment please contact Archbold & Edwards.
Conveyancing
We offer competitive conveyancing services, with local conveyancing companies. For more information or to organise a quote please call us on 02392 257999
Compliance Note
Please be aware all measurement and floor plans used in the details are approximate and for marketing purposes only. The services, system and appliances have not been tested and no guarantee as to their operability or efficiency can be given by Archbold & Edwards Ltd.
Tenure
Any information stated about the tenure and charges for a property have been provided by the seller of the property and is subject to change. All lease information provided will be confirmed by the sellers solicitor during any conveyance.
Click to enlarge
| Name | Location | Type | Distance |
|---|---|---|---|
Request A Viewing
Cowplain PO8 8QH



