Hazleton Way Cowplain, Waterlooville £550,000
Please enter your starting address in the form input below.
Please refresh the page if trying an alernate address.
- Four bedroom semi detached house
- Lounge with log burner
- L shaped family/dining room
- Kitchen/breakfast room
- Parking for multiple cars
- En suite bathroom to bedroom one
- 35ft Bar/cabin with separate gym/office area
- Gas central heating
- EPC rating D
- Viewing a must
- South facing rear gardens
VIEWING IS A MUST! AN EXTENDED FOUR BEDROOM SEMI DETACHED HOUSE SITUATED ON THE SOUGHT AFTER HAZLETON ESTATE WITH A 35FT CABIN/BAR. The property benefits from an en-suite bathroom to the master bedroom, modern fitted kitchen/breakfast room with built in appliances, large L shaped family/dining room and a separate living room with log burner. The driveway provides parking to the front for multiple cars.
Directions
SAT NAV: PO8 9DR. Proceed along London Road towards Cowplain, at the shops turn right into Padnell Road. Hazleton Way can be found on the left hand side.
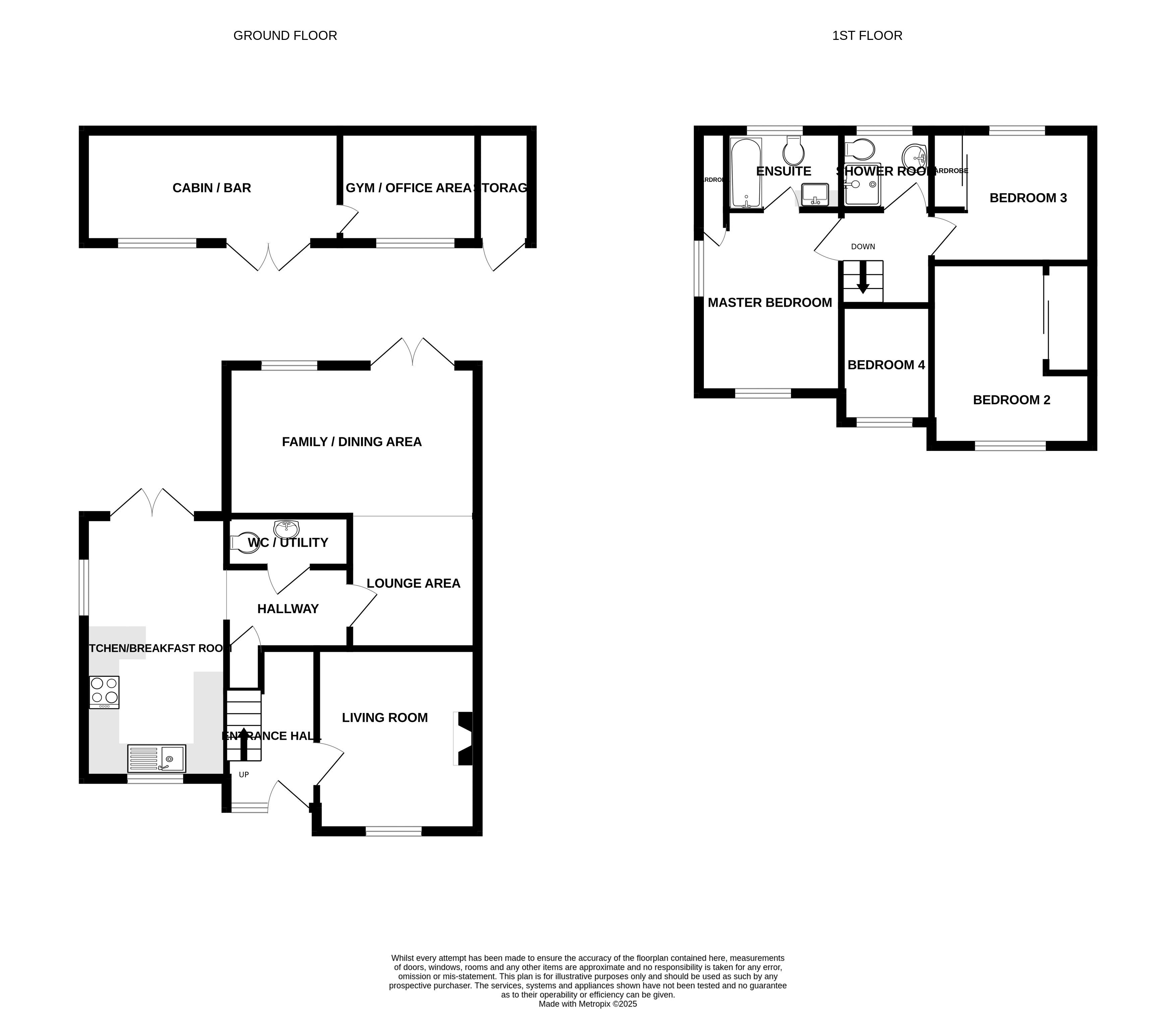
Entrance Hall
Double glazed front door, understairs storage, radiator, wood flooring, stairs to first floor.
Lounge
13' 8'' x 11' 9'' (4.166m x 3.59m)
Front aspect double glazed window, log burner, radiator.
Inner Hallway
Understairs storage cupboard, second storage cupboard with plumbing for washing machine, wood flooring.
Cloakroom
Suite comprising vanity wash hand basin with cupboard under, WC, space and plumbing for washing machine, chrome towel rail, extractor.
L Shaped Family Room (dining area)
17' 11'' x 10' 6'' (5.46m x 3.19m)
Rear aspect double glazed window overlooking garden, radiator, double glazed french doors to garden.
L Shaped Family/Dining Room (lounge area)
9' 9'' x 8' 9'' (2.96m x 2.67m)
Radiator, TV point, opening to dining area.
Kitchen/Breakfast Room
20' 3'' x 11' 10'' (6.17m x 3.611m)
Fitted with a range of modern wall and floor units, work surfaces with matching upstand, induction hob, extractor, build in double oven, built in dishwasher, space for fridge/freezer, breakfast bar, built in storage cupboard, radiator, TV point, front and side double glazed windows, double glazed french doors to rear garden.
First Floor Landing
Access to loft space.
Master bedroom
15' 0'' x 12' 4'' (4.57m x 3.77m)
Front and side aspect double glazed windows, walk in wardrobe, radiator, door to en suite bathroom.
En-suite bathroom
Suite comprising panelled bath with shower over, glass shower screen, double ceramic vanity wash hand basin with storage drawers under, tiled walls, built in storage cupboard with shelving, WC, chrome towel rail, access to loft space with pull down ladder, extractor, rear aspect double glazed window.
Bedroom 2
13' 3'' x 11' 8'' (4.05m x 3.55m)
Front aspect double glazed window, range of sliding door fitted wardrobe units, radiator.
Bedroom 3
11' 6'' x 9' 10'' (3.50m x 2.99m)
Rear aspect double glazed window, range of fitted sliding door wardrobe units, radiator.
Bedroom 4
8' 10'' x 6' 6'' (2.68m x 1.98m)
Front aspect double glazed window, cupboard housing gas boiler, radiator.
Shower Room
Shower cubicle with rainfall shower, wash hand basin with storage cupboard under, chrome towel rail, WC, extractor, rear aspect double glazed window.
Outside
The block paved driveway provides off road parking for several cars. Side pedestrian access leads the rear garden, a store cupboard can be found to the side of the property. The rear garden is south facing laid to lawn with a decked and patio area, electrical vehicle charger. The cabin/bar can be found to the rear of the garden.
Cabin/Bar (Bar area)
22' 10'' x 13' 0'' (6.951m x 3.950m)
Double glazed window and french doors to garden, fitted bar, power and light.
Cabin/bar (Office/gym area)
13' 0'' x 8' 2'' (3.96m x 2.48m)
Double glazed window, power and light. A further shed/storage area can be found to the right cabin which also has power and light.
Click to enlarge
| Name | Location | Type | Distance |
|---|---|---|---|
Request A Viewing
Waterlooville PO8 9DR



