Kingscote Road, Cowplain £375,000
Please enter your starting address in the form input below.
Please refresh the page if trying an alernate address.
- Four bedroom semi detached house
- Double glazing and gas central heating system
- Offered with no chain ahead
- Driveway parking for multiple vehicles
- Located in popular Cowplain location
- Mature garden
- Cloakroom/W.C
- Viewing is a must
- EPC E
FOUR BEDROOM HOME OFFERED WITH NO CHAIN AHEAD. A four bedroom semi detached house located in Cowplain, near Waterlooville and Lovedean. This property benefits from double glazing, gas central heating system, mature garden, driveway parking for multiple vehicles, cloakroom/W.C, conservatory, kitchen, lounge, bedroom 4/dining room, first floor wet room/W.C, and viewing is a must for all serious buyers. EPC E
Directions
SAT NAV: PO8 8QB .Proceed along Hambledon Road towards Denmead, the roundabout take the third exit into Milton Road. Turn left into Hart Plain Avenue, then left into Sutton Road. Kingscote Road can be found on the right hand side.
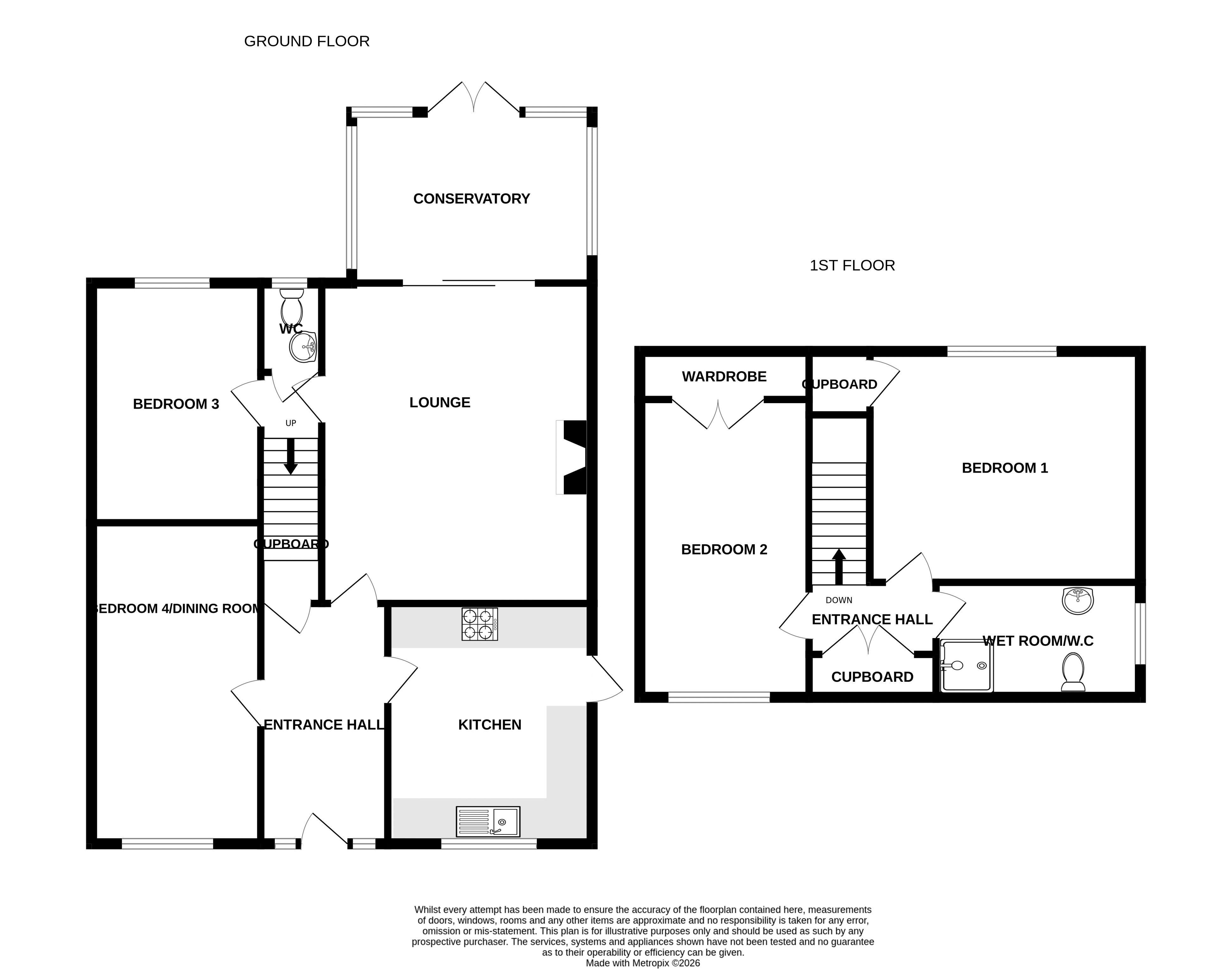
Entrance Hall
Front aspect double glazed window and door, under stairs storage cupboard, laminate floor, coved and textured ceiling, radiator, doors to:
Kitchen
12' 1'' x 10' 5'' (3.68m x 3.17m)
Front aspect double glazed window, range of fitted eye and base level units with worktops over, fitted oven, hob, and extractor hood over, under lights, coved and smooth ceiling, single sink with mixer tap, space for washing machine and fridge/freezer, tiled splash backs.
Bedroom 4/Dining Room
16' 3'' x 7' 6'' (4.96m x 2.28m)
Front aspect double glazed window, radiator, smooth ceiling, inset lights.
Lounge
16' 7'' x 12' 0'' (5.06m x 3.66m)
Rear aspect double glazed patio doors to conservatory, door to inner hall, two radiators, T.V point, feature fire place with mantle, textured ceiling.
Conservatory
12' 3'' x 7' 6'' (3.74m x 2.29m)
Rear and side aspect double glazed windows, glass roof, laminate floor, rear aspect double glazed french doors to garden.
Inner Hall
Stairs to first floor, textured ceiling, doors to:
Cloakroom/W.C
Rear aspect double glazed window, W.C, wash hand basin, textured ceiling, tiled splash backs.
Bedroom 3
11' 3'' x 7' 11'' (3.42m x 2.41m)
Rear aspect double glazed window, radiator, textured ceiling.
First Floor landing
Textured ceiling, airing cupboard, doors to:
Bedroom 1
13' 7'' x 12' 2'' (4.15m x 3.71m)
Rear aspect double glazed window, fitted wardrobe, textured ceiling, radiator.
Bedroom 2
18' 2'' x 8' 1'' (5.54m x 2.46m)
Front aspect double glazed window, radiator, smooth ceiling, trap hatch to loft space.
Wet Room/W.C
Side aspect double glazed window, W.C, heated towel rail, wash hand basin, tiling to walls, textured ceiling, Triton shower.
Outside
The front of the property has an area of driveway which provides parking for multiple vehicles. There is side pedestrian access to the rear garden. The rear garden is mainly laid to formal lawn with a decking area and scattered shrubs and plants.
Anti-Money Laundering (AML)
Archbold & Edwards have a legal obligation to complete anti-money laundering checks. The AML check should be completed in the branch. Please call the office to book an AML check if you would like to make an offer on this property. Please note the AML check includes us taking a copy of two forms of Identification for each purchaser. A proof of address and proof of name document is required. Please note we cannot put forward an offer without the AML check being completed.
Mortgage Advisor
We have an in-house financial advisor who can offer the following services: - Mortgages and BTL - Protection - Pensions Advice - Investments Advice - Wealth Management To organise an appointment please contact Archbold & Edwards.
Conveyancing
We offer competitive conveyancing services, with local conveyancing companies. For more information or to organise a quote please call us on 02392 257999
Compliance Note
Please be aware all measurement and floor plans used in the details are approximate and for marketing purposes only. The services, system and appliances have not been tested and no guarantee as to their operability or efficiency can be given by Archbold & Edwards Ltd.
Tenure
Any information stated about the tenure and charges for a property have been provided by the seller of the property and is subject to change. All lease information provided will be confirmed by the sellers solicitor during any conveyance.
Click to enlarge
| Name | Location | Type | Distance |
|---|---|---|---|
Request A Viewing
Cowplain PO8 8QB



