Stakes Hill Road, Waterlooville £625,000
Please enter your starting address in the form input below.
Please refresh the page if trying an alernate address.
- Older style four bedroom detached home
- Modern open plan living
- Tandem garage and driveway parking
- Mature southerly aspect rear garden
- Modern open plan kitchen/dining room with walk in pantry and utility room
- Luxury fitted family bathroom
- Viewing is a must
- EPC D
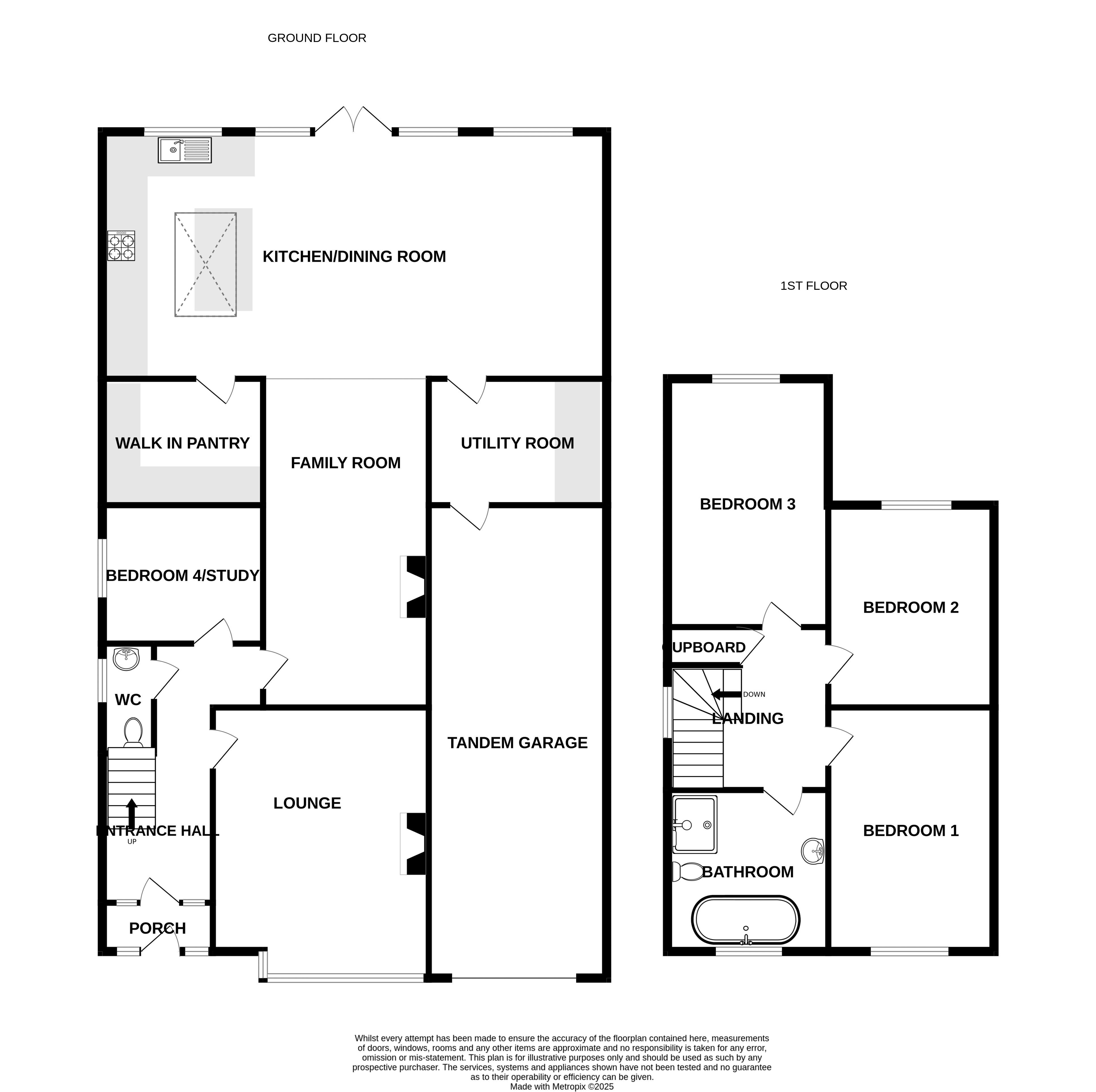
AN OLDER STYLE HOME WITH A MODERN TWIST LOCATED WITHIN WALKING DISTANCE OF LOCAL SCHOOLS AND TOWN CENTRE. A four bedroom detached older style home located in Central Waterlooville. This property benefits from double glazing, gas central heating system, driveway parking for multiple vehicles and TANDEM GARAGE, mature southerly aspect rear garden, lounge with wood burner, bedroom 4/study, cloakroom/W.C, family room, modern open plan kitchen/dining room, walk in pantry, utility room, first floor family bathroom, and viewing is a must to appreciate this truly special home.
Directions
SAT NAV: PO7 7LB. From Waterlooville proceed along Stakes Hill Road towards Oaklands School, and the property can be found on the right hand side.
Entrance Porch
Front aspect door with feature stained glass, front aspect windows, smooth ceiling, feature period door to:
Entrance Hall
Front aspect door and windows, radiator, stairs to first floor with storage cupboard under, picture rail, smooth plastered ceiling, herring bone tiled flooring, doors to:
Cloakroom/W.C
Side aspect double glazed window, W.C, wash hand basin, brick style tiled splash backs, smooth plastered ceiling.
Lounge
13' 6'' x 11' 4'' (4.12m x 3.46m)
Front aspect double glazed splay bay window, T.V point, inset wood burner with hearth and mantle, picture rail, smooth plastered ceilign, radiator, two fitted dresser type units.
Bedroom 4/Study
8' 11'' x 7' 5'' (2.73m x 2.26m)
Side aspect double glazed window, radiator, coved and smooth plastered ceiling, inset lights.
Family Room
21' 4'' x 10' 11'' (6.50m x 3.32m)
Sky light, radiator, inset wood burner with hearth, picture rail, smooth plastered ceiling, insert lights, open to:
Kitchen/Dining Room
28' 1'' x 15' 3'' (8.55m x 4.64m)
Rear aspect double glazed windows and French doors to gardens, herringbone tiling to floor, roof lantern, feature wall with panelling, coved and smooth plastered ceiling, comprehensive range of Shaker style eye and base level units with soft close doors and wood block work tops and upstands, fitted oven, hob, and extractor hood, integral full height fridge and freezer, inset Butler type sink with mixer tap, brick style tiled splash backs, matching Island unit with pan draws and breakfast bar end, doors to:
Utility Room
8' 9'' x 7' 11'' (2.66m x 2.42m)
Tiled floor, fitted Shaker style units with wood block work tops, tiled splash backs, space for washing machine and tumble dryer, inset Butler type sink, coved and smooth plastered ceiling, inset lights, courtesy door to garage.
Walk In Panrty
8' 4'' x 7' 7'' (2.53m x 2.30m)
Fitted Shaker style kitchen units and work tops, herring bone tiling to floor, shelving, coved and smooth plastered ceiling inset lights.
First Floor Landing
Side aspect double glazed window, coved and smooth plastered ceiling, trap hatch to loft space, linen cupboard, radiator, doors to:
Family Bathroom
Front aspect double glazed window, free standing bath with telephone style mixer tap and shower attachment, shower cubicle, feature wash hand basin, W.C, tiling to floor, half wall brick style tiling, coved and smooth plastered ceiling, inset lights.
Bedroom 1
13' 10'' x 11' 0'' (4.22m x 3.36m)
Front aspect double glazed window, radiator, coved and smooth plastered ceiling, feature wall with panelling.
Bedroom 2
11' 0'' x 10' 11'' (3.362m x 3.34m)
Rear aspect double glazed window, radiator, coved and smooth plastered ceiling.
Bedroom 3
11' 7'' x 8' 3'' (3.52m x 2.51m)
Rear aspect double glazed window, radiator, coved and smooth plastered ceiling.
Outside
The front garden is laid to lawn with a block paved driveway providing parking for multiple vehicles and giving access to the attached TANDEM GARAGE. The rear garden is mainly laid to lawn with a patio area with pergola cover, raised borders and workshop/shed.
Tandem Garage
26' 6'' x 8' 11'' (8.08m x 2.71m)
Up and over door, power, light, courtesy door to utility room.
Anti-Money Laundering (AML)
Archbold & Edwards have a legal obligation to complete anti-money laundering checks. The AML check should be completed in the branch. Please call the office to book an AML check if you would like to make an offer on this property. Please note the AML check includes us taking a copy of two forms of Identification for each purchaser. A proof of address and proof of name document is required. Please note we cannot put forward an offer without the AML check being completed.
Mortgage Advisor
We have an in-house financial advisor who can offer the following services: - Mortgages and BTL - Protection - Pensions Advice - Investments Advice - Wealth Management To organise an appointment please contact Archbold & Edwards.
Conveyancing
We offer competitive conveyancing services, with local conveyancing companies. For more information or to organise a quote please call us on 02392 257999
Compliance Note
Please be aware all measurement and floor plans used in the details are approximate and for marketing purposes only. The services, system and appliances have not been tested and no guarantee as to their operability or efficiency can be given by Archbold & Edwards Ltd.
Tenure
Any information stated about the tenure and charges for a property have been provided by the seller of the property and is subject to change. All lease information provided will be confirmed by the sellers solicitor during any conveyance.
Click to enlarge
| Name | Location | Type | Distance |
|---|---|---|---|
Request A Viewing
Waterlooville PO7 7LB



