Nerissa Close, Waterlooville £169,995
Please enter your starting address in the form input below.
Please refresh the page if trying an alernate address.
- One bedroom first floor flat
- Offered with no chain ahead
- An ideal first time or investment purchase
- Lounge/dining room
- Allocated parking
- Requested Tempest location
- Viewing is recommended
AN IDEAL FIRST TIME BUYER OR INVESTMENT PROPERTY OFFERED WITH NO CHAIN AHEAD. A purpose built one bedroom first floor flat located in Tempest Avenue, Waterlooville. This property benefits from double glazing, electric heating, allocated parking, lounge/dining room, kitchen, family bathroom, and double bedroom, viewing of this property is highly recommended.
Directions
SAT NAV: PO7 8LP. Proceed along Hulbert Road at the roundabout take the second exit into Tempest Avenue. Continue over the next roundabout, then turn left into Cornelius Drive. Nerissa Close can be found on the left hand side.
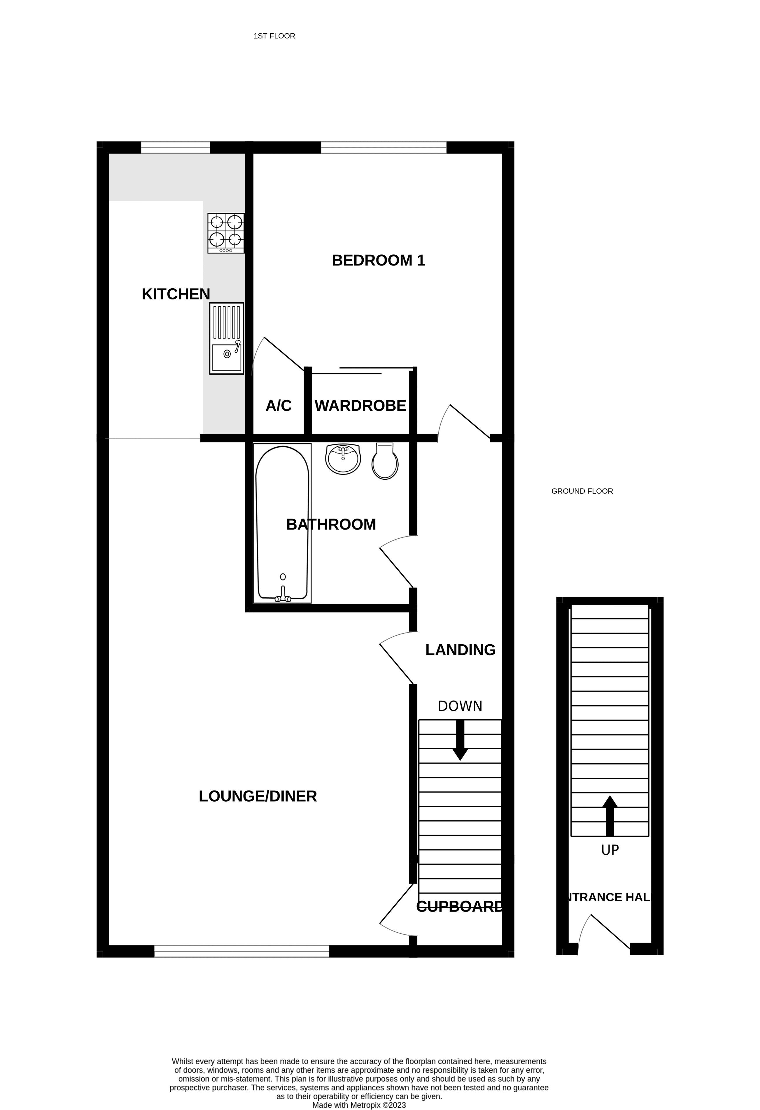
Entrance Hall
Front aspect double glazed door, stairs to first floor, textured ceiling.
First Floor Landing
Textured ceiling, trap hatch to loft space, electric heater, doors to:
Family Bathroom
Bath with telephone style mixer tap and shower attachment, wash hand basin, W.C, tiled splash backs, coved and textured ceiling, inset lights.
Bedroom 1
11' 8'' x 9' 4'' (3.56m x 2.85m)
Rear aspect double glazed window, built in wardrobe, airing cupboard, textured ceiling.
Lounge/Dining Room
17' 2'' x 12' 2'' (5.24m x 3.71m)
Front aspect double glazed window, over stairs cupboard, electric heater, coved and textured ceiling, T.V and telephone point, open to:
Kitchen
12' 10'' x 5' 8'' (3.92m x 1.72m)
Rear aspect double glazed window, radiator, coved and textured ceiling, range of fitted eye and base level units with work tops over, tiled splash backs, space for fridge/freezer, space for cooker, single sink unit, space for washing machine, tiling to floor.
Outside
There is allocated parking and a store.
Anti-Money Laundering (AML)
Archbold & Edwards have a legal obligation to complete anti-money laundering checks. The AML check should be completed in the branch. Please call the office to book an AML check if you would like to make an offer on this property. Please note the AML check includes us taking a copy of two forms of Identification for each purchaser. A proof of address and proof of name document is required. Please note we cannot put forward an offer without the AML check being completed.
Mortgage Advisor
We have an in-house financial advisor who can offer the following services: - Mortgages and BTL - Protection - Pensions Advice - Investments Advice - Wealth Management To organise an appointment please contact Archbold & Edwards.
Conveyancing
We offer competitive conveyancing services, with local conveyancing companies. For more information or to organise a quote please call us on 02392 257999
Compliance Note
Please be aware all measurement and floor plans used in the details are approximate and for marketing purposes only. The services, system and appliances have not been tested and no guarantee as to their operability or efficiency can be given by Archbold & Edwards Ltd.
Tenure
Any information stated about the tenure and charges for a property have been provided by the seller of the property and is subject to change. All lease information provided will be confirmed by the sellers solicitor during any conveyance.
Click to enlarge
| Name | Location | Type | Distance |
|---|---|---|---|
Waterlooville PO7 8LP




